Prodej chaty, Horní Kalná, 126 m2

Horní Kalná

5 900 000 Kč /za nemovitost HYPOTÉKA od 26 369 Kč /za měsíc
Prémioví partneři v Horní Kalné

Informace k domu

Hledáte místo, kde čas plyne pomaleji, vzduch voní dřevem a večery trávíte u kamen?

Nabízíme k prodeji krásnou roubenou chalupu po kompletní rekonstrukci, která se nachází v malebné obci Horní Kalná v podhůří Krkonoš.

Chalupa stojí na pečlivě udržovaném pozemku o rozloze 505 m² a je připravena poskytnout svým novým majitelům klid, pohodu i zázemí pro celoroční bydlení.

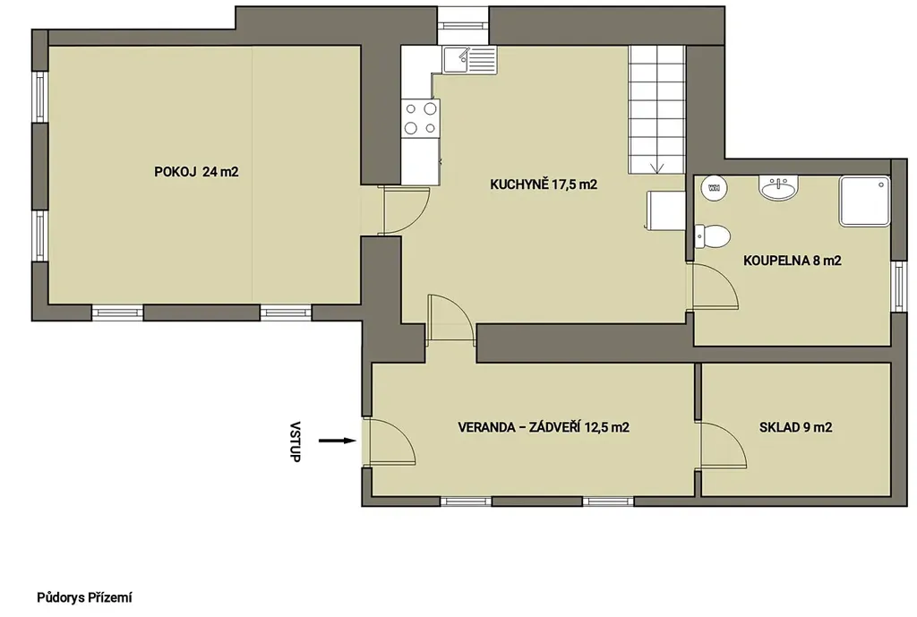
Dispozice 3+1

V přízemí se nachází útulná kuchyně, světlý obývací pokoj s kachlovými kamny, koupelna, veranda a praktický dřevník s kůlnou.

V podkroví jsou dva romantické pokoje s výhledem do zeleně – ideální pro rodinu či hosty.

Technické zázemí a vybavení:

- elektřina (včetně levného tarifu),

- teplá a studená voda ze studny, na pozemku je zároveň přivedena vodovodní přípojka,

- vytápění kamny na dřevo a kachlovými kamny – v obývacím pokoji je záklop pro vytápění horního patra

- odpad je sveden do jímky

Svah nad chalupou je zpevněn svahovými tvárnicemi, což zajišťuje stabilitu i při náročnějších povětrnostních podmínkách.

Chalupa stojí přibližně 150 m od hlavní komunikace, takže nabízí naprostý klid a soukromí.

Lokalita a dostupnost:

- Horní Kalná leží v krásném prostředí Krkonošského podhůří – do Vrchlabí dojedete autem za 12 minut, do Prahy přibližně za hodinu a půl.

- Nemovitost je vedena jako rodinný dům, a je tedy vhodná jak k rekreaci, tak i k celoročnímu bydlení.

Okolí a volnočasové možnosti:

Okolí chalupy nabízí široké možnosti vyžití – od pěší turistiky a cyklostezek až po lyžařské areály Vrchlabí, Herlíkovice, Benecko, Černý Důl či Špindlerův Mlýn.

V blízkém okolí nechybí ani kulturní a společenské akce ve Vrchlabí nebo Trutnově.

Tato roubenka má duši. Je ideálním místem pro ty, kdo hledají rovnováhu mezi pohodlím a přírodou – prostor, kde můžete zpomalit, dýchat a znovu se napojit na klid života mimo město.

Pro prohlídku nebo více informací mě prosím kontaktujte.

Parametry domu

Cena
5 900 000 Kč /za nemovitost Spočítat hypotéku
Aktualizováno
16. 12. 2025
Adresa
Horní Kalná
Stavba
Dřevěná
Stav objektu
Velmi dobrý
Užitná plocha
126 m2
Plocha pozemku
505 m2

Kontaktovat makléře

Máte zájem o tento dům?

Tímto, v souladu s nařízením Evropského parlamentu a Rady (EU) 2016/679, v platném znění, prohlašuji, že mi je alespoň 16 let a uděluji tak svůj souhlas se zpracováním zadaných údajů (jméno, telefon, e-mail, ip adresa) společnosti B3 Technology, s.r.o., IČ: 07330600, se sídlem Novostavby 126/23, 435 11 Lom (správce dat), za účelem předání dotazu z tohoto formuláře Vámi vybranému inzerentovi a zpětného kontaktování mé osoby. Osobní údaje bude správce zpracovávat manuálně i automaticky přímo prostřednictvím svých zaměstnanců. Informace předané tímto formulářem budou uloženy v databázi správce maximálně po dobu 10 let. Odvolání souhlasu s uložením a zpracováním poskytnutých dat lze e-mailem na info@videobydleni.cz. V případě podezření na neoprávněné použití Vámi poskytnutých údajů máte právo předat podnět k šetření Úřadu pro ochranu osobních údajů. Více informací
Chystáte se prodat nemovitost?
Pomůžeme Vám!

Inzerát si prohlédlo 0 lidí

Prodejce

Ing. Stanislava Tremlová

Ing. Stanislava Tremlová

Hlídací pes

Chcete dostávat emailem podobné nabídky prodeje chat v Horní Kalné?

Podobné nemovitosti


Nevyhovuje Vám typ domu? Podívejte se na jiné kategorie domů.


Vybrané články z našeho blogu