Prodej bytu 5+kk, Unhošť, Buková, 115 m2

Buková, Unhošť

12 490 000 Kč /za nemovitost HYPOTÉKA od 55 823 Kč /za měsíc

(včetně DPH, včetně poplatků, včetně provize)

Prémioví partneři v Unhošti

Informace k bytu

Komfort bytu, velikost domku

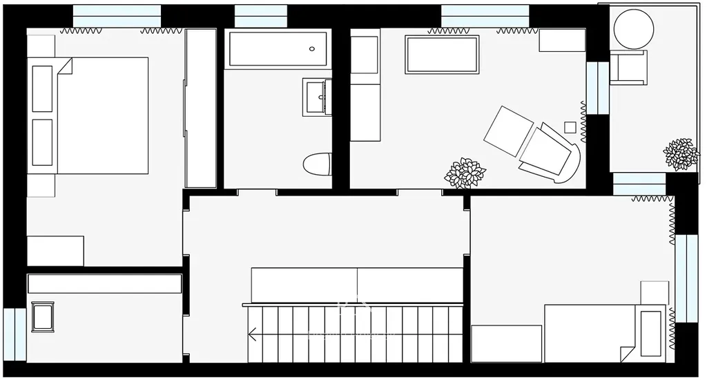
Rodinné bydlení, kde má každý svůj prostor. Mezonet o dispozici 5+kk poskytuje přes 115 m² moderního a praktického zázemí. Ideální pro rodinu, která chce klid mimo město, ale nechce se vzdát jeho výhod. Tady je kombinace obojího.

Dvě koupelny = konec rannímu chaosu
Přízemí je připravené pro společný rodinný život – velký obývák s kuchyní je srdcem bytu a přirozeným centrem rodiny. Pracujete na home office? Pak Vám přijde vhod pracovna, která může posloužit i jako pokoj pro hosty. V patře pak najdete soukromé pokoje, druhou koupelnu a šatnu, kterou jistě ocení Vaše drahá polovička.

Moderní řešení bez kompromisů
Byt je navržený pro potřeby moderní rodiny. Vestavěné úložné prostory, kvalitní materiály, promyšlené dispozice – žádné slepé kouty ani zbytečná místa, která se musí „nějak dořešit“. Kuchyně je připravená na pohodlné vaření – trouba i mikrovlnka jsou vestavěné, ve výšce očí. Kuchyňská linka je prostorná s dostatkem úložných prostor a výhledem do zahrady. Navíc přirozeně navazuje na obývací pokoj. Tohle je připravené bydlení, ne polotovar.

Zahrada – další prostor pro život
Součástí je zahrada o 677 m², na které vytvoříte místo, kde mohou děti bezpečně běhat od jara do podzimu. Terasa je dokonalá pro letní večery, obědy venku nebo posezení s přáteli. A pokud toužíte po zázemí venku, je tu už příprava na zahradní domek. A kdyby vás lákal bazén – nic tomu nebrání.

Dvě parkovací místa.
Žádné hledání, žádný boj se sousedy. K bytu patří dvě vlastní parkovací místa, což je v klidné neprůjezdní čtvrti Na Čeperce příjemná jistota.

Adresa, kde vám bude dobře
Na Čeperce je místo, které působí jako malá vesnička na kraji lesa – přitom jste 20 minut od Prahy. Okolí tvoří křivoklátské lesy, vyhlášené golfové hřiště Botanica, krásné trasy pro běh, kolo i výlety. Nákupy vyřešíte v Unhošti nebo v blízké nákupní zóně. A volný čas? Ten budete trávit v úplně jiném tempu.

Tak co už se tady vidíte? Stačí jen napsat, nebo zavolat a potkáme se na prohlídce.

Parametry bytu

Cena
12 490 000 Kč /za nemovitost Spočítat hypotéku
Poznámka k ceně
včetně DPH, včetně poplatků, včetně provize
Aktualizováno
16. 12. 2025
Adresa
Buková, Unhošť
ID
66341
Stavba
Cihlová
Stav objektu
Novostavba
Patro
1. z 2
Vybaveno
Ne
Lokalita objektu
Klidná část obce
Vlastnictví
Osobní
Užitná plocha
115 m2
Plocha zahrady
677 m2
Třída energetické náročnosti
A - Mimořádně úsporná
Ukazatel energetické náročnosti
56.9 kWh/m2 za rok
Odpad
Veřejná kanalizace
Voda
Vodovod
Topné těleso
Podlahové vytápění
Zdroj topení
Jiné
Balkon
Parkování

Kontaktovat makléře

Realitní kancelář

Reality Holeček

náměstí starosty Pavla 39, Kladno

Chystáte se prodat nemovitost?
Pomůžeme Vám!

Máte zájem o tento byt?

Tímto, v souladu s nařízením Evropského parlamentu a Rady (EU) 2016/679, v platném znění, prohlašuji, že mi je alespoň 16 let a uděluji tak svůj souhlas se zpracováním zadaných údajů (jméno, telefon, e-mail, ip adresa) společnosti B3 Technology, s.r.o., IČ: 07330600, se sídlem Novostavby 126/23, 435 11 Lom (správce dat), za účelem předání dotazu z tohoto formuláře Vámi vybranému inzerentovi a zpětného kontaktování mé osoby. Osobní údaje bude správce zpracovávat manuálně i automaticky přímo prostřednictvím svých zaměstnanců. Informace předané tímto formulářem budou uloženy v databázi správce maximálně po dobu 10 let. Odvolání souhlasu s uložením a zpracováním poskytnutých dat lze e-mailem na info@videobydleni.cz. V případě podezření na neoprávněné použití Vámi poskytnutých údajů máte právo předat podnět k šetření Úřadu pro ochranu osobních údajů. Více informací
Chystáte se prodat nemovitost?
Pomůžeme Vám!

Inzerát si prohlédlo 0 lidí

Prodejce

Bc. Lukáš Holeček

Bc. Lukáš Holeček

Hlídací pes

Chcete dostávat emailem podobné nabídky prodeje bytů 5+kk v Unhošti?

Podobné nemovitosti


Nevyhovuje Vám typ bytu? Podívejte se na jiné kategorie bytů.


Vybrané články z našeho blogu