Pronájem obchodního prostoru, Přerov, Wilsonova, 265 m2

Wilsonova, Přerov I-Město

30 000 Kč /za měsíc Získejte výhodnou HYPOTÉKU
Prémioví partneři v Přerově

Pojištění a finance

Informace k nemovitosti

Nabízíme k pronájmu atraktivní komerční prostory v centru města Přerov, na adrese Wilsonova 37/2a, s výbornou dostupností a viditelností. Prostory jsou v domě, který je opečovávaný a v dobrém stavu.

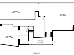
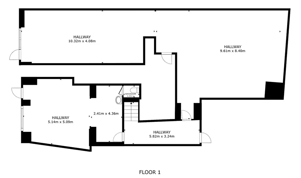
Dispozice a plochy
* Spodní patro:
* prodejní plocha s výlohou cca 105 m²
* skladovací prostory cca 20 m²
* zázemí a toaleta pro zaměstnance
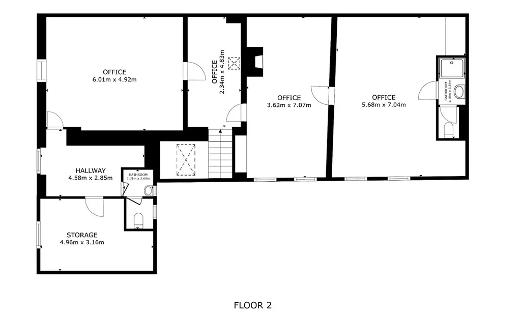
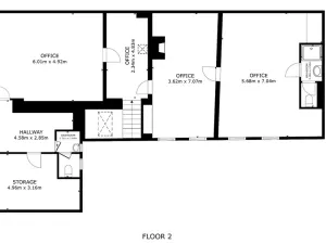
* Horní patro:
* kanceláře cca 140 m²
* možnost využití také jako ateliér
* 2x toaleta, sprcha, kuchyňka

Celková plocha cca 265 m².

Využití
Prostory jsou zkolaudovány pro výrobu, obchod a služby (neuvedené v přílohách 1–3 živnostenského zákona). Vhodné např. pro:
* obchod / showroom
* kanceláře
* ateliér
* služby
* menší výrobu

Technické informace
* vytápění plynovým kotlem nebo klimatizací
* ohřev vody částečně elektrickým bojlerem
* energie si nájemce přepisuje na sebe

Finanční podmínky
* nájemné: 30 000 Kč / měsíc
* kauce: 1× měsíční nájem
* provize RK: 1× měsíční nájem
* energie dle skutečné spotřeby

Ve stejném domě se nabízí k pronájmu i menší komerční prostory cca 20 m2, které je možné také pronajmout.

Lokalita:

Centrum města Přerov – frekventované a dobře dostupné místo, vhodné pro podnikání s klientelou.
Pro více informací nebo domluvení prohlídky nás neváhejte kontaktovat.

Parametry nemovitosti

Cena
30 000 Kč /za měsíc
Aktualizováno
3. 5. 2026
Adresa
Wilsonova, Přerov I-Město
ID
972195
Stavba
Cihlová
Stav objektu
Velmi dobrý
Užitná plocha
265 m2
Zastavěná plocha
280 m2
Třída energetické náročnosti
G - Mimořádně nehospodárná
Elektřina
230V
Plyn
Plynovod
Topné těleso
Kotel na tuhá paliva
Zdroj topení
Plynový kotel

Kontaktovat makléře

Máte zájem o tuto nemovistost?

Tímto, v souladu s nařízením Evropského parlamentu a Rady (EU) 2016/679, v platném znění, prohlašuji, že mi je alespoň 16 let a uděluji tak svůj souhlas se zpracováním zadaných údajů (jméno, telefon, e-mail, ip adresa) společnosti B3 Technology, s.r.o., IČ: 07330600, se sídlem Novostavby 126/23, 435 11 Lom (správce dat), za účelem předání dotazu z tohoto formuláře Vámi vybranému inzerentovi a zpětného kontaktování mé osoby. Osobní údaje bude správce zpracovávat manuálně i automaticky přímo prostřednictvím svých zaměstnanců. Informace předané tímto formulářem budou uloženy v databázi správce maximálně po dobu 10 let. Odvolání souhlasu s uložením a zpracováním poskytnutých dat lze e-mailem na info@videobydleni.cz. V případě podezření na neoprávněné použití Vámi poskytnutých údajů máte právo předat podnět k šetření Úřadu pro ochranu osobních údajů. Více informací
Chystáte se prodat nemovitost?
Pomůžeme Vám!
Theleadway banner

Inzerát si prohlédlo 10 lidí

Prodejce

Ing. Jiří Podešva

Ing. Jiří Podešva

Hlídací pes

Chcete dostávat emailem podobné nabídky pronájmu obchodních prostor v Přerově?

Podobné nemovitosti


Nevyhovuje Vám typ nemovitosti? Podívejte se na jiné kategorie komerčních.


Vybrané články z našeho blogu