Pronájem obchodního prostoru, Frýdlant nad Ostravicí, Hlavní, 254 m2

Hlavní, Frýdlant nad Ostravicí

50 800 Kč /za měsíc Získejte výhodnou HYPOTÉKU
Prémioví partneři v Frýdlantu nad Ostravicí

Informace k nemovitosti

Pronájem zavedeného komerčního prostoru s výlohou

Atraktivní prostor na frekventované ulici

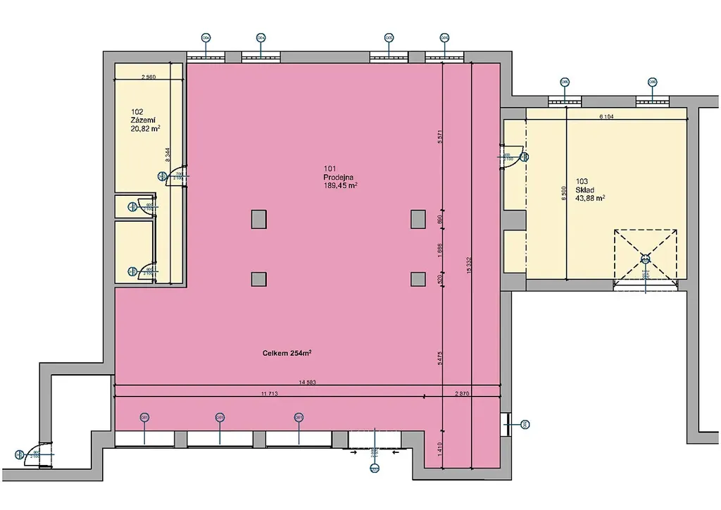
Nabízíme k pronájmu světlý a prostorný obchodní / provozní prostor v atraktivní lokalitě Frýdlantu (č.p. 80) s možností okamžitého využití.
Celková výměra činí 254 m², z toho cca 44 m² sklad a cca 21 m² zázemí.

Díky výkladu přímo do ulice nabízí prostor výbornou viditelnost a přímý kontakt s chodícím i projíždějícím provozem.
To z něj činí ideální místo pro prodejnu, kavárnu, specializovaný obchod, showroom nebo klientsky orientované služby.

Dispozice a využití prostoru

Prostor má praktické a přehledné uspořádání s jasně čitelnou prodejní plochou, kterou lze snadno členit podle potřeb konkrétního provozu.
Interiér umožňuje flexibilní přizpůsobení vlastním požadavkům a konceptu podnikání.
Výhodou je také dobré napojení na místní dopravní síť a blízkost dalších provozoven a služeb.

Klíčové výhody
Výklad přímo do ulice a vysoká viditelnost
Přímý kontakt s kolemjdoucími i projíždějícími – ideální pro retail a služby typu walk-in
Flexibilní dispozice a možnost úprav podle potřeb nájemce
Skladové a provozní zázemí součástí prostoru
Dobrá dostupnost; parkování je možné na veřejném parkovišti přímo naproti prodejně
Historie zavedené prodejny – prostor byl dlouhodobě využíván jako drogerie TETA, což potvrzuje jeho vhodnost pro retail a stabilní zákaznický provoz
Pro koho je prostor vhodný

Prostor je vhodnou příležitostí pro podnikatele, kteří hledají viditelné a ověřené komerční místo k pronájmu.
Díky své velikosti a dispozici nemusí sloužit výhradně jako klasická prodejna – nabízí se také využití pro služby, showroom, klientské centrum
nebo kombinaci prodeje a firemního zázemí.

Další informace (nájemné, energie, podmínky pronájmu) budou sděleny na vyžádání. Neváhejte se ozvat a domluvit si osobní prohlídku prostoru.

Parametry nemovitosti

Cena
50 800 Kč /za měsíc
Aktualizováno
22. 3. 2026
Adresa
Hlavní, Frýdlant nad Ostravicí
ID
101 Frýdlant
Stavba
Cihlová
Stav objektu
Dobrý
Užitná plocha
254 m2

Kontaktovat makléře

Realitní kancelář

Reality Svoboda

Potoční 1094, Frýdek-Místek

Chystáte se prodat nemovitost?
Pomůžeme Vám!

Máte zájem o tuto nemovistost?

Tímto, v souladu s nařízením Evropského parlamentu a Rady (EU) 2016/679, v platném znění, prohlašuji, že mi je alespoň 16 let a uděluji tak svůj souhlas se zpracováním zadaných údajů (jméno, telefon, e-mail, ip adresa) společnosti B3 Technology, s.r.o., IČ: 07330600, se sídlem Novostavby 126/23, 435 11 Lom (správce dat), za účelem předání dotazu z tohoto formuláře Vámi vybranému inzerentovi a zpětného kontaktování mé osoby. Osobní údaje bude správce zpracovávat manuálně i automaticky přímo prostřednictvím svých zaměstnanců. Informace předané tímto formulářem budou uloženy v databázi správce maximálně po dobu 10 let. Odvolání souhlasu s uložením a zpracováním poskytnutých dat lze e-mailem na info@videobydleni.cz. V případě podezření na neoprávněné použití Vámi poskytnutých údajů máte právo předat podnět k šetření Úřadu pro ochranu osobních údajů. Více informací
Chystáte se prodat nemovitost?
Pomůžeme Vám!

Inzerát si prohlédlo 16 lidí

Prodejce

Pavel Svoboda

Pavel Svoboda

Hlídací pes

Chcete dostávat emailem podobné nabídky pronájmu obchodních prostor v Frýdlantu nad Ostravicí?

Podobné nemovitosti


Nevyhovuje Vám typ nemovitosti? Podívejte se na jiné kategorie komerčních.


Vybrané články z našeho blogu