Prodej bytu 2+kk, Ostrava, U Oblouku, 42 m2 (ID: 4134597)

U Oblouku, Ostrava, Poruba

3 250 000 Kč /za nemovitost HYPOTÉKA od 14 526 Kč /za měsíc

(Měsíční náklady 4.794Kč + elektřina + plyn)

Prémioví partneři v Ostravě

Informace k bytu

Ne vždy se Vám naskytne možnost bydlet v takto ikonickém domě, který zná snad každý. Je totiž kulturní památkou. Ano, bydlet v takovém domě může mít jisté nevýhody, avšak pojďme se podívat na výhody.

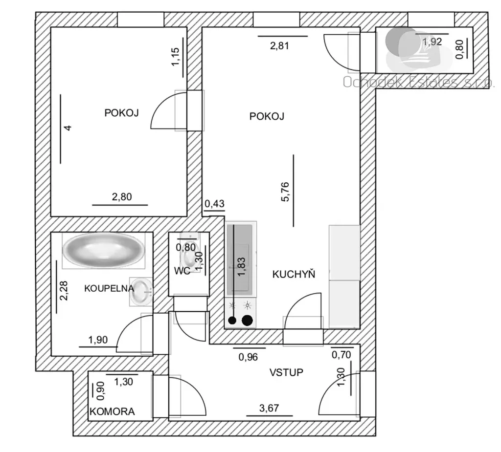
Byt o dispozici 2kk o výměře 42 m2 se nachází v šestém nadzemním podlaží bytového domu. První důležitou výhodou je výtah. Nebudete mít tedy problém se ke svému bytu pohodlně dostat. Je však nutno zmínit, že dům není bezbariérový. Byt se prodává v původním plně funkčním stavu. Ovšem rekonstrukce by mu jistě slušela. Otevírá se zde tedy možnost upustit uzdu fantazie nového majitele a přizpůsobit si byt dle svých představ.

Po vstupu do bytu se ocitnete v malé, ale praktické chodbě. Z chodby již vstupujete do hlavní obytné místnosti, ve které vás ihned zaujme velkorysý kuchyňský kout a zároveň dostatek místa na vytvoření vaší odpočinkové zóny. Hnedle dveře do komory, dveře do koupelny a na samostatnou toaletu. Důležitou místností je neprůchozí ložnice. A i když byt není nafukovací, nachází se v něm malá místnůstka, která čeká na uplatnění nového majitele, třeba k vytvoření “zašívárny”.

Nachází se v lokalitě Ostrava – Poruba. Je to velmi příjemná lokalita disponující nejen spousty relaxačních míst v zeleni pro trávení volného času, ale hlavně veškerou občanskou vybaveností.


Pozn: Uvedená cena je BEZ zprostředkovatelského poplatku ve výší 170.000 Kč s DPH pro RK. Financování pomůžeme zajistit. Energetický štítek prozatím uvádíme G

Parametry bytu

Cena
3 250 000 Kč /za nemovitost Spočítat hypotéku
Poznámka k ceně
Měsíční náklady 4.794Kč + elektřina + plyn
Aktualizováno
16. 12. 2025
Adresa
U Oblouku, Ostrava, Poruba
ID
25-06-003
Stavba
Cihlová
Stav objektu
Dobrý
Patro
3.
Lokalita objektu
Centrum obce
Vlastnictví
Osobní
Užitná plocha
42 m2
Podlahová plocha
42 m2
Třída energetické náročnosti
G - Mimořádně nehospodárná
Elektřina
230V
Plyn
Plynovod
Odpad
Veřejná kanalizace
Topení
Ústřední dálkové
Voda
Vodovod
Topné těleso
Radiátory
Sklep
Výtah
Bezbarierový přístup

Kontaktovat makléře

Realitní kancelář

Ochodek Estates

Brodek u Konice 126, Brodek u Konice

Chystáte se prodat nemovitost?
Pomůžeme Vám!

Máte zájem o tento byt?

Tímto, v souladu s nařízením Evropského parlamentu a Rady (EU) 2016/679, v platném znění, prohlašuji, že mi je alespoň 16 let a uděluji tak svůj souhlas se zpracováním zadaných údajů (jméno, telefon, e-mail, ip adresa) společnosti B3 Technology, s.r.o., IČ: 07330600, se sídlem Novostavby 126/23, 435 11 Lom (správce dat), za účelem předání dotazu z tohoto formuláře Vámi vybranému inzerentovi a zpětného kontaktování mé osoby. Osobní údaje bude správce zpracovávat manuálně i automaticky přímo prostřednictvím svých zaměstnanců. Informace předané tímto formulářem budou uloženy v databázi správce maximálně po dobu 10 let. Odvolání souhlasu s uložením a zpracováním poskytnutých dat lze e-mailem na info@videobydleni.cz. V případě podezření na neoprávněné použití Vámi poskytnutých údajů máte právo předat podnět k šetření Úřadu pro ochranu osobních údajů. Více informací
Chystáte se prodat nemovitost?
Pomůžeme Vám!

Inzerát si prohlédlo 0 lidí

Prodejce

Petr Pouč

Petr Pouč

Hlídací pes

Chcete dostávat emailem podobné nabídky prodeje bytů 2+kk v Ostravě?

Podobné nemovitosti


Nevyhovuje Vám typ bytu? Podívejte se na jiné kategorie bytů.


Vybrané články z našeho blogu