Prodej bytu 2+kk, Praha - Modřany, Zlochova, 54 m2

Zlochova, Praha, Modřany

Rezervováno
9 850 000 Kč /za nemovitost HYPOTÉKA od 44 024 Kč /za měsíc
Prémioví partneři v Praze 4

Stěhovací služby

Výkup a prodej starého nábytku

Informace k bytu

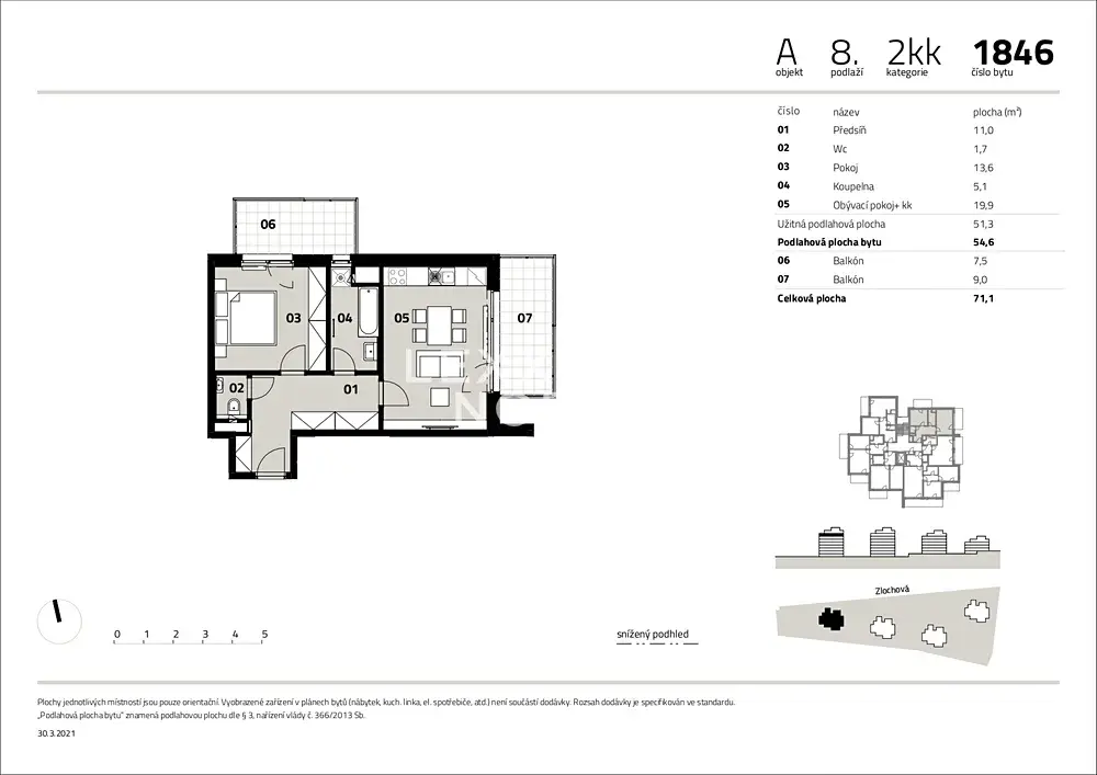
Nabízíme k prodeji moderní byt 2+kk o výměře 54.4 m2 se dvěma balkony v nově postaveném projektu, který byl zkolaudován v roce 2023. Byt se nachází v 8. patře a nabízí tak krásné výhledy do okolí. Nemovitost disponuje obývacím pokojem spojeným s kuchyní, ložnicí a koupelnou. K bytu náleží dva prostorné balkony, které poskytují dostatek prostoru pro relaxaci.



Byt o dispozici 2+kk disponuje dvěma balkony o rozloze 9 m2 a 7.5 m2, které výrazně rozšiřují obytný prostor. V obývacím pokoji propojeném s kuchyní je vybudovaný zcela nový kuchyňský kout plně vybavený všemi potřebnými spotřebiči. V chodbě je k dispozici prostorná vestavěná skříň, která doplňuje úložný prostor v bytě. V prostorné koupelně je k dispozici vana se skleněnou zástěnou. Na všech oknech jsou také nainstalované venkovní žaluzie. Součástí rezidenčního projektu je venkovní posilovna, kavárna a tři dětská hřiště vybavená trampolínami. V areálu se nyní také buduje park. Pro komfort se v domě nachází také kočárkárna, kolárna, stojany na koloběžky a elektrické nabíječky pro elektromobily.


V ceně je zahrnuto parkovací stání a sklep v podzemní garáži.


Lokalita Modřan nabízí veškerou občanskou vybavenost, v bezprostředním okolí se nachází obchody, služby i zdravotnická zařízení. Dopravní dostupnost je vynikající díky blízkosti zastávek městské hromadné dopravy. Do centra Prahy se pohodlně dostanete během několika minut. V okolí je dostatek zeleně a přírody, v blízkosti se nacházejí parky ideální pro procházky i sportovní aktivity a malebná údolí lákající k výletům a odpočinku. Lokalita spojuje městské bydlení s klidným prostředím na dosah přírody.

Parametry bytu

Stav
Rezervováno
Cena
9 850 000 Kč /za nemovitost Spočítat hypotéku
Aktualizováno
5. 2. 2026
Adresa
Zlochova, Praha, Modřany
ID
532934
Stavba
Smíšená
Stav objektu
Novostavba
Patro
8.
Vybaveno
Částečně
Vlastnictví
Osobní
Užitná plocha
54 m2
Třída energetické náročnosti
B - Velmi úsporná
Balkon
Garáž
Sklep
Výtah
Převod do OV
Parkování

Kontaktovat makléře

Realitní kancelář

LEXXUS, a.s.

Na Poříčí 2090/2, Praha, Nové Město

Chystáte se prodat nemovitost?
Pomůžeme Vám!

Máte zájem o tento byt?

Tímto, v souladu s nařízením Evropského parlamentu a Rady (EU) 2016/679, v platném znění, prohlašuji, že mi je alespoň 16 let a uděluji tak svůj souhlas se zpracováním zadaných údajů (jméno, telefon, e-mail, ip adresa) společnosti B3 Technology, s.r.o., IČ: 07330600, se sídlem Novostavby 126/23, 435 11 Lom (správce dat), za účelem předání dotazu z tohoto formuláře Vámi vybranému inzerentovi a zpětného kontaktování mé osoby. Osobní údaje bude správce zpracovávat manuálně i automaticky přímo prostřednictvím svých zaměstnanců. Informace předané tímto formulářem budou uloženy v databázi správce maximálně po dobu 10 let. Odvolání souhlasu s uložením a zpracováním poskytnutých dat lze e-mailem na info@videobydleni.cz. V případě podezření na neoprávněné použití Vámi poskytnutých údajů máte právo předat podnět k šetření Úřadu pro ochranu osobních údajů. Více informací
Chystáte se prodat nemovitost?
Pomůžeme Vám!

Inzerát si prohlédlo 33 lidí

Prodejce

Adéla Bukovská - recepce

Adéla Bukovská - recepce

Hlídací pes

Chcete dostávat emailem podobné nabídky prodeje bytů 2+kk v Praze 4?

Podobné nemovitosti


Nevyhovuje Vám typ bytu? Podívejte se na jiné kategorie bytů.


Vybrané články z našeho blogu