Prodej rodinného domu, Ratíškovice, Polní, 162 m2

Polní, Ratíškovice

Cena na vyžádání /za nemovitost Získejte výhodnou HYPOTÉKU
Prémioví partneři v Ratíškovicích

Informace k domu

Nabízím k prodeji rodinný dům o dispozici 5+kk, který se nachází v klidné a oblíbené části Ratiškovic na ulici Polní.
Dům je rohový, samostatně stojící a aktuálně prochází rozsáhlou rekonstrukcí, díky níž nabídne moderní a útulný domov v klidném prostředí. Při rekonstrukci je kladen důraz na kvalitu použitých materiálů i estetický dojem – v celém domě budou instalována okna s trojskly, plovoucí podlahy, bílé interiérové dveře a bílé obložky.
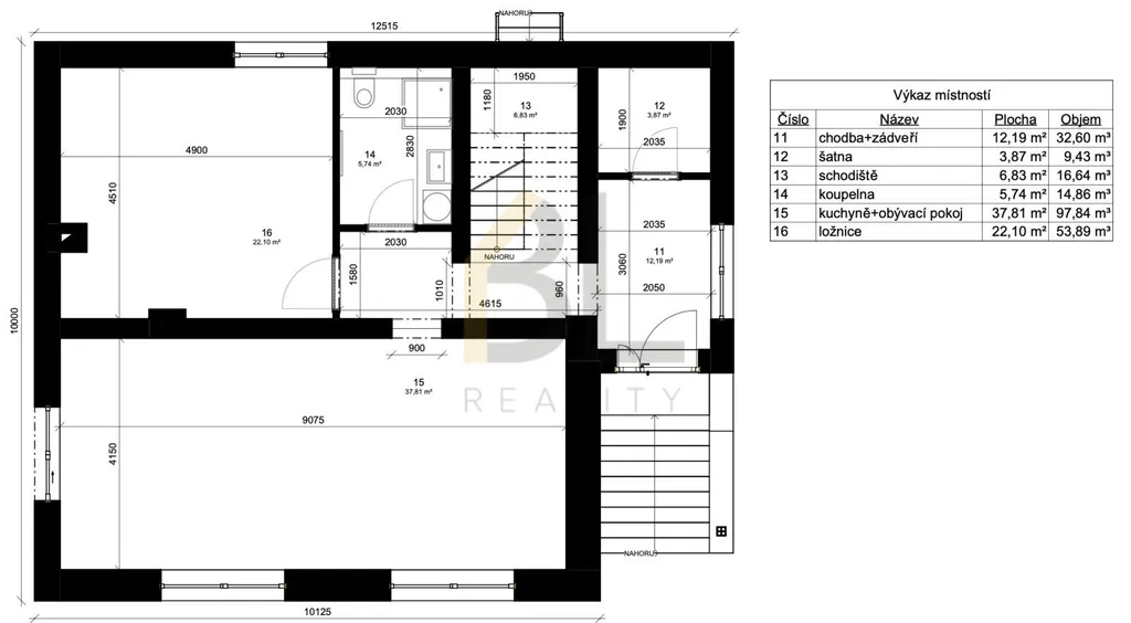
Ve fotogalerii naleznete půdorys domu a také návrh interiéru, který přibližuje budoucí podobu domu po dokončení. (Interiér zobrazený na vizualizacích není součástí prodeje.)
V této fázi výstavby je možné se dohodnout na individuálních úpravách podle přání kupujícího – ideální možnost, jak si vytvořit domov přesně podle svých představ, bez nutnosti dalších zásahů po koupi.
Součástí domu je také zahrada o výměře 249 m² s plánovanou terasou, na kterou bude přímý vstup z obývacího pokoje.
Dispozice a užitná plocha domu:
- dům nabízí prostorný obývací pokoj s kuchyní, čtyři samostatné pokoje, dvě koupelny, technické zázemí a je celý podsklepen.
1.NP 88,54 m²
Podkroví 73,32 m²
Sklep 88,54 m²
Celková užitná plocha domu činí 250,4 m².
Parkování je zajištěno před domem na vlastním pozemku.
Tento dům představuje jedinečnou příležitost pro ty, kteří hledají moderní a kvalitní rodinné bydlení v klidné lokalitě s kompletní občanskou vybaveností a výbornou dostupností do okresního města Hodonín.
Pro více informací nebo sjednání nezávazné prohlídky kontaktujte přímo realitní kancelář.

Parametry domu

Cena
Cena na vyžádání Spočítat hypotéku
Aktualizováno
17. 12. 2025
Adresa
Polní, Ratíškovice
ID
25064
Stavba
Cihlová
Stav objektu
V rekonstrukci
Typ objektu
Patrový
Druh objektu
Samostatný
Lokalita objektu
Klidná část obce
Užitná plocha
162 m2
Plocha pozemku
369 m2
Třída energetické náročnosti
G - Mimořádně nehospodárná
Elektřina
230V
Plyn
Plynovod
Odpad
Veřejná kanalizace
Topení
Ústřední plynové
Voda
Vodovod
Topné těleso
Radiátory
Zdroj topení
Plynový kondenzační kotel
Výtah
Bezbarierový přístup

Kontaktovat makléře

Máte zájem o tento dům?

Tímto, v souladu s nařízením Evropského parlamentu a Rady (EU) 2016/679, v platném znění, prohlašuji, že mi je alespoň 16 let a uděluji tak svůj souhlas se zpracováním zadaných údajů (jméno, telefon, e-mail, ip adresa) společnosti B3 Technology, s.r.o., IČ: 07330600, se sídlem Novostavby 126/23, 435 11 Lom (správce dat), za účelem předání dotazu z tohoto formuláře Vámi vybranému inzerentovi a zpětného kontaktování mé osoby. Osobní údaje bude správce zpracovávat manuálně i automaticky přímo prostřednictvím svých zaměstnanců. Informace předané tímto formulářem budou uloženy v databázi správce maximálně po dobu 10 let. Odvolání souhlasu s uložením a zpracováním poskytnutých dat lze e-mailem na info@videobydleni.cz. V případě podezření na neoprávněné použití Vámi poskytnutých údajů máte právo předat podnět k šetření Úřadu pro ochranu osobních údajů. Více informací
Chystáte se prodat nemovitost?
Pomůžeme Vám!

Inzerát si prohlédlo 24 lidí

Prodejce

Blanka Lemonová

Blanka Lemonová

Hlídací pes

Chcete dostávat emailem podobné nabídky prodeje rodinných domů v Ratíškovicích?

Podobné nemovitosti


Nevyhovuje Vám typ domu? Podívejte se na jiné kategorie domů.


Vybrané články z našeho blogu