Pronájem kanceláře, Jablonné v Podještědí, Zdislavy z Lemberka, 33 m2

Zdislavy z Lemberka, Jablonné v Podještědí

5 000 Kč /za měsíc Získejte výhodnou HYPOTÉKU
Prémioví partneři v Jablonném v Podještědí

Rekonstrukce

Úklidové služby

Pojištění a finance

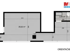
Informace k nemovitosti

Pronájem kancelářského prostoru, 33m², Jablonné v Podještědí

Nabízíme světlé nebytové prostory po kompletní rekonstrukci o rozloze 33 m² v centru Jablonného v Podještědí, které okamžitě zaujmou vysokými stropy, francouzskými okny a příjemně vzdušnou atmosférou. Prostory se nacházejí v přízemí komerčního areálu a díky bezbariérovému vstupu, novému zátěžovému koberci a vlastnímu sociálnímu zázemí, jsou připravené k okamžitému využití bez dalších investic. Topení zajišťuje plynový kotel, ohřev vody malý bojler. Parkování je možné na blízkém parkovišti, autobusová zastávka je pár kroků od objektu a na vlakové nádraží dojdete pohodlně za 8 minut. Prostory nabízí široké možnosti využití – kanceláře, poradna, masáže, menší studio či wellness služby. Nájemné 5 000 Kč, zálohy 3 000 Kč, kauce 15 000 Kč, + provize RK.
Pokud hledáte reprezentativní, světlé a dostupné místo pro své podnikání, tohle je skvělá příležitost.

Parametry nemovitosti

Cena
5 000 Kč /za měsíc
Aktualizováno
14. 4. 2026
Adresa
Zdislavy z Lemberka, Jablonné v Podještědí
ID
928495
Stavba
Panelová
Stav objektu
Dobrý
Vybaveno
Částečně
Lokalita objektu
Centrum obce
Vlastnictví
Osobní
Užitná plocha
33 m2
Plocha pozemku
3372 m2

Kontaktovat makléře

Realitní kancelář

Logo M&M reality

M&M reality

ulice Krakovská 583/9, Praha

Chystáte se prodat nemovitost?
Pomůžeme Vám!

Máte zájem o tuto nemovistost?

Tímto, v souladu s nařízením Evropského parlamentu a Rady (EU) 2016/679, v platném znění, prohlašuji, že mi je alespoň 16 let a uděluji tak svůj souhlas se zpracováním zadaných údajů (jméno, telefon, e-mail, ip adresa) společnosti B3 Technology, s.r.o., IČ: 07330600, se sídlem Novostavby 126/23, 435 11 Lom (správce dat), za účelem předání dotazu z tohoto formuláře Vámi vybranému inzerentovi a zpětného kontaktování mé osoby. Osobní údaje bude správce zpracovávat manuálně i automaticky přímo prostřednictvím svých zaměstnanců. Informace předané tímto formulářem budou uloženy v databázi správce maximálně po dobu 10 let. Odvolání souhlasu s uložením a zpracováním poskytnutých dat lze e-mailem na info@videobydleni.cz. V případě podezření na neoprávněné použití Vámi poskytnutých údajů máte právo předat podnět k šetření Úřadu pro ochranu osobních údajů. Více informací
Chystáte se prodat nemovitost?
Pomůžeme Vám!
Theleadway banner

Inzerát si prohlédlo 15 lidí

Prodejce

Sofie Kučerová

Sofie Kučerová

Hlídací pes

Chcete dostávat emailem podobné nabídky pronájmu kanceláří v Jablonném v Podještědí?

Podobné nemovitosti


Nevyhovuje Vám typ nemovitosti? Podívejte se na jiné kategorie komerčních.


Vybrané články z našeho blogu