Pronájem bytu 3+1, Znojmo, Krylova, 79 m2 (ID: 4135726)

Krylova, Znojmo, Přímětice

15 000 Kč /za měsíc Získejte výhodnou HYPOTÉKU

(bez poplatků, + provize RK, včetně právního servisu)

Prémioví partneři v Znojmu

Informace k bytu

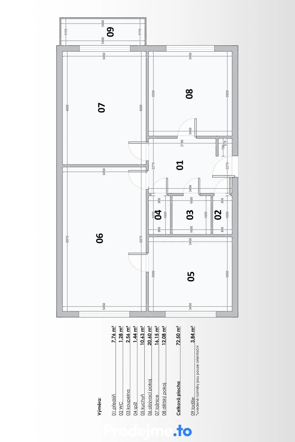
Představuji vám příjemný byt s nadstandardně velkou kuchyňskou linkou v klidné části Přímětic, kde budete mít vše důležité na dosah.

+ 3+1
+ 79 m2
+ balkón 2,4 m2
+ sklepní kóje 4,3 m2
+ velká kuchyňská linka včetně spotřebičů
+ včetně vybavení
+ plastová okna
+ klimatizace
+ nízké náklady na bydlení
+ skvělá občanská vybavenost

Tento byt s dispozičním řešením 3+1 nabízí plochu 79 m2 + balkón o 2,4 m2. Modernizace interiérů mu dodala svěží vzhled a především skutečně prostornou kuchyňskou linku. Byt se pronajímá s veškerým vybavením, které vidíte na fotografiích a je volný od 1.3.2026. Prohlídky jsou možné už nyní.

Byt sestává z předsíně s klimatizací, velkého obývacího pokoje, kuchyně s prostornou kuchyňskou linkou včetně spotřebičů, dále pak z dětského pokoje a ložnice se vstupem na balkón. Všechny tyto místnosti prošly úpravami a jsou laděné do světlých dekorů, které podporují příjemnou prosvětlenost celého bytu. Úložné prostory zajišťuje vlastní sklepní kóje o velikosti 4,3 m2.

Byt se nachází v nejvyšším patře čtyřpodlažního bytového domu bez výtahu na ulici Krylova. Díky své poloze nabízí nejen klid od ruchu ulice, ale také krásný výhled, ze kterého je vidět až na Znojmo. Přestože jde o nejvyšší patro, horka se v létě bát nemusíte – příjemnou teplotu zajišťuje klimatizace umístěná v předsíni. Bytový dům prošel revitalizací, takže poskytuje pohodlné bydlení s nízkými náklady na energie.

Dům leží v těsné blízkosti mateřské i základní školy, dětského a fotbalového hřiště a od supermarketu i bowlingu vás bude dělit méně než 100 metrů. Zastávka MHD propojující Přímětice s centrem Znojma leží necelých 50 metrů od domu.

Měsíční nájemné: 15.000 Kč
Zálohy na energie a služby: 2.883 Kč
Elektřina bude přepsána na nájemce, záloha cca 1.000 Kč/měsíc
Vratná kauce: 30.000 Kč
Provize RK: ve výši jednoho měsíčního nájemného + DPH 21%

Parametry bytu

Cena
15 000 Kč /za měsíc
Poznámka k ceně
bez poplatků, + provize RK, včetně právního servisu
Aktualizováno
18. 12. 2025
Adresa
Krylova, Znojmo, Přímětice
ID
100184
Stavba
Panelová
Stav objektu
Velmi dobrý
Patro
4.
Vybaveno
Ano
Druh objektu
Řadový
Lokalita objektu
Sídliště
Vlastnictví
Osobní
Užitná plocha
79 m2
Třída energetické náročnosti
G - Mimořádně nehospodárná
Elektřina
230V
Odpad
Veřejná kanalizace
Topení
Ústřední dálkové
Komunikace
Asfaltová
Telekomunikace
Internet
Doprava
Silnice, MHD, Autobus
Voda
Vodovod
Sklep
Lodžie
Výtah

Kontaktovat makléře

Máte zájem o tento byt?

Tímto, v souladu s nařízením Evropského parlamentu a Rady (EU) 2016/679, v platném znění, prohlašuji, že mi je alespoň 16 let a uděluji tak svůj souhlas se zpracováním zadaných údajů (jméno, telefon, e-mail, ip adresa) společnosti B3 Technology, s.r.o., IČ: 07330600, se sídlem Novostavby 126/23, 435 11 Lom (správce dat), za účelem předání dotazu z tohoto formuláře Vámi vybranému inzerentovi a zpětného kontaktování mé osoby. Osobní údaje bude správce zpracovávat manuálně i automaticky přímo prostřednictvím svých zaměstnanců. Informace předané tímto formulářem budou uloženy v databázi správce maximálně po dobu 10 let. Odvolání souhlasu s uložením a zpracováním poskytnutých dat lze e-mailem na info@videobydleni.cz. V případě podezření na neoprávněné použití Vámi poskytnutých údajů máte právo předat podnět k šetření Úřadu pro ochranu osobních údajů. Více informací
Chystáte se prodat nemovitost?
Pomůžeme Vám!

Inzerát si prohlédlo 1 lidí

Prodejce

Mgr. Lenka Vacková

Mgr. Lenka Vacková

Hlídací pes

Chcete dostávat emailem podobné nabídky pronájmu bytů 3+1 v Znojmu?

Podobné nemovitosti


Nevyhovuje Vám typ bytu? Podívejte se na jiné kategorie bytů.


Vybrané články z našeho blogu