Prodej rodinného domu, Záchlumí, 101 m2 (ID: 4136075)

Záchlumí

5 851 000 Kč /za nemovitost HYPOTÉKA od 26 150 Kč /za měsíc
Prémioví partneři v Záchlumí

Stěhovací služby

Pojištění a finance

Informace k domu

Prodej novostavby poloviny dvojdomu 4+kk v obci Záchlumí u Stříbra. Dům nabízí užitnou plochu 101 m² a je umístěn na pozemku o velikosti 394 m². Cena je včetně pozemku a DPH, bez skrytých nákladů. Jedná se o moderní, nízkoenergetické bydlení v klidné lokalitě s výbornou občanskou vybaveností.

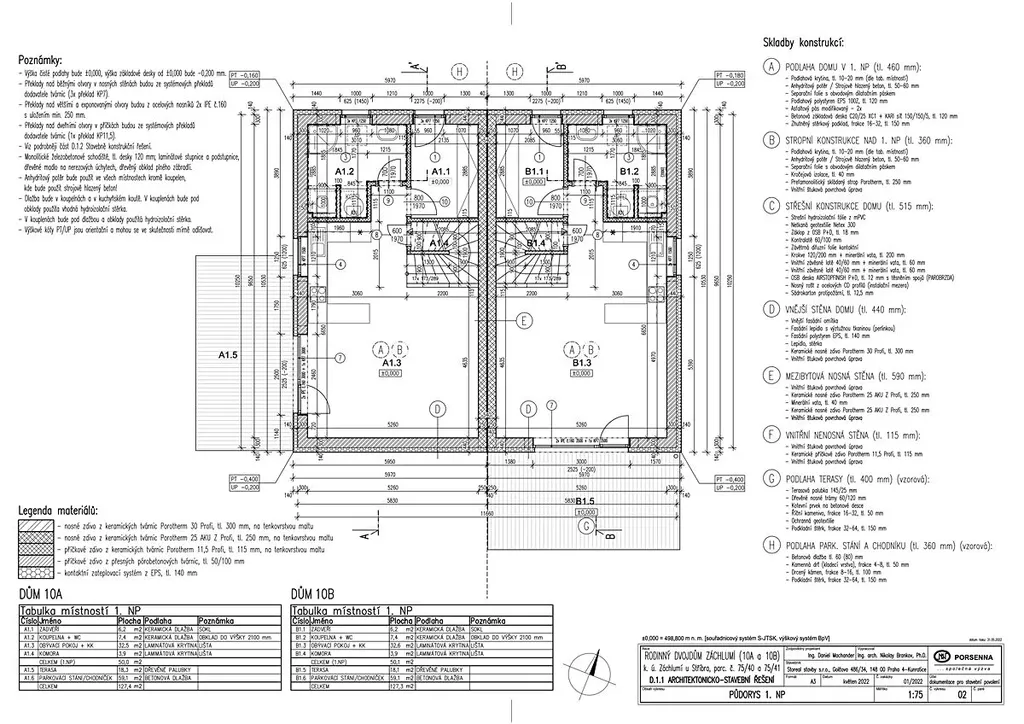
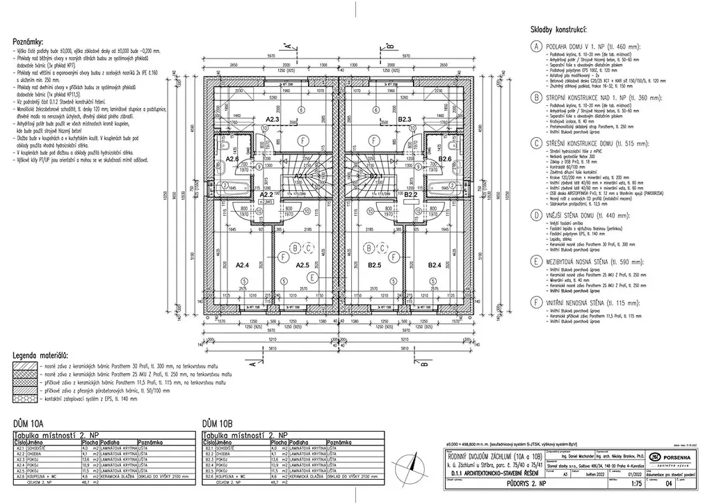
Dispozice domu 4+kk zajišťuje prostorné a světlé pokoje, které splní potřeby rodiny i jednotlivců. Stavba je řešena jako zděný dům z broušených cihel Porotherm, se železobetonovým schodištěm a keramickými stropy Porotherm + Miako. Střešní konstrukci tvoří dřevěný krov se střešní krytinou z PVC. Okna jsou plastová, trojskla, s vysokou izolační schopností. Energetická náročnost budovy je B, což znamená úsporný provoz a nižší měsíční náklady. Součástí standardu je fotovoltaická elektrárna 2,2 kW bez baterií, deskové radiátory napojené na plynový kotel Vaillant s ohřevem vody, rozvody vody a kanalizace v plastu, elektroinstalace s přípravou pro satelit a EZS, štukové omítky, bílé malby, fasádní zateplovací systém EPS 14 cm, klempířské prvky TiZn a okapový štěrkový chodník.

Dům je dodáván v provedení STANDARD: koupelny vybaveny obklady, dlažbami a sanitou, interiérové dveře Sapeli foliové, podlahy laminátové, v ceně jsou hrubé terénní úpravy do 3 m od domu a příjezdová cesta ze zámkové dlažby o ploše 25 m². Vybavení zahrnuje také parapety, vnitřní i venkovní klempířské prvky a kompletní rozvody. Cena neobsahuje venkovní žaluzie a oplocení pozemku, kuchyň.

Možné klientské změny před zahájením výstavby: úprava dispozic nenosných příček, změny rozvodů vody, kanalizace, elektro a topení, možnost vybudování komína pro krb nebo kamna. Další vnitřní úpravy lze řešit individuálně.

Projekt se nachází v obci Záchlumí u Stříbra, 30 km západně od Plzně, 5 km od Stříbra a 9 km od Konstantinových Lázní. Obec leží v mírném jižním svahu a disponuje bohatou občanskou vybaveností: nová škola a školka, obecní úřad, knihovna, sportoviště, kulturní akce, nový zdroj pitné vody a historické památky, včetně gotického kostela Narození Panny Marie. Lokalita je obklopena přírodou a protkaná cyklostezkami, ideální pro aktivní rodiny i milovníky klidu.

K dispozici je parkování přímo u domu, nízké provozní náklady a možnost prohlídky vzorového domu, abyste získali představu o kvalitě provedení a komfortu bydlení. Termín dokončení je srpen 2027.

Pokud hledáte moderní, komfortní a úsporné rodinné bydlení v atraktivní lokalitě s kompletní občanskou vybaveností, je tento dům ideální volbou. Kontaktujte nás pro více informací a rezervujte si svůj nový domov včas.

Parametry domu

Cena
5 851 000 Kč /za nemovitost Spočítat hypotéku
Aktualizováno
13. 5. 2026
Adresa
Záchlumí
ID
Záchlumí-10A
Stavba
Cihlová
Stav objektu
Novostavba
Užitná plocha
101 m2
Plocha pozemku
394 m2
Třída energetické náročnosti
B - Velmi úsporná
Ukazatel energetické náročnosti
97 kWh/m2 za rok
Parkování

Kontaktovat makléře

Máte zájem o tento dům?

Tímto, v souladu s nařízením Evropského parlamentu a Rady (EU) 2016/679, v platném znění, prohlašuji, že mi je alespoň 16 let a uděluji tak svůj souhlas se zpracováním zadaných údajů (jméno, telefon, e-mail, ip adresa) společnosti B3 Technology, s.r.o., IČ: 07330600, se sídlem Novostavby 126/23, 435 11 Lom (správce dat), za účelem předání dotazu z tohoto formuláře Vámi vybranému inzerentovi a zpětného kontaktování mé osoby. Osobní údaje bude správce zpracovávat manuálně i automaticky přímo prostřednictvím svých zaměstnanců. Informace předané tímto formulářem budou uloženy v databázi správce maximálně po dobu 10 let. Odvolání souhlasu s uložením a zpracováním poskytnutých dat lze e-mailem na info@videobydleni.cz. V případě podezření na neoprávněné použití Vámi poskytnutých údajů máte právo předat podnět k šetření Úřadu pro ochranu osobních údajů. Více informací
Chystáte se prodat nemovitost?
Pomůžeme Vám!
Theleadway banner

Inzerát si prohlédlo 13 lidí

Prodejce

Jiří Vlasák

Jiří Vlasák

Hlídací pes

Chcete dostávat emailem podobné nabídky prodeje rodinných domů v Záchlumí (okr. Tachov)?

Podobné nemovitosti


Nevyhovuje Vám typ domu? Podívejte se na jiné kategorie domů.


Vybrané články z našeho blogu