Prodej komerčního pozemku, Votice, 5037 m2 (ID: 4136739)

Votice, Buchov

4 990 000 Kč /za nemovitost HYPOTÉKA od 22 302 Kč /za měsíc
Prémioví partneři v Voticích

Informace k pozemku

Multifunkční areál s bydlením i podnikáním – přímo u E55, Votice

Na prodej nabízíme rozsáhlý a plně oplocený areál se stavbami o celkové výměře 3 345 m², který díky své poloze, velikosti a dispozičnímu řešení představuje výjimečnou příležitost pro podnikatele i investory. Místo kombinuje možnost okamžitého provozu, ubytování pracovníků, skladového zázemí i bydlení v jedné lokalitě. Součástí nabídky jsou dvě samostatné stavby – oba objekty vedené jako rodinné domy – vhodné pro kanceláře, dílnu, sídlo firmy, provozovnu nebo ubytovací zařízení.

K areálu navazují také dva zemědělské pozemky o rozloze 1 692 m², díky kterým získáváte celkem 5 037 m² půdy ve vyhledávané zóně BV (bydlení venkovské) s širokým spektrem povoleného využití. Tato územní kategorie umožňuje jak bydlení, tak nekolizní výrobu, sklady, zázemí firmy, parkování techniky či ubytovací služby.

Umístění u hlavní silnice E55 zajišťuje perfektní viditelnost pro jakýkoliv druh podnikání – denně zde projede více než 15 000 vozidel. Výhodou je také přímý vjezd z komunikace a blízkost plánovaného sjezdu z dálnice D3 u Voračic, který v budoucnu ještě zvýší dostupnost a hodnotu lokality.

Co umožňuje územní plán (BV – bydlení venkovské)

-rodinné domy, venkovské usedlosti

-drobná a řemeslná výroba bez negativních vlivů

-mechanické dílny, servisní činnost

-sklady, parkování vozidel a techniky

-provozy služeb a obslužné objekty

-hobby zemědělství a chov

-ubytovací zařízení a ubytování zaměstnanců

-možnost parkování přímo na pozemku


Klíčové přednosti areálu

-propojení bydlení, podnikání a ubytování na jednom místě

-maximální viditelnost u E55, možnost legální reklamy (např. vozidlo s plachtou)

-velká variabilita díky zóně BV

-objekt A připraven k okamžitému využití

-připravené zázemí a prostor pro další úpravy

-strategická poloha u E55, nedaleko budoucího nájezdu na D3


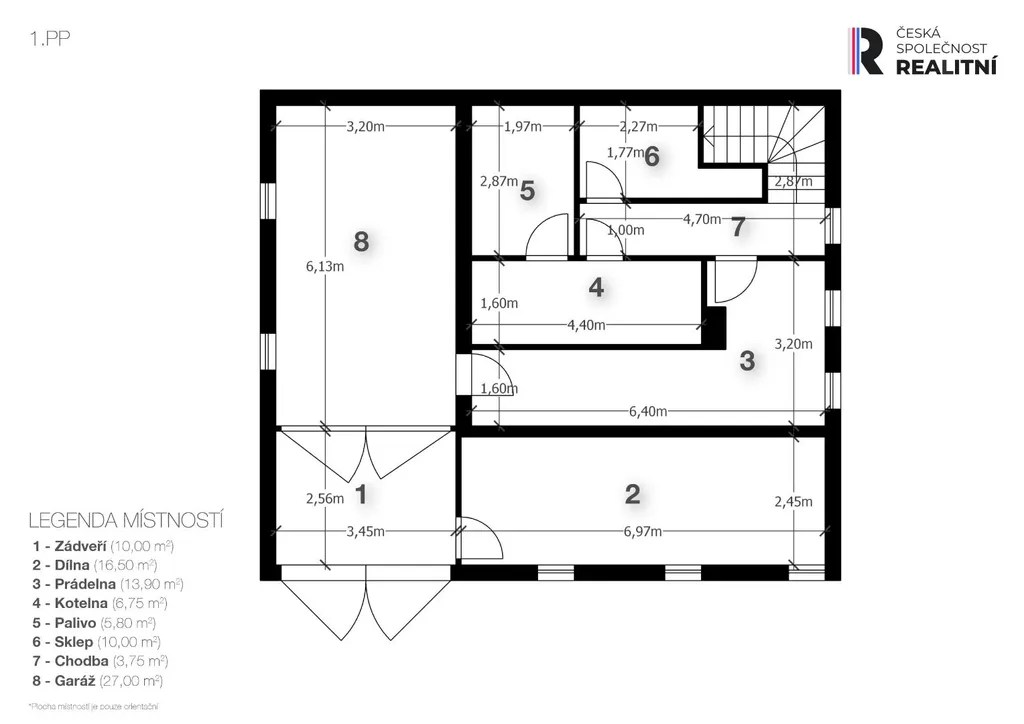
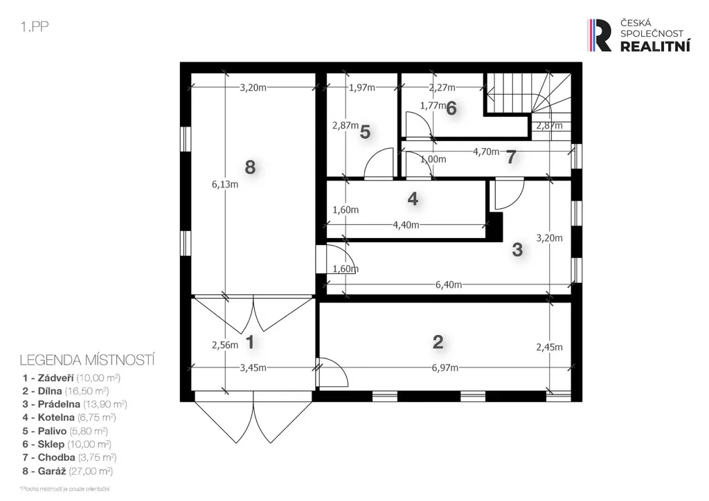
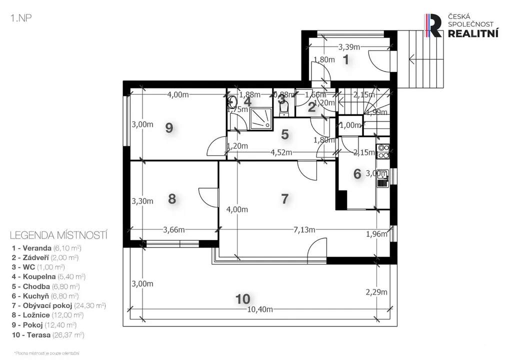
Popis staveb

Budova A

-částečně renovovaná, nová plastová okna a zateplení

-osazen moderním ekologickým kotlem H8–A se zásobníkem

-vhodné pro kancelář, firemní zázemí, ubytování

-navazuje na prostornou stodolu – ideální pro sklad či dílnu


Budova B

-určena k celkové rekonstrukci

-vhodná jako dílna, sklad, garáže nebo rozšíření provozu


Technické parametry

-elektřina 3×25 A

-voda přivedena z obecní studny – zdarma

-odpady vedeny do vlastní jímky

-mírně svažitý oplocený pozemek

-přímý sjezd z komunikace E55


Pro koho je nemovitost ideální?

Pro stavební a servisní firmy, e-shopy, řemeslníky, dopravce, podnikatele s potřebou skladů či zázemí techniky, nebo investory hledající objekt s možností ubytování zaměstnanců a dalším rozvojovým potenciálem.

Energetická náročnost: třída G (PENB se připravuje).

V případě zájmu o další informace či odkaz na detailní webovou prezentaci nás kontaktujte.

Parametry pozemku

Cena
4 990 000 Kč /za nemovitost Spočítat hypotéku
Aktualizováno
10. 1. 2026
Adresa
Votice, Buchov
ID
N90679
Stavba
Smíšená
Stav objektu
Před rekonstrukcí
Typ objektu
Patrový
Druh objektu
Samostatný
Vlastnictví
Osobní
Plocha pozemku
5037 m2
Třída energetické náročnosti
G - Mimořádně nehospodárná
Elektřina
400V
Odpad
Jímka
Topení
Lokální tuhá paliva, Ústřední tuhá paliva
Komunikace
Asfaltová
Doprava
Silnice, Autobus
Voda
Místní zdroj vody
Garáž
Sklep
Bezbarierový přístup
Parkování

Kontaktovat makléře

Máte zájem o tento pozemek?

Tímto, v souladu s nařízením Evropského parlamentu a Rady (EU) 2016/679, v platném znění, prohlašuji, že mi je alespoň 16 let a uděluji tak svůj souhlas se zpracováním zadaných údajů (jméno, telefon, e-mail, ip adresa) společnosti B3 Technology, s.r.o., IČ: 07330600, se sídlem Novostavby 126/23, 435 11 Lom (správce dat), za účelem předání dotazu z tohoto formuláře Vámi vybranému inzerentovi a zpětného kontaktování mé osoby. Osobní údaje bude správce zpracovávat manuálně i automaticky přímo prostřednictvím svých zaměstnanců. Informace předané tímto formulářem budou uloženy v databázi správce maximálně po dobu 10 let. Odvolání souhlasu s uložením a zpracováním poskytnutých dat lze e-mailem na info@videobydleni.cz. V případě podezření na neoprávněné použití Vámi poskytnutých údajů máte právo předat podnět k šetření Úřadu pro ochranu osobních údajů. Více informací
Chystáte se prodat nemovitost?
Pomůžeme Vám!

Inzerát si prohlédlo 22 lidí

Prodejce

Michal Šebor

Michal Šebor

Hlídací pes

Chcete dostávat emailem podobné nabídky prodeje komerčních pozemků v Voticích?

Podobné nemovitosti


Nevyhovuje Vám typ pozemku? Podívejte se na jiné kategorie pozemků.


Vybrané články z našeho blogu