Prodej bytu 2+kk, Harrachov, 69 m2

Harrachov

Rezervováno
7 499 000 Kč /za nemovitost HYPOTÉKA od 33 516 Kč /za měsíc

(Včetně parkovacího stání, vybavení a zařízení apartmánu.)

Prémioví partneři v Harrachově

Rekonstrukce

Úklidové služby

Informace k bytu

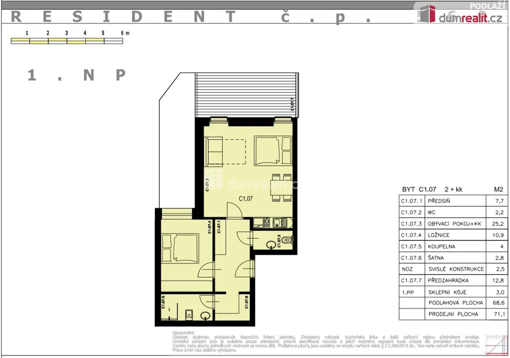
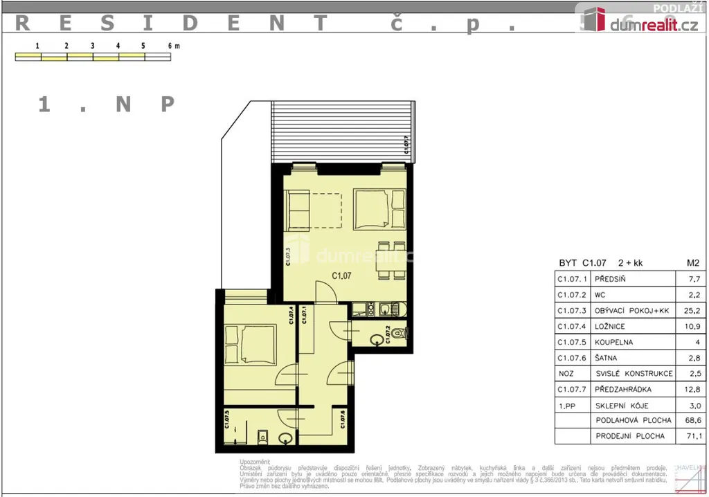
prodej nadstandardního horského apartmánu o dispozici 2+kk a celkové výměře 69m² s vlastní předzahrádkou (12,7 m²) v prestižním a vyhledávaném areálu Resident Harrachov. Apartmán se nachází v klidné části resortu s krásným výhledem na okolní hory. Dispozice a vybavení: Obývací pokoj s moderním kuchyňským koutem včetně vestavěných spotřebičů Koupelna po kompletní modernizaci Podlahové vytápění Sklepní kóje (3 m²) Vlastní parkovací stání v uzavřeném areálu Předzahrádka nabízí ideální prostor k relaxaci po dni stráveném v přírodě. Wellness & služby: Majitelé apartmánu mají přímý vstup do dvoupodlažního Grotta Spa – luxusního wellness centra s bazénem, saunou a relax zónou. Lokalita: Harrachov patří mezi nejatraktivnější horské destinace v ČR – ideální pro letní turistiku, cyklistiku, běžky i zimní sporty. V docházkové vzdálenosti najdete: Ski areál Bobovou dráhu Hilby trail Monkey Park pro děti Přímý přístup na Jizerskou magistrálu Investiční potenciál: Atraktivní možnost krátkodobého pronájmu s vysokou obsazeností. V resortu je k dispozici snídaňový servis v samostatném prostoru v přízemí budovy. Prohlídky možné i o víkendech. Rád vám zajistím nejvýhodnější financování hypotečním úvěrem dle aktuální nabídky na trhu. Pro více informací mě neváhejte kontaktovat kdykoli. Luxusní horské bydlení nebo výhodná investice – to vše v srdci Krkonoš! Ev. číslo: 653327.

Parametry bytu

Stav
Rezervováno
Cena
7 499 000 Kč /za nemovitost Spočítat hypotéku
Poznámka k ceně
Včetně parkovacího stání, vybavení a zařízení apartmánu.
Aktualizováno
4. 2. 2026
Adresa
Harrachov
ID
653941
Stavba
Skeletová
Stav objektu
Velmi dobrý
Patro
1. z 4
Vybaveno
Ano
Vlastnictví
Osobní
Užitná plocha
69 m2
Podlahová plocha
69 m2
Třída energetické náročnosti
B - Velmi úsporná
Ukazatel energetické náročnosti
12 kWh/m2 za rok
Sklep
Terasa

Kontaktovat makléře

Máte zájem o tento byt?

Tímto, v souladu s nařízením Evropského parlamentu a Rady (EU) 2016/679, v platném znění, prohlašuji, že mi je alespoň 16 let a uděluji tak svůj souhlas se zpracováním zadaných údajů (jméno, telefon, e-mail, ip adresa) společnosti B3 Technology, s.r.o., IČ: 07330600, se sídlem Novostavby 126/23, 435 11 Lom (správce dat), za účelem předání dotazu z tohoto formuláře Vámi vybranému inzerentovi a zpětného kontaktování mé osoby. Osobní údaje bude správce zpracovávat manuálně i automaticky přímo prostřednictvím svých zaměstnanců. Informace předané tímto formulářem budou uloženy v databázi správce maximálně po dobu 10 let. Odvolání souhlasu s uložením a zpracováním poskytnutých dat lze e-mailem na info@videobydleni.cz. V případě podezření na neoprávněné použití Vámi poskytnutých údajů máte právo předat podnět k šetření Úřadu pro ochranu osobních údajů. Více informací
Chystáte se prodat nemovitost?
Pomůžeme Vám!

Inzerát si prohlédlo 12 lidí

Prodejce

Vojtěch Hakl

Vojtěch Hakl

Hlídací pes

Chcete dostávat emailem podobné nabídky prodeje bytů 2+kk v Harrachově?

Podobné nemovitosti


Nevyhovuje Vám typ bytu? Podívejte se na jiné kategorie bytů.


Vybrané články z našeho blogu