Prodej bytu 2+1, Liberec - Liberec XII-Staré Pavlovice, Jarní, 62 m2

Jarní, Liberec XII-Staré Pavlovice

5 095 000 Kč /za nemovitost HYPOTÉKA od 22 772 Kč /za měsíc
Prémioví partneři v Liberci

Rekonstrukce

Úklidové služby

Pojištění a finance

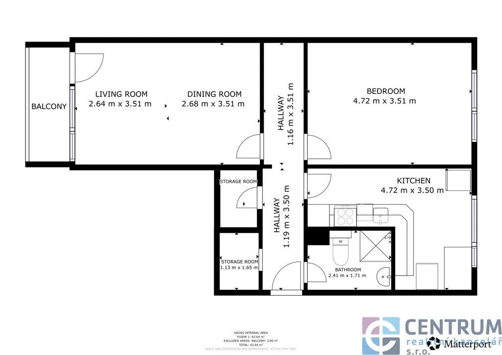
Informace k bytu

Nabízíme pěkný byt po rekonstrukci v Liberci Pavlovicích. Nachází se v menším klidném panelovém domě v ulici Jarní. Dispozičně se jedná o šikovně řešené 2+1 se dvěma neprůchozími pokoji, komfortní kuchyní, komorou, šatnou, koupelnou s wc a balkónem. Jednotka prostorově umožňuje úpravu dispozice na 3+kk. K bytu náleží dostatečně velká sklepní kóje.
Bytová jednotka prošla v roce 2020 rekonstrukcí, v rámci níž byla mírně změněna dispozice, realizována nová koupelna, nová kuchyně (obojí včetně rozvodů ZTI a elektroinstalace), v obývacím pokoji došlo na repasi parketové podlahy a instalaci nového okna a dveří na balkón, v ložnici byl na parkety položen nový koberec, ve zbytku bytu je položena nová vinylová podlahová krytina. Vytápění a ohřev TUV je řešen vlastním plynovým kotlem.
Liberec nabízí veškeré výhody krajského města - pracovní příležitosti, kulturní a sportovní vyžití, výbornou dopravní obslužnost a potenciál budoucího růstu. V okolí nemovitosti se nachází veškerá občanská vybavenost nedaleko naleznete kompletní síť obchodů, poštu, několik restaurací, školu, školku, zastávku MHD, dětská hřiště a další.
Pokud hledáte byt po rekonstrukci, na dobře dostupném místě, chcete balkón a uvítáte možnost okamžitého nastěhování, domluvte si prohlídku a věřte, že Vaše hledání je u konce. Bezproblémové parkování před domem. Budeme se na Vás těšit v Jarní ulici v Liberci.

Parametry bytu

Cena
5 095 000 Kč /za nemovitost Spočítat hypotéku
Aktualizováno
30. 4. 2026
Adresa
Jarní, Liberec XII-Staré Pavlovice
ID
663
Stavba
Panelová
Stav objektu
Dobrý
Patro
2. z 3
Typ objektu
Patrový
Vlastnictví
Osobní
Užitná plocha
62 m2
Podlahová plocha
64 m2
Elektřina
230V
Plyn
Plynovod
Odpad
Veřejná kanalizace
Topení
Ústřední plynové
Komunikace
Betonová
Telekomunikace
Internet
Doprava
MHD, Autobus
Voda
Vodovod
Topné těleso
Radiátory
Zdroj topení
Plynový kotel
Zdroj teplé vody
Plynový kotel
Balkon
Sklep
Bezbarierový přístup

Kontaktovat makléře

Máte zájem o tento byt?

Tímto, v souladu s nařízením Evropského parlamentu a Rady (EU) 2016/679, v platném znění, prohlašuji, že mi je alespoň 16 let a uděluji tak svůj souhlas se zpracováním zadaných údajů (jméno, telefon, e-mail, ip adresa) společnosti B3 Technology, s.r.o., IČ: 07330600, se sídlem Novostavby 126/23, 435 11 Lom (správce dat), za účelem předání dotazu z tohoto formuláře Vámi vybranému inzerentovi a zpětného kontaktování mé osoby. Osobní údaje bude správce zpracovávat manuálně i automaticky přímo prostřednictvím svých zaměstnanců. Informace předané tímto formulářem budou uloženy v databázi správce maximálně po dobu 10 let. Odvolání souhlasu s uložením a zpracováním poskytnutých dat lze e-mailem na info@videobydleni.cz. V případě podezření na neoprávněné použití Vámi poskytnutých údajů máte právo předat podnět k šetření Úřadu pro ochranu osobních údajů. Více informací
Chystáte se prodat nemovitost?
Pomůžeme Vám!
Theleadway banner

Inzerát si prohlédlo 93 lidí

Prodejce

Ing. Petr Polák

Ing. Petr Polák

Hlídací pes

Chcete dostávat emailem podobné nabídky prodeje bytů 2+1 v Liberci?

Podobné nemovitosti


Nevyhovuje Vám typ bytu? Podívejte se na jiné kategorie bytů.


Vybrané články z našeho blogu