Prodej pozemku pro bydlení, Medlovice, 674 m2 (ID: 4138418)

Medlovice

2 884 720 Kč /za nemovitost HYPOTÉKA od 12 893 Kč /za měsíc
Prémioví partneři v Medlovicích

Informace k pozemku

Prodej stavebního pozemku 674 m² – Medlovice, okres Vyškov

Nabízíme ke koupi stavební pozemek o výměře 674 m² situovaný v klidné části obce Medlovice, okres Vyškov. Pozemek je určen k výstavbě samostatně stojícího rodinného domu.

Inženýrské sítě a infrastruktura:
Pozemek je napojen na kompletní inženýrské sítě:
- vodovodní řád
- dešťová a splašková kanalizace (přípojky již zbudovány)
- elektrická energie – rezervovaný příkon 3x25A
- veřejné osvětlení
- optické rozvody pro internet

Přímý přístup z nové komunikace. V lokalitě je již vybudována kompletní infrastruktura.

Základní informace:
Výměra: 674 m²
Maximální zastavěnost: 45 %
Dle platného územního plánu: pozemek bez regulativu
Klidná a uzavřená část obce
Krásné výhledy do okolní krajiny

Lokalita a dostupnost:
Obec Medlovice se nachází 8 km od Vyškova, s výbornou dostupností na dálnici D1. Brno je vzdálené 38 km. Díky této poloze je Medlovice ideálním místem pro bydlení s kombinací přírody a dobré dopravní dostupnosti do větších měst.

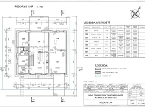
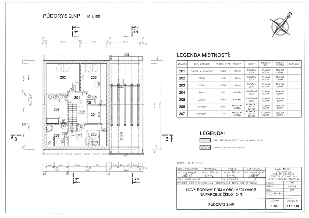
K pozemku je zpracována projektová dokumentace na nízkoenergetický RD, která je k pozemku zdarma, ale není nutnost jí použít. Na pozemku lze postavit RD dle vlastního návrhu. Cena pozemku je uvedena včetně DPH. Prodávající je plátce DPH.

Parametry pozemku

Cena
2 884 720 Kč /za nemovitost Spočítat hypotéku
Aktualizováno
25. 12. 2025
Adresa
Medlovice
Lokalita objektu
Klidná část obce
Plocha pozemku
674 m2
Elektřina
230V
Odpad
Veřejná kanalizace
Komunikace
Asfaltová
Doprava
Dálnice, Silnice, Autobus
Voda
Vodovod

Kontaktovat makléře

Máte zájem o tento pozemek?

Tímto, v souladu s nařízením Evropského parlamentu a Rady (EU) 2016/679, v platném znění, prohlašuji, že mi je alespoň 16 let a uděluji tak svůj souhlas se zpracováním zadaných údajů (jméno, telefon, e-mail, ip adresa) společnosti B3 Technology, s.r.o., IČ: 07330600, se sídlem Novostavby 126/23, 435 11 Lom (správce dat), za účelem předání dotazu z tohoto formuláře Vámi vybranému inzerentovi a zpětného kontaktování mé osoby. Osobní údaje bude správce zpracovávat manuálně i automaticky přímo prostřednictvím svých zaměstnanců. Informace předané tímto formulářem budou uloženy v databázi správce maximálně po dobu 10 let. Odvolání souhlasu s uložením a zpracováním poskytnutých dat lze e-mailem na info@videobydleni.cz. V případě podezření na neoprávněné použití Vámi poskytnutých údajů máte právo předat podnět k šetření Úřadu pro ochranu osobních údajů. Více informací
Chystáte se prodat nemovitost?
Pomůžeme Vám!

Inzerát si prohlédlo 3 lidí

Prodejce

JUDr.Vladimír Prokop

JUDr.Vladimír Prokop

Hlídací pes

Chcete dostávat emailem podobné nabídky prodeje pozemků pro bydlení v Medlovicích (okr. Vyškov)?

Podobné nemovitosti


Nevyhovuje Vám typ pozemku? Podívejte se na jiné kategorie pozemků.


Vybrané články z našeho blogu