Prodej rodinného domu, Veleň, Na růžku, 130 m2 (ID: 4138801)

Na Růžku, Veleň

13 850 000 Kč /za nemovitost HYPOTÉKA od 61 901 Kč /za měsíc
Prémioví partneři v Veleni

Informace k domu

Komfortně a kvalitně stavěný rodinný dům, vkusně zapadající do původní zástavby obce, vybavený moderními technologickými prvky s termínem dokončení prosinec 2025.

Dům je zcela nově postaven v klidné části obce Veleň a aktuálně se dokončují práce v interiéru a přichází čas i na zahradu. Novému majiteli bude k dispozici:

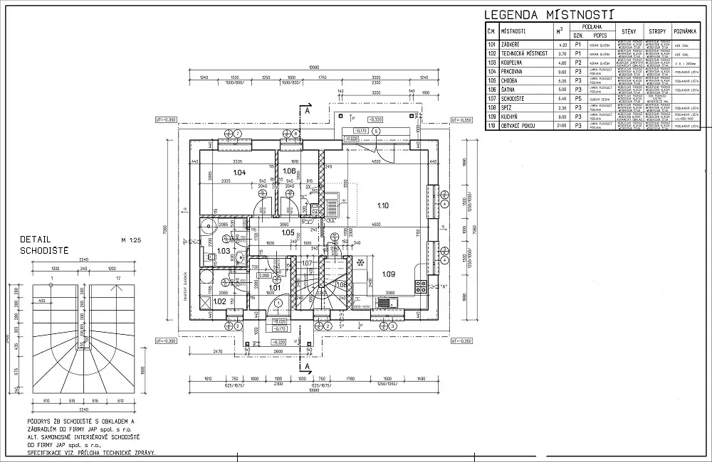
v 1.NP vstupní chodba s technickou místností, hala, ze které se bude moci vejít do koupelny se sprchovým koutem a toaletou, ložnice a dále praktická šatna/pracovna. V obývacím pokoji je instalováno velké francouzské okno s posuvnými dveřmi pro příjemné propojení obytné plochy se zahradou, součástí prodeje je i kuchyňský kout plně vybaven kvalitními spotřebiči, příjemná je spíž přístupná z kuchyně

ve 2.NP jsou k dispozici 3 ložnice, šatna, koupelna s rohovou vanou a samostatná toaleta.

Celá nemovitost je připravena a dozorována architektem, který zvolil světlý klidný interiér a tvořit ho bude kvalitní vinylová podlaha, světlá kuchyňská linka s kvalitními vestavnými spotřebiči, v koupelnách bude světlá velkoformátová dlažba/obklady a kvalitní bílá keramika kombinovaná se světlým dřevem a v obou nadzemní podlažích je již instalováno podlahové topení. Dům bude vytápět tepelné čerpadlo vybavené pro teplé letní dny i funkcí pro chlazení. Samozřejmostí jsou datové rozvody, okna s trojskly, retenční nádrž na dešťovou vodu. Na zahradě bude místo na parkování pro 2 auta a dále dřevěný zahradní domek.

Případné změny barev a vybavení je možné měnit po vzájemné dohodě.

Obec Veleň leží na hranici hlavního města Prahy vedle městské části Čakovice a kromě školy a školky nabízí svým obyvatelům poklidné a příjemné žití v přírodě jen nedaleko hlavního města.

Užitná plocha domu 130 m2, pozemek 311 m2.

Fotografie zachycují aktuální stav nemovitosti a návrh možného stavu po dokončení.

Parametry domu

Cena
13 850 000 Kč /za nemovitost Spočítat hypotéku
Aktualizováno
23. 12. 2025
Adresa
Na Růžku, Veleň
Stavba
Cihlová
Stav objektu
Ve výstavbě
Druh objektu
Samostatný
Lokalita objektu
Klidná část obce
Užitná plocha
130 m2
Plocha pozemku
311 m2
Třída energetické náročnosti
B - Velmi úsporná
Elektřina
230V
Odpad
Veřejná kanalizace
Telekomunikace
Internet
Voda
Vodovod
Topné těleso
Podlahové vytápění
Zdroj topení
Tepelné čerpadlo
Zdroj teplé vody
Tepelné čerpadlo
Parkování

Kontaktovat makléře

Realitní kancelář

DHZ servis

Na Tržišti 152, Nymburk

Chystáte se prodat nemovitost?
Pomůžeme Vám!

Máte zájem o tento dům?

Tímto, v souladu s nařízením Evropského parlamentu a Rady (EU) 2016/679, v platném znění, prohlašuji, že mi je alespoň 16 let a uděluji tak svůj souhlas se zpracováním zadaných údajů (jméno, telefon, e-mail, ip adresa) společnosti B3 Technology, s.r.o., IČ: 07330600, se sídlem Novostavby 126/23, 435 11 Lom (správce dat), za účelem předání dotazu z tohoto formuláře Vámi vybranému inzerentovi a zpětného kontaktování mé osoby. Osobní údaje bude správce zpracovávat manuálně i automaticky přímo prostřednictvím svých zaměstnanců. Informace předané tímto formulářem budou uloženy v databázi správce maximálně po dobu 10 let. Odvolání souhlasu s uložením a zpracováním poskytnutých dat lze e-mailem na info@videobydleni.cz. V případě podezření na neoprávněné použití Vámi poskytnutých údajů máte právo předat podnět k šetření Úřadu pro ochranu osobních údajů. Více informací
Chystáte se prodat nemovitost?
Pomůžeme Vám!

Inzerát si prohlédlo 0 lidí

Prodejce

Mgr. Jan Vanický

Mgr. Jan Vanický

Hlídací pes

Chcete dostávat emailem podobné nabídky prodeje rodinných domů v Veleni?

Podobné nemovitosti


Nevyhovuje Vám typ domu? Podívejte se na jiné kategorie domů.


Vybrané články z našeho blogu