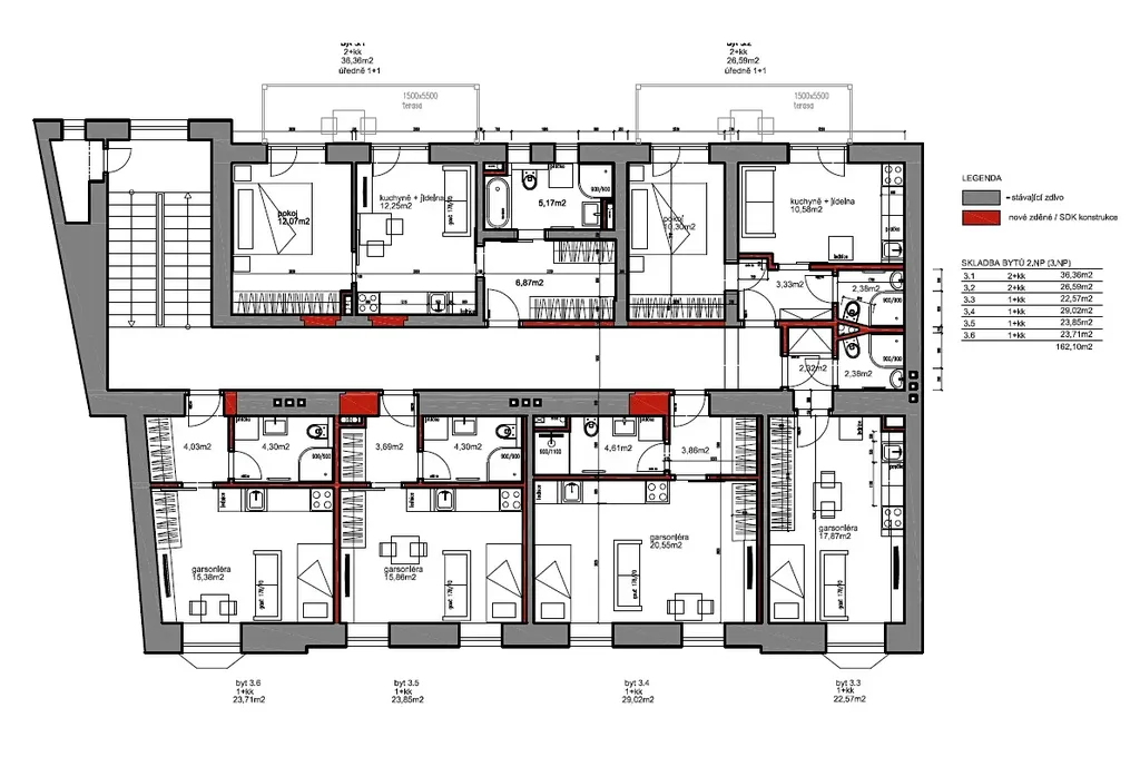
Vaše cesta k vysněné nemovitosti je zase o něco kratší. Teď už stačí si jen vybrat jeden z prodejů činžovních domů v Písku.

Harantova, Písek