Prodej bytu 2+kk, Radhimë, 82 m2

Radhimë

259 560 € /za nemovitost Získejte výhodnou HYPOTÉKU

(259.560 euro)

Prémioví partneři

Informace k bytu

Twin Resort and #34;
Regina Construction je lídrem ve stavebnictví, známým pro své vynikající projekty, které kombinují vysokou kvalitu s inovací a elegancí. S hrdostí vám představujeme náš nejnovější a nejambicióznější projekt Twin Resort, který je v současné době ve výstavbě a jehož dokončení se očekává v roce 2026.

Twin Resort je exkluzivní civilní rezidenční destinace určená pro ty, kteří chtějí strávit dovolenou v jedinečném a luxusním prostředí. Tento resort se nachází v oblasti s vysokým rozvojovým potenciálem v Radhime a nabídne jedinečný zážitek z bydlení na pobřeží.
Twin Resort se nachází v exkluzivní oblasti Radhime, která si klade za cíl stát se jednou z nejkrásnějších destinací v regionu pro luxusní dovolenou a exkluzivní pláže. Vlora National Road, Orikum, Radhime, obec Vlora.
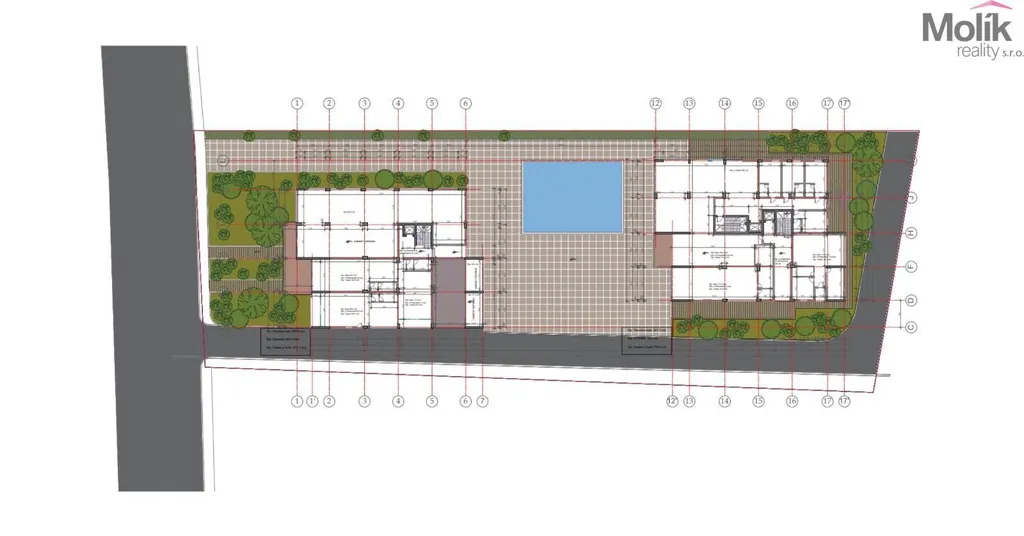
Projekt se skládá ze dvou čtyřpatrových budov pečlivě navržených tak, aby nabízely maximální pohodlí a sofistikovanou estetiku. Hotel a rezidenční objekt s turistickými službami, 4 podlaží, s využitelnou terasou, 1 podzemním podlažím a okolní zdí, nacházející se v Radhimë.
Bazen, privátní pláž a parkování.
Nabízíme k prodeji apartmán ve 4.patře o celkové ploše 92.7 m2.

Pro více informací a případně jiných půdorysech, mě kontaktujte 7dní v týdnu!

Parametry bytu

Cena
259 560 € /za nemovitost Spočítat hypotéku
Poznámka k ceně
259.560 euro
Aktualizováno
28. 12. 2025
Adresa
Radhimë
ID
MR14612
Stavba
Cihlová
Stav objektu
Novostavba
Patro
4. z 5
Typ objektu
Patrový
Vlastnictví
Osobní
Užitná plocha
82 m2
Podlahová plocha
92 m2
Třída energetické náročnosti
A - Mimořádně úsporná
Odpad
Veřejná kanalizace
Komunikace
Asfaltová
Telekomunikace
Telefon, Internet
Doprava
Dálnice, Silnice, Autobus
Balkon
Garáž
Terasa
Výtah
Bezbarierový přístup
Parkování
Bazén
Nízkoenergetický

Kontaktovat makléře

Máte zájem o tento byt?

Tímto, v souladu s nařízením Evropského parlamentu a Rady (EU) 2016/679, v platném znění, prohlašuji, že mi je alespoň 16 let a uděluji tak svůj souhlas se zpracováním zadaných údajů (jméno, telefon, e-mail, ip adresa) společnosti B3 Technology, s.r.o., IČ: 07330600, se sídlem Novostavby 126/23, 435 11 Lom (správce dat), za účelem předání dotazu z tohoto formuláře Vámi vybranému inzerentovi a zpětného kontaktování mé osoby. Osobní údaje bude správce zpracovávat manuálně i automaticky přímo prostřednictvím svých zaměstnanců. Informace předané tímto formulářem budou uloženy v databázi správce maximálně po dobu 10 let. Odvolání souhlasu s uložením a zpracováním poskytnutých dat lze e-mailem na info@videobydleni.cz. V případě podezření na neoprávněné použití Vámi poskytnutých údajů máte právo předat podnět k šetření Úřadu pro ochranu osobních údajů. Více informací
Chystáte se prodat nemovitost?
Pomůžeme Vám!

Inzerát si prohlédlo 6 lidí

Prodejce

Jan Teleki

Jan Teleki

Hlídací pes

Chcete dostávat emailem podobné nabídky prodeje bytů 2+kk?

Podobné nemovitosti


Nevyhovuje Vám typ bytu? Podívejte se na jiné kategorie bytů.


Vybrané články z našeho blogu