Pronájem bytu 3+kk, Praha - Hlubočepy, Hlubočepská, 81 m2

Hlubočepská, Hlubočepy - Praha 5

29 900 Kč /za měsíc Získejte výhodnou HYPOTÉKU

(vratná jistota, náklady na bydlení 5 668 Kč, poplatek za podnájem)

Prémioví partneři v Praze 5

Stěhovací služby

Výkup a prodej starého nábytku

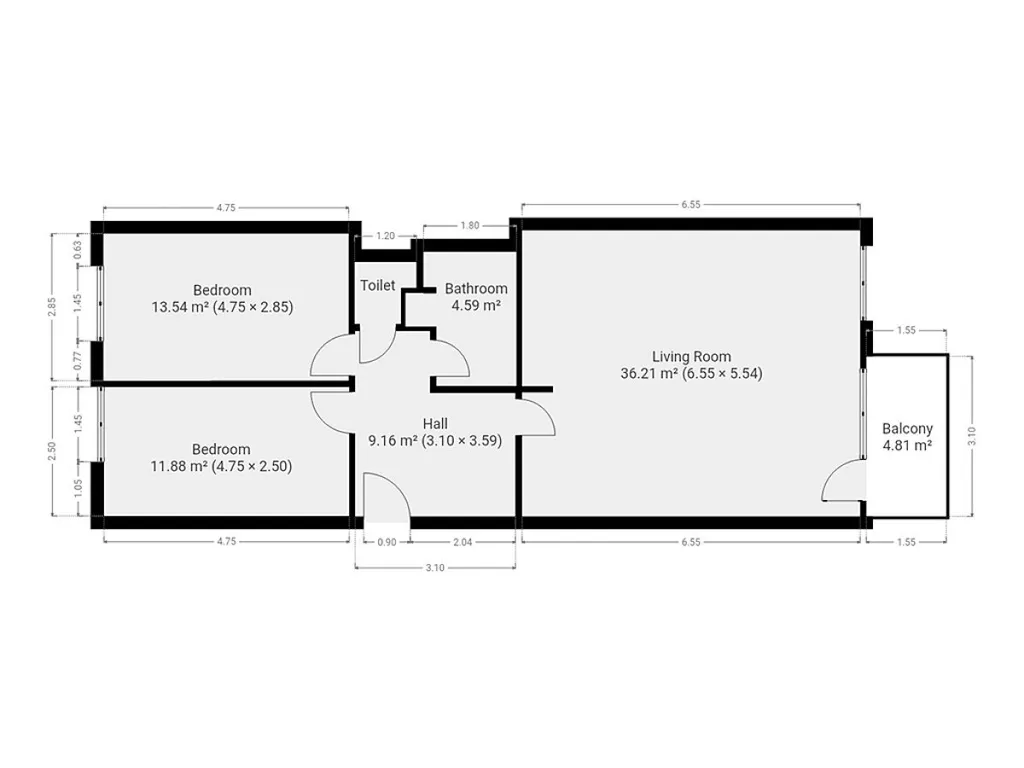
Informace k bytu

K dlouhodobému podnájmu nabízíme prostorný a světlý byt 3+kk o výměře 81 m² s balkonem a parkovacím stáním v rezidenční části Praha 5 – Hlubočepy, v bezprostřední blízkosti Prokopského údolí. Byt je v rezidenčním objektu Prokopský dvůr, jehož součástí je neveřejná parková zeleň a dětské hřiště výhradně pro uživatele bytového domu.

Tato lokalita je ideální pro ty, kteří chtějí spojit pohodlí města s každodenním kontaktem s přírodou. Jen pár minut od domu začíná přírodní rezervace Prokopské údolí – jedno z nejkrásnějších míst v Praze, které nabízí rozsáhlé možnosti pro procházky, běhání, cyklistiku i víkendový relax mimo ruch centra. Klidné okolí, minimum tranzitní dopravy a zeleň na dosah vytváří příjemné a bezpečné prostředí pro každodenní život.

Zároveň je zajištěno velmi dobré spojení do centra – autobusová zastávka Nádraží Hlubočepy je pár minut chůze od domu, odkud se pohodlně dostanete na metro B – Anděl a dále do širšího centra města. Kromě autobusu je možné jet na Smíchov i vlakem v rámci Pražské integrované dopravy. Autem je Smíchov dostupný během několika minut.

Byt se nachází v 1. patře moderního bytového domu. K jednotce náleží balkon, sklep a vlastní parkovací stání v domě (zahrnuto v ceně nájmu), což výrazně zvyšuje komfort bydlení.

Dispozice nabízí prostorný obývací pokoj s kuchyňským koutem, dvě samostatné ložnice, koupelnu s vanou, samostatnou toaletu a vstupní chodbu s vestavěnými skříněmi. Kuchyň je vybavena lednicí s mrazákem, myčkou, elektrickou troubou, varnou deskou a digestoří. Ostatní místnosti jsou nezařízené a umožňují budoucím nájemníkům přizpůsobit si interiér dle vlastních představ.

V bezprostředním okolí domu se nachází potraviny, restaurace, kavárny, mateřská škola i dětské hřiště. Lokalita je oblíbená zejména mezi lidmi, kteří hledají klidné bydlení s rychlou dostupností městské infrastruktury, ale zároveň chtějí mít přírodu doslova za domem.

Byt je volný k nastěhování ihned.

Energetická třída: G (průkaz nedodán).

Parametry bytu

Cena
29 900 Kč /za měsíc
Poznámka k ceně
vratná jistota, náklady na bydlení 5 668 Kč, poplatek za podnájem
Aktualizováno
23. 2. 2026
Adresa
Hlubočepská, Hlubočepy - Praha 5
ID
N7068
Stavba
Cihlová
Stav objektu
Velmi dobrý
Patro
2. z 4
Vybaveno
Ne
Typ objektu
Patrový
Lokalita objektu
Klidná část obce
Vlastnictví
Osobní
Užitná plocha
81 m2
Podlahová plocha
81 m2
Elektřina
230V
Plyn
Plynovod
Topení
Ústřední plynové
Doprava
Vlak, Dálnice, Silnice, MHD, Autobus
Voda
Vodovod
Balkon
Garáž
Sklep
Výtah
Parkování

Kontaktovat makléře

Máte zájem o tento byt?

Tímto, v souladu s nařízením Evropského parlamentu a Rady (EU) 2016/679, v platném znění, prohlašuji, že mi je alespoň 16 let a uděluji tak svůj souhlas se zpracováním zadaných údajů (jméno, telefon, e-mail, ip adresa) společnosti B3 Technology, s.r.o., IČ: 07330600, se sídlem Novostavby 126/23, 435 11 Lom (správce dat), za účelem předání dotazu z tohoto formuláře Vámi vybranému inzerentovi a zpětného kontaktování mé osoby. Osobní údaje bude správce zpracovávat manuálně i automaticky přímo prostřednictvím svých zaměstnanců. Informace předané tímto formulářem budou uloženy v databázi správce maximálně po dobu 10 let. Odvolání souhlasu s uložením a zpracováním poskytnutých dat lze e-mailem na info@videobydleni.cz. V případě podezření na neoprávněné použití Vámi poskytnutých údajů máte právo předat podnět k šetření Úřadu pro ochranu osobních údajů. Více informací
Chystáte se prodat nemovitost?
Pomůžeme Vám!

Inzerát si prohlédlo 7 lidí

Prodejce

Miloslava Kačerová

Miloslava Kačerová

Hlídací pes

Chcete dostávat emailem podobné nabídky pronájmu bytů 3+kk v Praze 5?

Podobné nemovitosti


Nevyhovuje Vám typ bytu? Podívejte se na jiné kategorie bytů.


Vybrané články z našeho blogu