Prodej komerčního pozemku, Strachotín, 2465 m2 (ID: 4140933)

Strachotín

6 900 000 Kč /za nemovitost HYPOTÉKA od 30 839 Kč /za měsíc

(vydané stavební povolení, včetně provize, včetně právního servisu)

Prémioví partneři v Strachotíně

Informace k pozemku

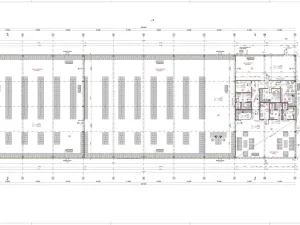
Prodej komerčního pozemku se stavebním povolením na výstavbu moderní skladovací a prodejní haly s administrativním zázemím o celkové zastavěné ploše 1 240,25 m², navržené v energetické třídě A.

Dobrý den,
dovolujeme si Vám nabídnout atraktivní komerční pozemek o ploše 2 465 m², určený k realizaci novostavby skladovací a prodejní haly dle platného stavebního povolení. Lokalita je snadno dostupná, elektřina je již přivedena na pozemek, je vyhotoven projekt napojení na obecní vodovod a celý areál je obsloužen místní asfaltovou komunikací.

Navržená hala je jednopodlažní objekt s ocelovou nosnou konstrukcí a moderním opláštěním z PIR panelů. Dispozice zahrnuje dvě rozsáhlé skladovací plochy o výměře 595,43 m² a 360,77 m², zásobovací prostor a administrativní část o 172,83 m² určenou pro zaměstnance i zákazníky. Energetická náročnost budovy je ve třídě A díky navržené kvalitní tepelné izolaci, moderní střešní skladbě a použití tepelného čerpadla vzduch–voda jako hlavního zdroje tepla. Celková užitná plocha objektu činí 1 185,68 m².

Součástí projektu je kompletní řešení hospodaření s vodami. Dešťové vody jsou svedeny do sestavy železobetonových jímek, které zároveň slouží jako požární nádrž. Splaškové vody jsou odváděny do samostatné jímky. Celkový návrh je funkčně připraven pro moderní a efektivní provoz.

Pozemek nabízí výborné podmínky pro zásobování a manipulaci s materiálem, což jej činí ideálním pro logistiku, distribuci či provoz prodejního skladu. Díky vydanému stavebnímu povolení lze s realizací stavby začít okamžitě.

Tento projekt představuje jedinečnou příležitost pro podnikatele, investory či firmy, které hledají moderní, energeticky úsporný a kapacitně velkorysý prostor pro skladování, lehkou výrobu nebo kombinaci s prodejní funkcí.

Pro více informací nás neváhejte kontaktovat. Rádi Vám poskytneme projektovou dokumentaci, technické podklady i detailní informace k možnostem využití objektu.

Parametry pozemku

Cena
6 900 000 Kč /za nemovitost Spočítat hypotéku
Poznámka k ceně
vydané stavební povolení, včetně provize, včetně právního servisu
Aktualizováno
28. 12. 2025
Adresa
Strachotín
ID
01989
Plocha pozemku
2465 m2
Elektřina
230V, 400V
Odpad
Jímka
Topení
Ústřední elektrické
Komunikace
Asfaltová
Voda
Vodovod, Studna

Kontaktovat makléře

Realitní kancelář

Logo Frami Real

Frami Real

U Pošty 402/14, Brno, Starý Lískovec

Chystáte se prodat nemovitost?
Pomůžeme Vám!

Máte zájem o tento pozemek?

Tímto, v souladu s nařízením Evropského parlamentu a Rady (EU) 2016/679, v platném znění, prohlašuji, že mi je alespoň 16 let a uděluji tak svůj souhlas se zpracováním zadaných údajů (jméno, telefon, e-mail, ip adresa) společnosti B3 Technology, s.r.o., IČ: 07330600, se sídlem Novostavby 126/23, 435 11 Lom (správce dat), za účelem předání dotazu z tohoto formuláře Vámi vybranému inzerentovi a zpětného kontaktování mé osoby. Osobní údaje bude správce zpracovávat manuálně i automaticky přímo prostřednictvím svých zaměstnanců. Informace předané tímto formulářem budou uloženy v databázi správce maximálně po dobu 10 let. Odvolání souhlasu s uložením a zpracováním poskytnutých dat lze e-mailem na info@videobydleni.cz. V případě podezření na neoprávněné použití Vámi poskytnutých údajů máte právo předat podnět k šetření Úřadu pro ochranu osobních údajů. Více informací
Chystáte se prodat nemovitost?
Pomůžeme Vám!

Inzerát si prohlédlo 1 lidí

Prodejce

Martin Klein

Martin Klein

Hlídací pes

Chcete dostávat emailem podobné nabídky prodeje komerčních pozemků v Strachotíně?

Podobné nemovitosti


Nevyhovuje Vám typ pozemku? Podívejte se na jiné kategorie pozemků.


Vybrané články z našeho blogu