Prodej rodinného domu, Bučovice, Slovenská, 900 m2

Slovenská, Bučovice, Vícemilice

12 600 000 Kč /za nemovitost HYPOTÉKA od 56 314 Kč /za měsíc

(včetně poplatků, včetně provize, včetně právního servisu)

Prémioví partneři v Bučovicích

Informace k domu

Ve výhradním zastoupení nabízíme k prodeji unikátní stavbu v obci Bučovice - Vícemilice.
Hledáte ke svému podnikání-bydlení polyfunkční nemovitost, která je strategicky výhodně umístěna v Bučovicích, u silnice E50 mezi Brnem a Uherským Hradištěm? Plánujete rozšířit své působení s výbornou dojezdností do těchto dvou moravských metropolí? Pokud je vašim cílem najít objekt k výrobě, uskladnění, prodeji, školícím či ubytovacím aktivitám, je tato nemovitost právě pro vás.

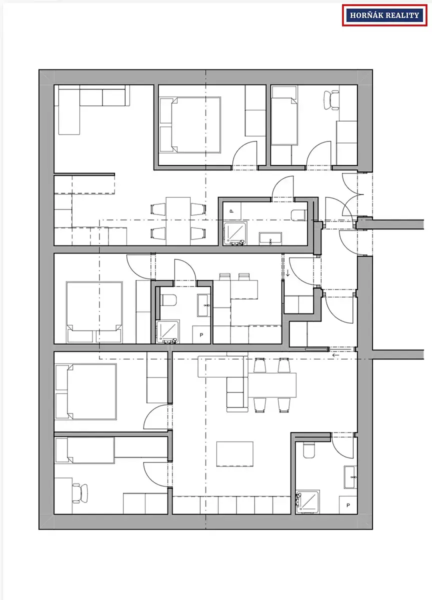
Unikátní multifunční stavba v Bučovicích původně sloužila jako mlýn. Z této doby bylo v interiéru částečně zachováno původní zdivo, což dodává nemovitosti nevšední ráz. Stavba je podsklepená a má 3 nadzemní podlaží, které byly v minulosti využívány jako motosalon a restaurace. Vrchní patro je připraveno pro dostavbou bytových jednotek, viz návrh v prezentovaném výkresu.

Celková výměra pozemku je 528m2, užitná plocha je 900m2 včetně rozsáhlých teras. Nemovitost je napojena na veškeré energie - plynovod, elektřina 220V i 380V, místní vodovod i kanalizaci. Součástí pozemku jsou i dvě studny s napojením užitkové vody. Topení je v 1NP řešeno podlahovým topením s plynovým kotlem, v ostatních podlažích plynovým kotlem a vzduchotechnikou. Střecha je titan zinková s dlouhou životností. Přístup do objektu je zajištěn i pro nákladní vozidla, na zaměstnance či zákazníky čeká přilehlé vlastní parkoviště.

Zaujala vás tato zajímavá podnikatelská příležitost? Požádejte si o prohlídku! Budu se na vás těšit.

Parametry domu

Cena
12 600 000 Kč /za nemovitost Spočítat hypotéku
Poznámka k ceně
včetně poplatků, včetně provize, včetně právního servisu
Aktualizováno
29. 12. 2025
Adresa
Slovenská, Bučovice, Vícemilice
ID
18386
Stavba
Cihlová
Stav objektu
Dobrý
Vybaveno
Částečně
Druh objektu
Samostatný
Lokalita objektu
Okraj obce
Užitná plocha
900 m2
Plocha pozemku
503 m2
Třída energetické náročnosti
G - Mimořádně nehospodárná
Elektřina
230V, 400V
Plyn
Plynovod
Odpad
Veřejná kanalizace
Komunikace
Asfaltová
Doprava
Vlak, Dálnice, Silnice, Autobus
Voda
Místní zdroj vody, Studna
Topné těleso
Podlahové vytápění, Klimatizace
Zdroj topení
Plynový kotel
Garáž
Sklep
Parkování

Kontaktovat makléře

Máte zájem o tento dům?

Tímto, v souladu s nařízením Evropského parlamentu a Rady (EU) 2016/679, v platném znění, prohlašuji, že mi je alespoň 16 let a uděluji tak svůj souhlas se zpracováním zadaných údajů (jméno, telefon, e-mail, ip adresa) společnosti B3 Technology, s.r.o., IČ: 07330600, se sídlem Novostavby 126/23, 435 11 Lom (správce dat), za účelem předání dotazu z tohoto formuláře Vámi vybranému inzerentovi a zpětného kontaktování mé osoby. Osobní údaje bude správce zpracovávat manuálně i automaticky přímo prostřednictvím svých zaměstnanců. Informace předané tímto formulářem budou uloženy v databázi správce maximálně po dobu 10 let. Odvolání souhlasu s uložením a zpracováním poskytnutých dat lze e-mailem na info@videobydleni.cz. V případě podezření na neoprávněné použití Vámi poskytnutých údajů máte právo předat podnět k šetření Úřadu pro ochranu osobních údajů. Více informací
Chystáte se prodat nemovitost?
Pomůžeme Vám!

Inzerát si prohlédlo 0 lidí

Prodejce

Ing. Bohdan Horňák

Ing. Bohdan Horňák

Hlídací pes

Chcete dostávat emailem podobné nabídky prodeje rodinných domů v Bučovicích?

Podobné nemovitosti


Nevyhovuje Vám typ domu? Podívejte se na jiné kategorie domů.


Vybrané články z našeho blogu