Pronájem bytu 3+kk, Staré Město, Hradišťská, 78 m2 (ID: 4141415)

Hradišťská, Staré Město

18 500 Kč /za měsíc Získejte výhodnou HYPOTÉKU
Prémioví partneři v Starém Městu

Informace k bytu

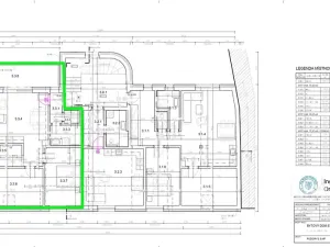
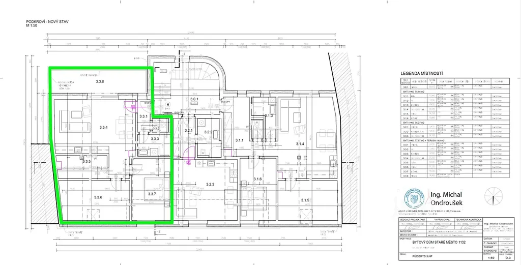
Ve výhradním zastoupení majitele nabízíme k pronájmu moderní byt 3+kk o užitné ploše 77,87 m² s prostornou terasou 14,9 m² v novostavbě bytového domě na ulici Hradišťská ve Starém Městě, okres Uherské Hradiště.
Byt se nachází ve 3. nadzemním podlaží třípodlažního cihlového domu a je navržen jako jednopodlažní.
✅Dispozice nabízí dva neprůchozí pokoje, prostorný obývací pokoj s kuchyňským koutem, velkou šatnu, koupelnu se sprchovým koutem a samostatné WC. Kuchyně je vybavena moderní kuchyňskou linkou s lednicí, myčkou, troubou a indukční varnou deskou.
V bytě je dále instalována klimatizace a podlahové vytápění s plynovým kondenzačním kotlem.
Teplá voda je zajištěna elektrickým bojlerem 100 litrů.
Okna jsou plastová, objekt je zateplený a splňuje energetickou třídu B – velmi úsporná.
✅Významnou předností je terasa orientovaná do klidné části, která poskytuje dostatek prostoru pro relaxaci.
K bytu náleží také jedno venkovní parkovací místo.
K dispozici budete mít veškeré zázemí novostavby s důrazem na pohodlí a moderní technologie.
✅ Financování:
- Měsíční nájemné je ve výši 18.500,- Kč
- Měsíční náklady na služby 2.690,- Kč
- Měsíční náklady na dodávku elektrické energie 1.900,- Kč
- Jistota (kauce) je ve výši jednoho nájmu.
Provizi RK hradí pronajímatel.
Dům je situován na okraji obce v příjemné lokalitě s dobrou dostupností občanské vybavenosti.
Novostavba domu bude kolaudována hned začátkem roku 2026.
✅V těsné blízkosti naleznete supermarket Albert, UNI HOBBY Market a další obchody.
Vlakové nádraží Uherské Hradiště a nemocnice jsou vzdáleny méně než 1,5 km.
Lokalita nabízí rovněž snadný přístup k aquaparku, sportovištím a dalším službám v rámci města.
Majitel si vyhrazuje právo pronajmout svou nemovitost nejvýhodnější nabídce.
Byt bude k nastěhování od 5. ledna 2026.
Pro více informací o této nemovitosti nebo sjednání prohlídky nás prosím kontaktujte

Parametry bytu

Cena
18 500 Kč /za měsíc
Aktualizováno
29. 12. 2025
Adresa
Hradišťská, Staré Město
ID
J12158
Stavba
Cihlová
Stav objektu
Novostavba
Patro
3. z 3
Vybaveno
Ne
Lokalita objektu
Okraj obce
Vlastnictví
Osobní
Užitná plocha
78 m2
Podlahová plocha
78 m2
Třída energetické náročnosti
B - Velmi úsporná
Ukazatel energetické náročnosti
60 kWh/m2 za rok
Odpad
Veřejná kanalizace
Topení
Podlahové
Voda
Vodovod
Topné těleso
Podlahové vytápění
Zdroj topení
Plynový kondenzační kotel
Zdroj teplé vody
Bojler - elektro
Terasa
Výtah
Bezbarierový přístup
Parkování

Kontaktovat makléře

Realitní kancelář

PETR FOJTÍK reality, partner Justo

Masarykovo náměstí 34, Uherské Hradiště

Chystáte se prodat nemovitost?
Pomůžeme Vám!

Máte zájem o tento byt?

Tímto, v souladu s nařízením Evropského parlamentu a Rady (EU) 2016/679, v platném znění, prohlašuji, že mi je alespoň 16 let a uděluji tak svůj souhlas se zpracováním zadaných údajů (jméno, telefon, e-mail, ip adresa) společnosti B3 Technology, s.r.o., IČ: 07330600, se sídlem Novostavby 126/23, 435 11 Lom (správce dat), za účelem předání dotazu z tohoto formuláře Vámi vybranému inzerentovi a zpětného kontaktování mé osoby. Osobní údaje bude správce zpracovávat manuálně i automaticky přímo prostřednictvím svých zaměstnanců. Informace předané tímto formulářem budou uloženy v databázi správce maximálně po dobu 10 let. Odvolání souhlasu s uložením a zpracováním poskytnutých dat lze e-mailem na info@videobydleni.cz. V případě podezření na neoprávněné použití Vámi poskytnutých údajů máte právo předat podnět k šetření Úřadu pro ochranu osobních údajů. Více informací
Chystáte se prodat nemovitost?
Pomůžeme Vám!

Inzerát si prohlédlo 0 lidí

Prodejce

Ing. Petr Fojtík

Ing. Petr Fojtík

Hlídací pes

Chcete dostávat emailem podobné nabídky pronájmu bytů 3+kk v Starém Městu (okr. Uherské Hradiště)?

Podobné nemovitosti


Nevyhovuje Vám typ bytu? Podívejte se na jiné kategorie bytů.


Vybrané články z našeho blogu