Prodej bytu 2+kk, Praha - Žižkov, Biskupcova, 69 m2

Biskupcova, Praha, Žižkov

12 390 000 Kč /za nemovitost HYPOTÉKA od 55 376 Kč /za měsíc
Prémioví partneři v Praze 3

Stěhovací služby

Výkup a prodej starého nábytku

Informace k bytu

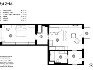
Prostorný moderní byt 2kk s balkonem je součástí projektu revitalizace rohového činžovního domu z počátku 20. století s výstavbou dvou nových horních pater. Dům je zasazen do pulzující původní rezidenční zástavby s veškerou infrastrukturou v okolí a zároveň v přímé blízkosti parků Židovské pece, Vítkov či Parukářka.


Bytovou jednotku tvoří velký obývací pokoj s kuchyní a výstupem na východně orientovaný balkon s výhledem do klidného vnitrobloku. Prostorná ložnice je přístupná přes průchozí šatnu. Koupelna s vanou a toaletou má samostatný vstup ze vstupní haly s přímým osvětlením.


Byt je dokončen ve vysokém standardu. Třívrstvé dubové podlahy, velkoplošná okna s antracitovými plast-hliníkovými rámy, venkovní žaluzie, v koupelnách pak velkoformátové obklady La Futura a sanita prémiových značek Ideal Standard, Kaldewei a Hüppe. Byt je vytápěn plynovým kondenzačním kotlem s užitím podlahového vytápění. K dispozici je klimatizace.  

Dům má novou elegantní fasádu, která sjednocuje prostor původní budovy a novostavby horních pater. Společné prostory prochází renovací. Výtah má výstup přímo v jednotlivých patrech.


Lokalita horního Žižkova nabízí kompletní komfort městského bydlení ve stabilizované rezidenční zástavbě, v přímé blízkosti zeleně s možností relaxace, a přitom s rychlou dostupností do centra města. Rychlé spojení s centrem zajišťují četné tramvajové linky nebo autobus s napojením na stanice metra linek A, B i C.

Parametry bytu

Cena
12 390 000 Kč /za nemovitost Spočítat hypotéku
Aktualizováno
30. 12. 2025
Adresa
Biskupcova, Praha, Žižkov
ID
532944
Stavba
Cihlová
Stav objektu
Novostavba
Patro
7. z 7
Vybaveno
Ne
Vlastnictví
Osobní
Užitná plocha
69 m2
Třída energetické náročnosti
B - Velmi úsporná
Balkon
Sklep
Výtah
Převod do OV

Kontaktovat makléře

Realitní kancelář

LEXXUS, a.s.

Na Poříčí 2090/2, Praha, Nové Město

Chystáte se prodat nemovitost?
Pomůžeme Vám!

Máte zájem o tento byt?

Tímto, v souladu s nařízením Evropského parlamentu a Rady (EU) 2016/679, v platném znění, prohlašuji, že mi je alespoň 16 let a uděluji tak svůj souhlas se zpracováním zadaných údajů (jméno, telefon, e-mail, ip adresa) společnosti B3 Technology, s.r.o., IČ: 07330600, se sídlem Novostavby 126/23, 435 11 Lom (správce dat), za účelem předání dotazu z tohoto formuláře Vámi vybranému inzerentovi a zpětného kontaktování mé osoby. Osobní údaje bude správce zpracovávat manuálně i automaticky přímo prostřednictvím svých zaměstnanců. Informace předané tímto formulářem budou uloženy v databázi správce maximálně po dobu 10 let. Odvolání souhlasu s uložením a zpracováním poskytnutých dat lze e-mailem na info@videobydleni.cz. V případě podezření na neoprávněné použití Vámi poskytnutých údajů máte právo předat podnět k šetření Úřadu pro ochranu osobních údajů. Více informací
Chystáte se prodat nemovitost?
Pomůžeme Vám!

Inzerát si prohlédlo 0 lidí

Prodejce

Adéla Bukovská - recepce

Adéla Bukovská - recepce

Hlídací pes

Chcete dostávat emailem podobné nabídky prodeje bytů 2+kk v Praze 3?

Podobné nemovitosti


Nevyhovuje Vám typ bytu? Podívejte se na jiné kategorie bytů.


Vybrané články z našeho blogu