Prodej rodinného domu, Štěchovice, 170 m2 (ID: 4142148)

Štěchovice, Třebenice

15 500 000 Kč /za nemovitost HYPOTÉKA od 69 276 Kč /za měsíc
Prémioví partneři v Štěchovicích

Informace k domu

Prostředí, ve kterém žijeme nás zásadním způsobem ovlivňuje. Panenská příroda, čistý vzduch a dechberoucí panoramatické výhledy v každém ročním období. Pokud hledáte bydlení s těmito parametry, neváhejte a domluvte si prohlídku této unikátní nemovitosti.

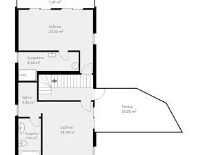
Novostavba rodinného domu o dispozici 5+kk a užitné ploše 170 m² je zasazena na prostorném pozemku o velikosti 1873 m², který jednoznačně splňuje nároky na klidné a moderní bydlení v přírodě. Jižní orientace pozemku zajišťuje dostatek denního světla a zároveň maximální soukromí. Pocit nekonečné dovolené podtrhne bazén o velikosti 3x7 m s panoramatickým výhledem.

V přízemí domu se nachází prostorný obývací pokoj, kuchyň s jídelnou a dvě ložnice s koupelnou a toaletou, všechny tyto prostory mají přímý vstup na rozlehlou terasu. V patře jsou dvě prostorné ložnice, každá s vlastní koupelnou a toaletou a vlastním vstupem na balkon, respektive terasu. Prostory k uskladnění nabízí půda. Technická místnost, prostorná komora a šatna jsou k dispozici ve vstupní části přízemí, rovněž dvě krytá parkovací stání.

V pěší vzdálenosti od přístavu na Slapské přehradě je tato lokalita ideálním místem pro milovníky vodních sportů a relaxace v přírodě.

Zároveň je místo velmi dobře dostupné, v bezprostřední blízkosti domu se nachází autobusová zastávka s přímým spojením na Smíchovské nádraží, které netrvá déle než 45 minut. Automobilem je cesta do centra Prahy zvládnutelná do 30-ti minut.

Dům je připraven k okamžitému nastěhování.
K nemovitosti je možné dokoupit sousední stavební pozemek o velikosti 2057m2.
V případě zájmu se prosím na mě neváhejte obrátit.

Parametry domu

Cena
15 500 000 Kč /za nemovitost Spočítat hypotéku
Aktualizováno
30. 12. 2025
Adresa
Štěchovice, Třebenice
ID
0258-NP01084
Stavba
Cihlová
Stav objektu
Novostavba
Vybaveno
Částečně
Druh objektu
Samostatný
Lokalita objektu
Klidná část obce
Užitná plocha
170 m2
Zastavěná plocha
159 m2
Podlahová plocha
170 m2
Plocha pozemku
1873 m2
Plocha zahrady
1714 m2
Třída energetické náročnosti
G - Mimořádně nehospodárná
Elektřina
230V
Odpad
Veřejná kanalizace
Komunikace
Asfaltová
Telekomunikace
Internet, Kabelová televize
Doprava
Vlak, Dálnice, Silnice, MHD, Autobus
Voda
Vodovod
Topné těleso
Podlahové vytápění, Radiátory, Krb
Zdroj topení
Elektrokotel
Zdroj teplé vody
Bojler - elektro
Garáž
Bazén

Kontaktovat makléře

Realitní kancelář

RE/MAX Miramar

Bělohorská 1397/36, Praha, Břevnov

Chystáte se prodat nemovitost?
Pomůžeme Vám!

Máte zájem o tento dům?

Tímto, v souladu s nařízením Evropského parlamentu a Rady (EU) 2016/679, v platném znění, prohlašuji, že mi je alespoň 16 let a uděluji tak svůj souhlas se zpracováním zadaných údajů (jméno, telefon, e-mail, ip adresa) společnosti B3 Technology, s.r.o., IČ: 07330600, se sídlem Novostavby 126/23, 435 11 Lom (správce dat), za účelem předání dotazu z tohoto formuláře Vámi vybranému inzerentovi a zpětného kontaktování mé osoby. Osobní údaje bude správce zpracovávat manuálně i automaticky přímo prostřednictvím svých zaměstnanců. Informace předané tímto formulářem budou uloženy v databázi správce maximálně po dobu 10 let. Odvolání souhlasu s uložením a zpracováním poskytnutých dat lze e-mailem na info@videobydleni.cz. V případě podezření na neoprávněné použití Vámi poskytnutých údajů máte právo předat podnět k šetření Úřadu pro ochranu osobních údajů. Více informací
Chystáte se prodat nemovitost?
Pomůžeme Vám!

Inzerát si prohlédlo 0 lidí

Prodejce

Lukáš Janout

Lukáš Janout

Hlídací pes

Chcete dostávat emailem podobné nabídky prodeje rodinných domů v Štěchovicích (okr. Praha-západ)?

Podobné nemovitosti


Nevyhovuje Vám typ domu? Podívejte se na jiné kategorie domů.


Vybrané články z našeho blogu