Prodej rodinného domu, Ostrava - Slezská Ostrava, Na Hlásce, 180 m2 (ID: 4142174)

Na Hlásce, Slezská Ostrava

4 480 000 Kč /za nemovitost HYPOTÉKA od 20 023 Kč /za měsíc
Prémioví partneři v Ostravě

Informace k domu

Prodej rodinného domu, 180 m², Ostrava, ul. Na Hlásce

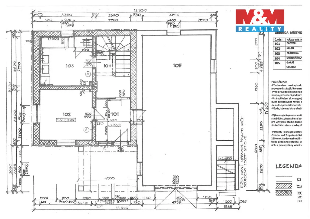
Exkluzivně nabízíme k prodeji rodinný dům o celkové podlahové ploše 180 m2, v klidném prostředí plném zeleně v ulici Na Hlásce, ve Slezské Ostravě. Jedná se o hrubou stavbu rekonstruovaného původního domu s číslem popisným a k němu nově postavenou druhou část, přičemž obě poloviny o celkové zastavěné ploše 118 m2 jsou sjednoceny železobetonovým věncem a novými krovy se střechou. Na pozemku o celkové velikosti 837m2, se nachází i samostatná stavba garáže s dílnou, zapsaná v katastru, o podlahové ploše téměř 40 m2. Výhodou je výborná dostupnost do centra Ostravy.

Parametry domu

Cena
4 480 000 Kč /za nemovitost Spočítat hypotéku
Aktualizováno
30. 12. 2025
Adresa
Na Hlásce, Slezská Ostrava
ID
928148
Stavba
Cihlová
Stav objektu
Ve výstavbě
Vybaveno
Ne
Druh objektu
Samostatný
Lokalita objektu
Klidná část obce
Vlastnictví
Osobní
Užitná plocha
180 m2
Plocha pozemku
837 m2

Kontaktovat makléře

Realitní kancelář

Logo M&M reality

M&M reality

ulice Krakovská 583/9, Praha

Chystáte se prodat nemovitost?
Pomůžeme Vám!

Máte zájem o tento dům?

Tímto, v souladu s nařízením Evropského parlamentu a Rady (EU) 2016/679, v platném znění, prohlašuji, že mi je alespoň 16 let a uděluji tak svůj souhlas se zpracováním zadaných údajů (jméno, telefon, e-mail, ip adresa) společnosti B3 Technology, s.r.o., IČ: 07330600, se sídlem Novostavby 126/23, 435 11 Lom (správce dat), za účelem předání dotazu z tohoto formuláře Vámi vybranému inzerentovi a zpětného kontaktování mé osoby. Osobní údaje bude správce zpracovávat manuálně i automaticky přímo prostřednictvím svých zaměstnanců. Informace předané tímto formulářem budou uloženy v databázi správce maximálně po dobu 10 let. Odvolání souhlasu s uložením a zpracováním poskytnutých dat lze e-mailem na info@videobydleni.cz. V případě podezření na neoprávněné použití Vámi poskytnutých údajů máte právo předat podnět k šetření Úřadu pro ochranu osobních údajů. Více informací
Chystáte se prodat nemovitost?
Pomůžeme Vám!

Inzerát si prohlédlo 0 lidí

Prodejce

Lukáš Maderský

Lukáš Maderský

Hlídací pes

Chcete dostávat emailem podobné nabídky prodeje rodinných domů v Ostravě?

Podobné nemovitosti


Nevyhovuje Vám typ domu? Podívejte se na jiné kategorie domů.


Vybrané články z našeho blogu