Prodej bytu 1+kk, Ivančice, Kounická, 30 m2 (ID: 4142493)

Kounická, Ivančice

Rezervováno
3 995 000 Kč /za nemovitost HYPOTÉKA od 17 855 Kč /za měsíc

(včetně DPH, včetně provize, včetně právního servisu)

Prémioví partneři v Ivančicích

Informace k bytu

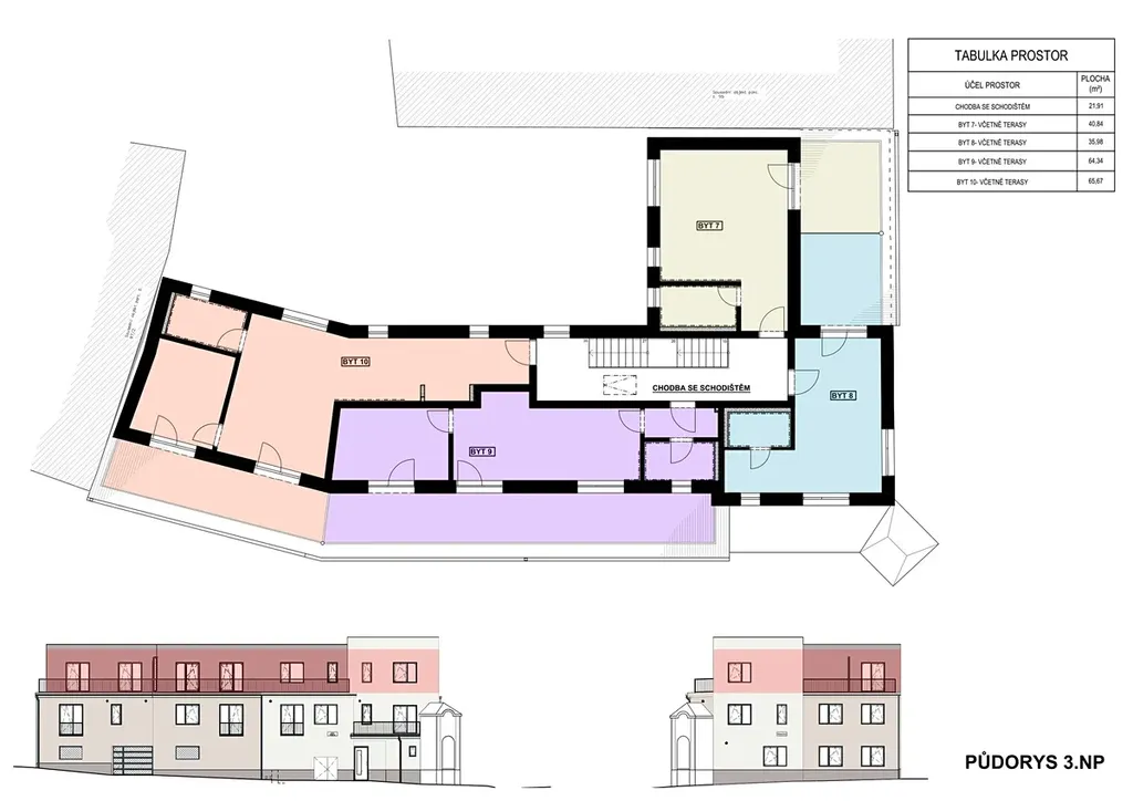
Nabízíme k prodeji moderní byt 1+kk s prostornou terasou v novostavbě bytového domu o 10 jednotkách v bezprostředním centru města Ivančic, na nároží ulic Kounická a Jana Fibicha.
Bytová jednotka o dispozici 1+kk a podlahové ploše 30,84 m² se nachází ve 3. nadzemním podlaží nízkoenergetického bytového domu situovaného v klidné části města Ivančice. Součástí bytu je prostorná terasa o výměře 10,00 m², která nabízí příjemné místo pro relaxaci či posezení.

Dispozice bytu:
– hala: 3,24 m²
– koupelna: 4,42 m²
– obývací pokoj s kuchyňským koutem: 23,18 m²
– terasa: 10,00 m²

Byt je ideální volbou pro jednotlivce, mladý pár nebo jako investiční příležitost. Nachází se v novostavbě bytového domu o pouhých 10 jednotkách, což zajišťuje klidné a příjemné bydlení s dostatkem soukromí.

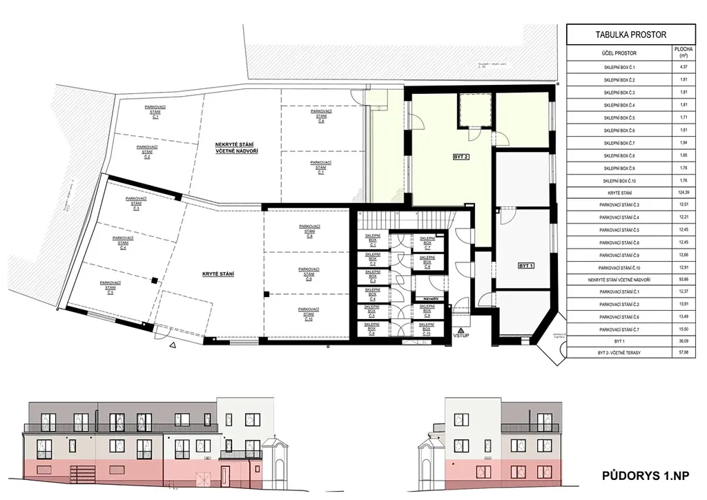
K bytu náleží sklepní kóje (cca 1,8 m²) a nekryté parkovací stání, které zajišťuje komfortní a bezpečné parkování po celý rok. Dům je situován v lokalitě s výbornou občanskou vybaveností – v docházkové vzdálenosti jsou obchody, zastávka MHD, škola, zdravotní středisko i sportovní vyžití.

Vybavení bytu:
– kvalitní vinylové podlahy a dlažba
– příprava na kuchyňskou linku
– plastová okna s izolačními trojskly
– předokenní žaluzie u oken orientovaných do ulice (jižní/západní strana)
– moderní sanitární vybavení

Bytový dům je aktuálně ve výstavbě. Hrubá stavba dokončena, probíhá realizace omítek. Probíhá realizace vnitřních řemesel. Předpokládané dokončení a možnost nastěhování: leden 2026.

Pro více informací, půdorysy nebo sjednání prohlídky nás neváhejte kontaktovat.
Prodej přímo od investora – neplatíte provizi.

Parametry bytu

Stav
Rezervováno
Cena
3 995 000 Kč /za nemovitost Spočítat hypotéku
Poznámka k ceně
včetně DPH, včetně provize, včetně právního servisu
Aktualizováno
15. 2. 2026
Adresa
Kounická, Ivančice
ID
10266
Stavba
Cihlová
Stav objektu
Ve výstavbě
Patro
3. z 3
Vybaveno
Ne
Lokalita objektu
Centrum obce
Vlastnictví
Osobní
Užitná plocha
30 m2
Třída energetické náročnosti
B - Velmi úsporná
Ukazatel energetické náročnosti
118 kWh/m2 za rok
Sklep
Terasa
Výtah
Bezbarierový přístup
Parkování

Kontaktovat makléře

Máte zájem o tento byt?

Tímto, v souladu s nařízením Evropského parlamentu a Rady (EU) 2016/679, v platném znění, prohlašuji, že mi je alespoň 16 let a uděluji tak svůj souhlas se zpracováním zadaných údajů (jméno, telefon, e-mail, ip adresa) společnosti B3 Technology, s.r.o., IČ: 07330600, se sídlem Novostavby 126/23, 435 11 Lom (správce dat), za účelem předání dotazu z tohoto formuláře Vámi vybranému inzerentovi a zpětného kontaktování mé osoby. Osobní údaje bude správce zpracovávat manuálně i automaticky přímo prostřednictvím svých zaměstnanců. Informace předané tímto formulářem budou uloženy v databázi správce maximálně po dobu 10 let. Odvolání souhlasu s uložením a zpracováním poskytnutých dat lze e-mailem na info@videobydleni.cz. V případě podezření na neoprávněné použití Vámi poskytnutých údajů máte právo předat podnět k šetření Úřadu pro ochranu osobních údajů. Více informací
Chystáte se prodat nemovitost?
Pomůžeme Vám!

Inzerát si prohlédlo 14 lidí

Prodejce

Bc. Lucie Hajdová, MBA. DiS.

Bc. Lucie Hajdová, MBA. DiS.

Hlídací pes

Chcete dostávat emailem podobné nabídky prodeje bytů 1+kk v Ivančicích?

Podobné nemovitosti


Nevyhovuje Vám typ bytu? Podívejte se na jiné kategorie bytů.


Vybrané články z našeho blogu