Prodej bytu 1+kk, Brno, Bratislavská, 38 m2 (ID: 4142595)

Bratislavská, Brno, Zábrdovice

Cena na vyžádání /za nemovitost Získejte výhodnou HYPOTÉKU

(info v RK, Neplatíte provizi.)

Prémioví partneři v Brně

Informace k bytu

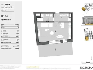
Bytová jednotka O.1.03 - IHNED k nastěhování.

Nabízíme k prodeji moderně navržené jednotky 1+kk o celkové ploše 37,9 m2 s předzahrádkou o velikosti 22 m2. Dispozičně jsou jednotky řešeny obývacím pokojem s kuchyňským koutem, koupelnou se sociálním zařízením a předsíní.

Jako první v Česku přinášíme koncept klubového bydlení se širokou nabídkou služeb dostupných exkluzivně pro rezidenty (například wellness, fitness, recepci se službou concierge, grill pointy, workout zónu, dobíjecí stanice pro elektromobily, kola a další).

V komplexu rezidence Pekárenský dvůr si vybíráte z bytů a apartmánů o dispozicích 1+kk, 2+kk, 3+kk, 4+kk, které z většiny disponují balkonem, terasou, předzahrádkou anebo kombinovaně. Téměř ke všem bytům a apartmánům náleží sklep na uložení potřebných věcí (za povinný příplatek). K jednotkám si můžete navíc přikoupit i prostorné parkovací stání umístěné ve dvoupodlažních podzemních garážích.

Pekárenský dvůr představuje rozsáhlý bytový komplex s vlastním klidným vnitroblokem, který nabízí stylové komfortní bydlení v souladu s aktuálními světovými trendy. Architektura domů klade důraz na maximální prosvětlení interiérů, pracuje s vysoce kvalitními a nadčasovými materiály a zároveň odkazuje k industriální minulosti lokality. Skvělé bydlení, v dynamicky se rozvíjející čtvrti brněnských Zábrdovic, podtrhuje docházková vzdálenost historického centra města, výborná dopravní obslužnost, kompletní občanská vybavenost i blízkost oblíbených brněnských parků.

Pro více informací o tomto výjimečném projektu nás neváhejte kontaktovat.

Parametry bytu

Cena
Cena na vyžádání Spočítat hypotéku
Poznámka k ceně
info v RK, Neplatíte provizi.
Aktualizováno
31. 12. 2025
Adresa
Bratislavská, Brno, Zábrdovice
ID
00059
Stavba
Cihlová
Stav objektu
Novostavba
Patro
1. z 7
Lokalita objektu
Centrum obce
Vlastnictví
Osobní
Užitná plocha
38 m2
Podlahová plocha
61 m2
Třída energetické náročnosti
B - Velmi úsporná
Ukazatel energetické náročnosti
62 kWh/m2 za rok
Elektřina
230V
Odpad
Veřejná kanalizace
Komunikace
Asfaltová
Telekomunikace
Telefon, Internet, Kabelové rozvody
Doprava
Silnice, MHD
Voda
Vodovod
Sklep
Výtah
Bezbarierový přístup
Parkování

Kontaktovat makléře

Máte zájem o tento byt?

Tímto, v souladu s nařízením Evropského parlamentu a Rady (EU) 2016/679, v platném znění, prohlašuji, že mi je alespoň 16 let a uděluji tak svůj souhlas se zpracováním zadaných údajů (jméno, telefon, e-mail, ip adresa) společnosti B3 Technology, s.r.o., IČ: 07330600, se sídlem Novostavby 126/23, 435 11 Lom (správce dat), za účelem předání dotazu z tohoto formuláře Vámi vybranému inzerentovi a zpětného kontaktování mé osoby. Osobní údaje bude správce zpracovávat manuálně i automaticky přímo prostřednictvím svých zaměstnanců. Informace předané tímto formulářem budou uloženy v databázi správce maximálně po dobu 10 let. Odvolání souhlasu s uložením a zpracováním poskytnutých dat lze e-mailem na info@videobydleni.cz. V případě podezření na neoprávněné použití Vámi poskytnutých údajů máte právo předat podnět k šetření Úřadu pro ochranu osobních údajů. Více informací
Chystáte se prodat nemovitost?
Pomůžeme Vám!

Inzerát si prohlédlo 0 lidí

Prodejce

Eva Vavříková

Eva Vavříková

Hlídací pes

Chcete dostávat emailem podobné nabídky prodeje bytů 1+kk v Brně?

Podobné nemovitosti


Nevyhovuje Vám typ bytu? Podívejte se na jiné kategorie bytů.


Vybrané články z našeho blogu