Pronájem rodinného domu, Blešno, 115 m2 (ID: 4144914)

Blešno

27 500 Kč /za měsíc Získejte výhodnou HYPOTÉKU

(+ zálohy na energie cca 3.000,- Kč)

Prémioví partneři v Blešnu

Informace k domu

Novostavba RD v oblíbené lokalitě u Hradce Králové

Zprostředkuji Vám dlouhodobý pronájem rodinného domu v obci Blešno, nedaleko Hradce Králové.
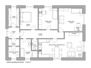
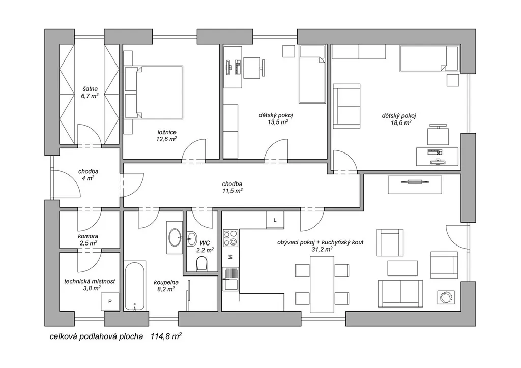
Jedná se o přízemní novostavbu 4+kk se zastavěnou plochou 145 m² a velkorysou užitnou plochou 115 m².
Je v energetické třídě B a nachází se v klidné ulici. Nabízí komfortní podlahové topení napojené na tepelné čerpadlo, a aktuálně jsou zde velmi nízké provozní náklady. Dům je po prvních nájemcích, v perfektním stavu.
Je zde nová kuchyňská linka s vestavěnými spotřebiči (kromě myčky nádobí), a prostorná americká lednice.
K příjemnému letnímu posezení na zahradě poslouží zastřešená pergola se zahradním nábytkem.
K maximálnímu komfortu nájemcům přispěje i dvougaráž, která se svou rozlohou cca 46 m² nabízí dostatek úložného prostoru i na zahradní náčiní.
Zahrada je již kompletně dokončena s výsadbou a připravena k užívání (není aktuální foto).
Veškeré služby jsou pouhých několik minut autem. Přímo v obci se nachází obchod s potravinami, a nejbližší mateřinka je také v obci. Základní škola se nachází v nedaleké Malšove Lhotě nebo v Hradci Králové.
Nejbližší obchodní centrum Orlice park je vzdálené pouhých 5 km.
MHD je dostupné jen pár minut pěší chůze.
Cena měsíčního nájmu 27.500,- Kč + zálohy na vodu dle počtu osob. Převod elektřiny na nájemce.
Poplatek za zprostředkování nájmu a rezervaci ve výši jednoho nájmu. Vratná kauce ve výši 40.000,- Kč.
Dům bude volný od března 2026.
Pokud toužíte po komfortním a klidném bydlení v rodinném domě u Hradce Králové, neváhejte se mi ozvat.
Ráda Vás touto hezkou nemovitostí provedu osobně.

Parametry domu

Cena
27 500 Kč /za měsíc
Poznámka k ceně
+ zálohy na energie cca 3.000,- Kč
Aktualizováno
7. 1. 2026
Adresa
Blešno
ID
N660
Stavba
Cihlová
Stav objektu
Novostavba
Druh objektu
Samostatný
Lokalita objektu
Klidná část obce
Užitná plocha
115 m2
Zastavěná plocha
145 m2
Plocha pozemku
800 m2
Třída energetické náročnosti
B - Velmi úsporná

Kontaktovat makléře

Realitní kancelář

Trigramreality s.r.o.

Milady Horákové 1738/7, Hradec Králové

Chystáte se prodat nemovitost?
Pomůžeme Vám!

Máte zájem o tento dům?

Tímto, v souladu s nařízením Evropského parlamentu a Rady (EU) 2016/679, v platném znění, prohlašuji, že mi je alespoň 16 let a uděluji tak svůj souhlas se zpracováním zadaných údajů (jméno, telefon, e-mail, ip adresa) společnosti B3 Technology, s.r.o., IČ: 07330600, se sídlem Novostavby 126/23, 435 11 Lom (správce dat), za účelem předání dotazu z tohoto formuláře Vámi vybranému inzerentovi a zpětného kontaktování mé osoby. Osobní údaje bude správce zpracovávat manuálně i automaticky přímo prostřednictvím svých zaměstnanců. Informace předané tímto formulářem budou uloženy v databázi správce maximálně po dobu 10 let. Odvolání souhlasu s uložením a zpracováním poskytnutých dat lze e-mailem na info@videobydleni.cz. V případě podezření na neoprávněné použití Vámi poskytnutých údajů máte právo předat podnět k šetření Úřadu pro ochranu osobních údajů. Více informací
Chystáte se prodat nemovitost?
Pomůžeme Vám!

Inzerát si prohlédlo 20 lidí

Prodejce

Helena Peřinová, MBA

Helena Peřinová, MBA

Hlídací pes

Chcete dostávat emailem podobné nabídky pronájmu rodinných domů v Blešnu?

Podobné nemovitosti


Nevyhovuje Vám typ domu? Podívejte se na jiné kategorie domů.


Vybrané články z našeho blogu