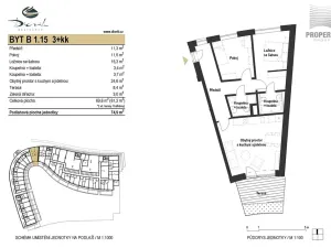
Prodej bytu 3+kk, Brno, Bystrcká, 75 m2 (ID: 4145249)

Bystrcká, Brno, Komín

10 695 600 Kč /za nemovitost HYPOTÉKA od 47 803 Kč /za měsíc

(Cena je vč. 2 x skladovací kóje, garážového stání a provize!, včetně DPH, včetně poplatků, včetně provize, včetně právního servisu)

Prémioví partneři v Brně

Informace k bytu

Nově v nabídce!
Dovolujeme si vám nabídnout v tomto nízkoenergetickém bytovém domě ke koupi bytovou jednotku 3+kk, s terasou 8,4 m2 + zelená část 3 m2. Bytová jednotka se nachází v 1. NP o velikosti 74,8 m2. Cena je uvedena včetně parkovacího stání, skladové kóje 9,4 m2 umístěné za parkovacím stáním + další kóje 3 m2 na patře.
Jedná se o naprosto unikátní, technologicky výjimečné bydlení v Brně v prostředí přírody. Rezidence Diorit je synonymem pro zdravé a chytré bydlení. Unikátní stavba navržena architekty ze studia DRNH vyrostla v atraktivní a žádané městské části Brno-Komín.
V rezidenci je vyhrazena místnost pro kočárky a kola, příchozí okouzlí vlastní park pro rezidenty. Kromě architektury byl kladen velký důraz na zdravé bydlení v kombinaci s chytrou domácností. Čistý vzduch po celý den představuje základní aspekt této unikátní rezidence, a to díky rekuperační jednotce, která je zahrnuta ve standardu každého bytu. Tuto jednotku a podlahové vytápění bude možné ovládat přes inteligentní domácnost od společnosti Loxone. Využíváme technologii tepelných čerpadel země – voda se soustavou 30 geotermálních vrtů hloubky 150 m, která zajistí ohřev vody, teplo a chlazení. Především ale sníží náklady na provoz budovy a závislost na primárních zdrojích tepla. Všechny střechy jsou navíc pokryté zelení - tzv. extenzivní vegetací.

V neposlední řadě je třeba uvést, že v těsné blízkosti se nachází veškerá občanská vybavenost (škola, zdravotnické zařízení, obchody, čerpací stanice a MHD).

Zaujala Vás možnost luxusního bydlení v lukrativní části města Brna v blízkosti přírody i města? Zodpovíme Vám veškeré Vaše dotazy a dodáme kompletní informace o tomto skutečně zdařilém projektu. Kontaktujte nás pro více informací, velmi rádi Vám je poskytneme.

Parametry bytu

Cena
10 695 600 Kč /za nemovitost Spočítat hypotéku
Poznámka k ceně
Cena je vč. 2 x skladovací kóje, garážového stání a provize!, včetně DPH, včetně poplatků, včetně provize, včetně právního servisu
Aktualizováno
7. 1. 2026
Adresa
Bystrcká, Brno, Komín
ID
03712
Stavba
Cihlová
Stav objektu
Novostavba
Patro
1. z 7
Vlastnictví
Osobní
Užitná plocha
75 m2
Třída energetické náročnosti
A - Mimořádně úsporná
Ukazatel energetické náročnosti
50 kWh/m2 za rok
Elektřina
230V
Odpad
Veřejná kanalizace
Komunikace
Asfaltová
Telekomunikace
Telefon, Internet, Kabelová televize, Kabelové rozvody
Doprava
Silnice, MHD, Autobus
Voda
Vodovod
Sklep
Terasa
Výtah
Bezbarierový přístup
Parkování

Kontaktovat makléře

Realitní kancelář

PROPERIA GROUP, s.r.o.

Máchova 1301/2, Brno, Královo Pole

Chystáte se prodat nemovitost?
Pomůžeme Vám!

Máte zájem o tento byt?

Tímto, v souladu s nařízením Evropského parlamentu a Rady (EU) 2016/679, v platném znění, prohlašuji, že mi je alespoň 16 let a uděluji tak svůj souhlas se zpracováním zadaných údajů (jméno, telefon, e-mail, ip adresa) společnosti B3 Technology, s.r.o., IČ: 07330600, se sídlem Novostavby 126/23, 435 11 Lom (správce dat), za účelem předání dotazu z tohoto formuláře Vámi vybranému inzerentovi a zpětného kontaktování mé osoby. Osobní údaje bude správce zpracovávat manuálně i automaticky přímo prostřednictvím svých zaměstnanců. Informace předané tímto formulářem budou uloženy v databázi správce maximálně po dobu 10 let. Odvolání souhlasu s uložením a zpracováním poskytnutých dat lze e-mailem na info@videobydleni.cz. V případě podezření na neoprávněné použití Vámi poskytnutých údajů máte právo předat podnět k šetření Úřadu pro ochranu osobních údajů. Více informací
Chystáte se prodat nemovitost?
Pomůžeme Vám!

Inzerát si prohlédlo 5 lidí

Prodejce

Ondřej Kressa

Ondřej Kressa

Hlídací pes

Chcete dostávat emailem podobné nabídky prodeje bytů 3+kk v Brně?

Podobné nemovitosti


Nevyhovuje Vám typ bytu? Podívejte se na jiné kategorie bytů.


Vybrané články z našeho blogu