Pronájem kanceláře, Praha - Smíchov, Štefánikova, 70 m2 (ID: 4145280)

Štefánikova, Praha, Smíchov

26 573 Kč /za měsíc Získejte výhodnou HYPOTÉKU

(Poplatky za služby a energie se hradí zvlášť.)

Prémioví partneři v Praze 5

Stěhovací služby

Výkup a prodej starého nábytku

Informace k nemovitosti

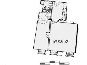
Reprezentativní kancelářské prostory 2+kk, o celkové rozloze 69,93 m2, situované ve 2.NP dobře udržované budovy s výtahem a recepcí, se nachází v oblíbené lokalitě na Praze 5 Smíchov, v ulici Štefánikova. Prostory jsou po kompletní rekonstrukci a dispozičně nabízí vstupní halu, kuchyňku, 2 průchozí kanceláře, koupelnu a samostatnou toaletu.

Dům se nachází v blízkosti řeky Vltavy, v oblíbené lokalitě s veškerou občanskou vybaveností v pěší dostupnosti (nákupní centrum Anděl, různé obchody a široký výběr restaurací, kaváren, bister, obchodů s lahůdkami: italské, francouzské, anglické a další) a okolí historické částí Malá Strana, Kampa, atd. Pár minut chůze se nachází park Zahrady Kinských, který je propojen s parkem Petřín, Petřínskou rozhlednou, Hvězdárnou Štefánika atd. Lokalita nabízí skvělou dostupnost MHD: stanice metra Anděl (trasa B) nebo tramvaje Arbesovo náměstí.

Poplatky 100 Kč/m2/měs. + elektřina. Vratná kauce 2 nájmy. Provize RK. Možnost pronájmu parkovacího stání za poplatek 4500, Kč + DPH 21%/měs..
pozn.: použité jsou fotky podobné kanceláře, plán odpovídá prostoru.

Parametry nemovitosti

Cena
26 573 Kč /za měsíc
Poznámka k ceně
Poplatky za služby a energie se hradí zvlášť.
Aktualizováno
8. 1. 2026
Adresa
Štefánikova, Praha, Smíchov
ID
970296
Stavba
Smíšená
Stav objektu
Velmi dobrý
Patro
2.
Užitná plocha
70 m2
Podlahová plocha
69 m2
Třída energetické náročnosti
G - Mimořádně nehospodárná
Plyn
Plynovod
Doprava
Silnice, MHD
Voda
Vodovod
Garáž
Výtah

Kontaktovat makléře

Realitní kancelář

Metropolitan Estates, s.r.o.

Vinohradská 939/39, Praha, Vinohrady

Chystáte se prodat nemovitost?
Pomůžeme Vám!

Máte zájem o tuto nemovistost?

Tímto, v souladu s nařízením Evropského parlamentu a Rady (EU) 2016/679, v platném znění, prohlašuji, že mi je alespoň 16 let a uděluji tak svůj souhlas se zpracováním zadaných údajů (jméno, telefon, e-mail, ip adresa) společnosti B3 Technology, s.r.o., IČ: 07330600, se sídlem Novostavby 126/23, 435 11 Lom (správce dat), za účelem předání dotazu z tohoto formuláře Vámi vybranému inzerentovi a zpětného kontaktování mé osoby. Osobní údaje bude správce zpracovávat manuálně i automaticky přímo prostřednictvím svých zaměstnanců. Informace předané tímto formulářem budou uloženy v databázi správce maximálně po dobu 10 let. Odvolání souhlasu s uložením a zpracováním poskytnutých dat lze e-mailem na info@videobydleni.cz. V případě podezření na neoprávněné použití Vámi poskytnutých údajů máte právo předat podnět k šetření Úřadu pro ochranu osobních údajů. Více informací
Chystáte se prodat nemovitost?
Pomůžeme Vám!

Inzerát si prohlédlo 0 lidí

Prodejce

Eva Cinculová

Eva Cinculová

Hlídací pes

Chcete dostávat emailem podobné nabídky pronájmu kanceláří v Praze 5?

Podobné nemovitosti


Nevyhovuje Vám typ nemovitosti? Podívejte se na jiné kategorie komerčních.


Vybrané články z našeho blogu