Prodej rodinného domu, Bohumín, 105 m2 (ID: 4145393)

Bohumín, Záblatí

6 950 000 Kč /za nemovitost HYPOTÉKA od 31 062 Kč /za měsíc
Prémioví partneři v Bohumíně

Informace k domu

Ve výhradním zastoupení majitele Vám nabízíme prodej zkolaudované novostavby rodinného domu o dispozici 4+kk na pomezí Záblatí a Rychvladu.
Jedná se o nízkoenergetickou novostavbu typu bungalov.

Stavba z porobetonových tvárnic s kontaktním zateplením, stropní konsrukce a krov dřevo, střešní krytina poplastovaný plech. Plastová okna s izolačním trojsklem, ohřev vody je řešen bojlerem s tepelným čerpadlem, podlahové vytápění.

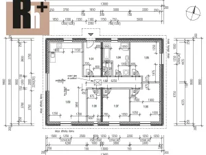
Dispozice: zádveří, chodba, prostorný propojený obývací pokoj s kuchyní a jídelnou se vstupem na terasu. Z protější strany ložnice a dva pokoje, které jsou dostatečně velké pro spací i hrací zónu, všechny se samostatným vstupem z chodby. Koupelna s vanou i sprchovým koutem, WC zvlášť, technická místnost s přípojkou na pračku a sušičku. Půdní prostor, z toho pochozí 16 m2.

Interiér domu v moderních, jednoduchých a esteticky jemných barvách, kuchyňská linka včetně spotřebičů a velké lednice s mrazákem.

Venkovní úpravy: zatravněná zahrada, chodník kolem celého domu, nezastřešená terasa ze zámkové dlažby, dvě nekrytá parkovací místa před domem, oplocení s bránou a osvětlení.

Nemovitost je napojena na obecní vodovod a kanalizaci.

Příjezd k domu zajištěn spoluvlastnickým podílem na společné komunikaci.

Záblatí je klidnou a příjemnou lokalitou pro pohodlné bydlení v souladu s přírodou a zároveň kousek od centra města. Oceníte také výbornou dopravní dostupnost všemi směry - Ostrava, Rychvald, Orlová.
Nájezd na dálnici cca 7 minut.

Uvedená cena 6.950.000,- Kč je včetně provize RK i právního servisu.
Nízké náklady na bydlení. Vólné ihned.

Ohledně dalších dotazů a domluvení prohlídky nás neváhejte kontaktovat. Těšíme se na vás.
Ev. číslo: 139011

Parametry domu

Cena
6 950 000 Kč /za nemovitost Spočítat hypotéku
Náklady na bydlení
3 000
Aktualizováno
8. 1. 2026
Adresa
Bohumín, Záblatí
ID
139011
Stavba
Cihlová
Stav objektu
Novostavba
Vybaveno
Ne
Druh objektu
Samostatný
Lokalita objektu
Klidná část obce
Užitná plocha
105 m2
Zastavěná plocha
131 m2
Podlahová plocha
105 m2
Plocha pozemku
550 m2
Plocha zahrady
419 m2
Třída energetické náročnosti
B - Velmi úsporná
Elektřina
230V
Odpad
Veřejná kanalizace
Doprava
Silnice
Voda
Vodovod
Topné těleso
Podlahové vytápění
Zdroj topení
Jiné
Zdroj teplé vody
Tepelné čerpadlo
Parkování

Kontaktovat makléře

Realitní kancelář

Reality holding plus

Slavíkova 6142/18d, Ostrava, Poruba

Chystáte se prodat nemovitost?
Pomůžeme Vám!

Máte zájem o tento dům?

Tímto, v souladu s nařízením Evropského parlamentu a Rady (EU) 2016/679, v platném znění, prohlašuji, že mi je alespoň 16 let a uděluji tak svůj souhlas se zpracováním zadaných údajů (jméno, telefon, e-mail, ip adresa) společnosti B3 Technology, s.r.o., IČ: 07330600, se sídlem Novostavby 126/23, 435 11 Lom (správce dat), za účelem předání dotazu z tohoto formuláře Vámi vybranému inzerentovi a zpětného kontaktování mé osoby. Osobní údaje bude správce zpracovávat manuálně i automaticky přímo prostřednictvím svých zaměstnanců. Informace předané tímto formulářem budou uloženy v databázi správce maximálně po dobu 10 let. Odvolání souhlasu s uložením a zpracováním poskytnutých dat lze e-mailem na info@videobydleni.cz. V případě podezření na neoprávněné použití Vámi poskytnutých údajů máte právo předat podnět k šetření Úřadu pro ochranu osobních údajů. Více informací
Chystáte se prodat nemovitost?
Pomůžeme Vám!

Inzerát si prohlédlo 20 lidí

Prodejce

Bc. Eva Hozová

Bc. Eva Hozová

Hlídací pes

Chcete dostávat emailem podobné nabídky prodeje rodinných domů v Bohumíně?

Podobné nemovitosti


Nevyhovuje Vám typ domu? Podívejte se na jiné kategorie domů.


Vybrané články z našeho blogu