Pronájem bytu 2+kk, Brno, Bulharská, 73 m2 (ID: 4145532)

Bulharská, Brno, Královo Pole

18 700 Kč /za měsíc Získejte výhodnou HYPOTÉKU
Prémioví partneři v Brně

Informace k bytu

Nabízíme k dlouhodobému pronájmu prostorný a světlý byt 2+kk o výměře 73 m², který se nachází ve 3. nadzemním podlaží domu ve vyhledávané lokalitě Brno – Královo Pole, ulice Bulharská.
Velkou výhodou je výborná dopravní dostupnost – v blízkosti MHD, vysokých škol i nájezdu na Svitavskou radiálu. Okolí domu je klidné, se zelení.
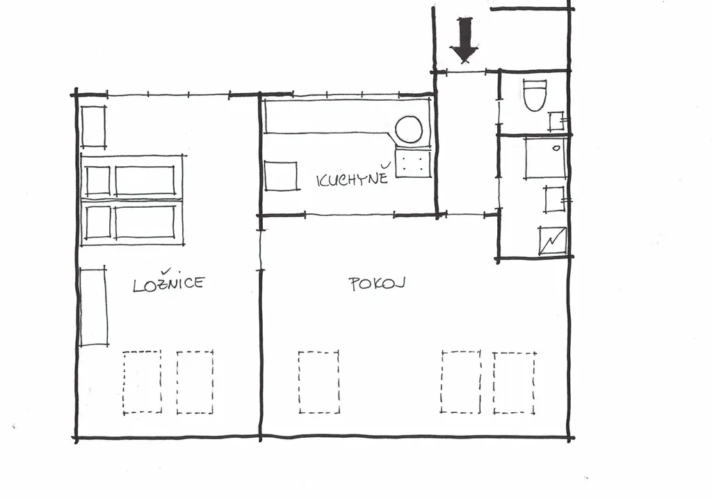
Dispozice bytu:
• obývací pokoj (cca 30 m², průchozí),
• kuchyňský kout (cca 9 m²),
• ložnice (cca 27 m²),
• koupelna,
• samostatné WC,
• předsíň,
• úložný prostor (cca 5 m²).
Okna jsou orientována do klidné zahrady a do ulice Bulharská.
Byt je vybaven kuchyňskou linkou, elektrickou troubou, plynovou varnou deskou a digestoří. Vytápění a ohřev vody zajišťuje vlastní plynový kotel. Po dohodě se stávajícím nájemcem je možné ponechat část nábytku a elektrospotřebičů.
Energie (plyn, elektřina, voda) jsou měřeny samostatnými měřiči a vyúčtovávány dle skutečné spotřeby.
Byt je k nastěhování od 1. 2. 2026. Vhodné pro 2–4 pracující osoby nebo studenty, nekuřáky, bez domácích zvířat.
Finanční podmínky:
• nájemné: 18 700 Kč / měsíc
• zálohy na služby a energie (2 osoby): 3 500 Kč / měsíc
• vratná jistota (kauce): 18 700 Kč
• provize RK: 18 700 Kč
PENB: třída D – dům byl nově zateplen, očekává se lepší energetická úspornost.

Parametry bytu

Cena
18 700 Kč /za měsíc
Aktualizováno
22. 1. 2026
Adresa
Bulharská, Brno, Královo Pole
Stavba
Cihlová
Stav objektu
Velmi dobrý
Patro
3.
Lokalita objektu
Klidná část obce
Vlastnictví
Osobní
Užitná plocha
73 m2
Třída energetické náročnosti
D - Méně úsporná
Plyn
Plynovod
Odpad
Veřejná kanalizace
Komunikace
Asfaltová
Doprava
MHD
Voda
Vodovod
Topné těleso
Radiátory
Zdroj topení
Plynový kotel
Zdroj teplé vody
Plynový kotel

Kontaktovat makléře

Realitní kancelář

Kocian Reality

Botanická 834/56, Brno, Veveří

Chystáte se prodat nemovitost?
Pomůžeme Vám!

Máte zájem o tento byt?

Tímto, v souladu s nařízením Evropského parlamentu a Rady (EU) 2016/679, v platném znění, prohlašuji, že mi je alespoň 16 let a uděluji tak svůj souhlas se zpracováním zadaných údajů (jméno, telefon, e-mail, ip adresa) společnosti B3 Technology, s.r.o., IČ: 07330600, se sídlem Novostavby 126/23, 435 11 Lom (správce dat), za účelem předání dotazu z tohoto formuláře Vámi vybranému inzerentovi a zpětného kontaktování mé osoby. Osobní údaje bude správce zpracovávat manuálně i automaticky přímo prostřednictvím svých zaměstnanců. Informace předané tímto formulářem budou uloženy v databázi správce maximálně po dobu 10 let. Odvolání souhlasu s uložením a zpracováním poskytnutých dat lze e-mailem na info@videobydleni.cz. V případě podezření na neoprávněné použití Vámi poskytnutých údajů máte právo předat podnět k šetření Úřadu pro ochranu osobních údajů. Více informací
Chystáte se prodat nemovitost?
Pomůžeme Vám!

Inzerát si prohlédlo 1 lidí

Prodejce

Ing.Miloš Kocian

Ing.Miloš Kocian

Hlídací pes

Chcete dostávat emailem podobné nabídky pronájmu bytů 2+kk v Brně?

Podobné nemovitosti


Nevyhovuje Vám typ bytu? Podívejte se na jiné kategorie bytů.


Vybrané články z našeho blogu