Pronájem bytu 2+1, Kroměříž, Jiráskova, 56 m2

Jiráskova, Kroměříž

14 600 Kč /za měsíc Získejte výhodnou HYPOTÉKU

(+ zálohy na energie)

Prémioví partneři v Kroměříži

Informace k bytu

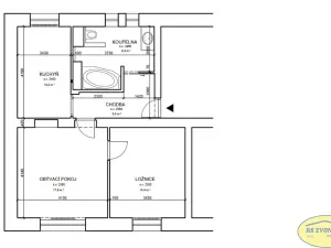
Nabízíme pronájem pěkného bytu o velikosti 2+1 v Kroměříži, ulice Jiráskova. Byt se nachází v prvním patře zděného domu bez výtahu a je po rekonstrukci - nová kuchyňská linka včetně spotřebičů (ledničky, myčky, mikrovlnky, trouby, sporáku), plastová okna (2 skla), zděná koupelna s rohovou vanou a wc. K bytu náleží 2 sklepy v suterénu domu a je zde možnost využívat společnou kolárku a hlavně také zahrádku za domem. Byt bude částečně vybaven (vestavěné skříně v ložnici, skříně v obývacím pokoji, kuchyně včetně všech spotřebičů). Vytápění a ohřev teplé vody zajišťuje vlastní plynový kotel. V ceně nájmu nejsou zálohy na energie ve výši 790,- Kč/měsíc (studená voda pro 2 osoby, společná elektřina na chodbě) + přepis elektřiny a plynu na nájemce. Byt je k nastěhování během února 2026. Majitel vyžaduje vratnou kauci 20.000,- Kč. Vhodné pro pracující rodinu bez domácích mazlíčků. Parkování před domem. Energetický štítek G - nedodán.

Parametry bytu

Cena
14 600 Kč /za měsíc
Poznámka k ceně
+ zálohy na energie
Aktualizováno
9. 1. 2026
Adresa
Jiráskova, Kroměříž
ID
97409
Stavba
Cihlová
Stav objektu
Po rekonstrukci
Patro
2. z 2
Vybaveno
Částečně
Lokalita objektu
Klidná část obce
Vlastnictví
Osobní
Užitná plocha
56 m2
Podlahová plocha
64 m2
Třída energetické náročnosti
G - Mimořádně nehospodárná
Topení
Ústřední plynové
Topné těleso
Radiátory
Zdroj topení
Plynový kotel
Zdroj teplé vody
Plynový kotel
Sklep

Kontaktovat makléře

Máte zájem o tento byt?

Tímto, v souladu s nařízením Evropského parlamentu a Rady (EU) 2016/679, v platném znění, prohlašuji, že mi je alespoň 16 let a uděluji tak svůj souhlas se zpracováním zadaných údajů (jméno, telefon, e-mail, ip adresa) společnosti B3 Technology, s.r.o., IČ: 07330600, se sídlem Novostavby 126/23, 435 11 Lom (správce dat), za účelem předání dotazu z tohoto formuláře Vámi vybranému inzerentovi a zpětného kontaktování mé osoby. Osobní údaje bude správce zpracovávat manuálně i automaticky přímo prostřednictvím svých zaměstnanců. Informace předané tímto formulářem budou uloženy v databázi správce maximálně po dobu 10 let. Odvolání souhlasu s uložením a zpracováním poskytnutých dat lze e-mailem na info@videobydleni.cz. V případě podezření na neoprávněné použití Vámi poskytnutých údajů máte právo předat podnět k šetření Úřadu pro ochranu osobních údajů. Více informací
Chystáte se prodat nemovitost?
Pomůžeme Vám!

Inzerát si prohlédlo 4 lidí

Prodejce

Ing. Dagmar Hanáková

Ing. Dagmar Hanáková

Hlídací pes

Chcete dostávat emailem podobné nabídky pronájmu bytů 2+1 v Kroměříži?

Podobné nemovitosti


Nevyhovuje Vám typ bytu? Podívejte se na jiné kategorie bytů.


Vybrané články z našeho blogu