Pronájem bytu 2+1, Strakonice - Strakonice II, Dukelská, 63 m2

Dukelská, Strakonice II

12 500 Kč /za měsíc Získejte výhodnou HYPOTÉKU

(plus zálohy na energie 4.000,-Kč)

Prémioví partneři v Strakonicích

Výkup a prodej starého nábytku

Informace k bytu

Nabízíme Vám exkluzivně velmi hezký byt v osobním vlastnictví o velikosti 2+1 a výměře 63 m2 v 8. podlaží osmipodlažního revitalizovaného panelového domu s novým výtahem v ulici Dukelská. Byt je po celkové rekonstrukci na které se ještě nyní pracuje. Nová podlahová krytina, kuchyňská linka.

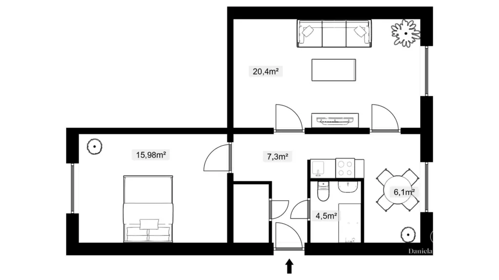
Byt se skládá z vstupní předsíně (3,8 m2), velkého obývacího pokoje (20,4 m2), prostorné ložnice (16 m2), a kuchyně s jídelní částí (16.2 m2), komory (2.11 m2) a koupelny (4,5 m2). Koupelna prošla rekonstrukcí v roce 2020 (zděné jádro, vana a WC dohromady). Dispozice je zřejmá z přiloženého půdorysu. Rozměry jsou uvedeny přibližně.

Měsíční nájem 12.500,-Kč plus záloha na vodu, teplo, elektřina bude přepsána na nového nájemníka.

Jedná se o klidnou žádanou lokalitu s dostatkem parkovacích míst. Do centra se chůzí dostanete do 5 minut a za 3 minuty jste i v nákupním parku. Nedaleko od bytové jednotky se nachází škola i školka. Před domem hřiště a prolézačky pro děti. V blízkém okolí jsou také supermarkety BILLA a LIDL, specializované obchody, restaurace, lékařské ordinace a další občanská vybavenost.

Ve Strakonicích se dále nachází hrad, letní kino, plavecký stadion a pro milovníky sportu i Otavská cyklistická stezka nebo tenisové kurty.

Neváhejte mě kontaktovat ohledně prohlídky. Volné ihned.

Parametry bytu

Cena
12 500 Kč /za měsíc
Poznámka k ceně
plus zálohy na energie 4.000,-Kč
Aktualizováno
6. 1. 2026
Adresa
Dukelská, Strakonice II
ID
N00025
Stavba
Panelová
Stav objektu
Velmi dobrý
Patro
8. z 8
Vlastnictví
Osobní
Užitná plocha
63 m2
Podlahová plocha
63 m2
Třída energetické náročnosti
G - Mimořádně nehospodárná
Doprava
MHD

Kontaktovat makléře

Máte zájem o tento byt?

Tímto, v souladu s nařízením Evropského parlamentu a Rady (EU) 2016/679, v platném znění, prohlašuji, že mi je alespoň 16 let a uděluji tak svůj souhlas se zpracováním zadaných údajů (jméno, telefon, e-mail, ip adresa) společnosti B3 Technology, s.r.o., IČ: 07330600, se sídlem Novostavby 126/23, 435 11 Lom (správce dat), za účelem předání dotazu z tohoto formuláře Vámi vybranému inzerentovi a zpětného kontaktování mé osoby. Osobní údaje bude správce zpracovávat manuálně i automaticky přímo prostřednictvím svých zaměstnanců. Informace předané tímto formulářem budou uloženy v databázi správce maximálně po dobu 10 let. Odvolání souhlasu s uložením a zpracováním poskytnutých dat lze e-mailem na info@videobydleni.cz. V případě podezření na neoprávněné použití Vámi poskytnutých údajů máte právo předat podnět k šetření Úřadu pro ochranu osobních údajů. Více informací
Chystáte se prodat nemovitost?
Pomůžeme Vám!

Inzerát si prohlédlo 3 lidí

Prodejce

Daniela Zelenková

Daniela Zelenková

Hlídací pes

Chcete dostávat emailem podobné nabídky pronájmu bytů 2+1 v Strakonicích?

Podobné nemovitosti


Nevyhovuje Vám typ bytu? Podívejte se na jiné kategorie bytů.


Vybrané články z našeho blogu