Prodej ubytování, Rokytnice nad Jizerou, 421 m2

Rokytnice nad Jizerou, okres semily

10 580 000 Kč /za nemovitost HYPOTÉKA od 47 286 Kč /za měsíc
Prémioví partneři v Rokytnici nad Jizerou

Rekonstrukce

Úklidové služby

Informace k nemovitosti

Prodej stavebního pozemku s projektem penzionu „Chalet Emma“ – Rokytnice nad Jizerou.

Nabízíme stavební pozemek s kompletním projektem rodinného penzionu „Chalet Emma“ v atraktivní horské lokalitě Rokytnice nad Jizerou. Projekt je připraven ve stavu před vydáním stavebního povolení, což umožňuje rychlý start investice. V Rokytnici se plánují velké investice a vy můžete mít již nyní projekt, který je připraven k realizaci.

Základní informace o projektu:
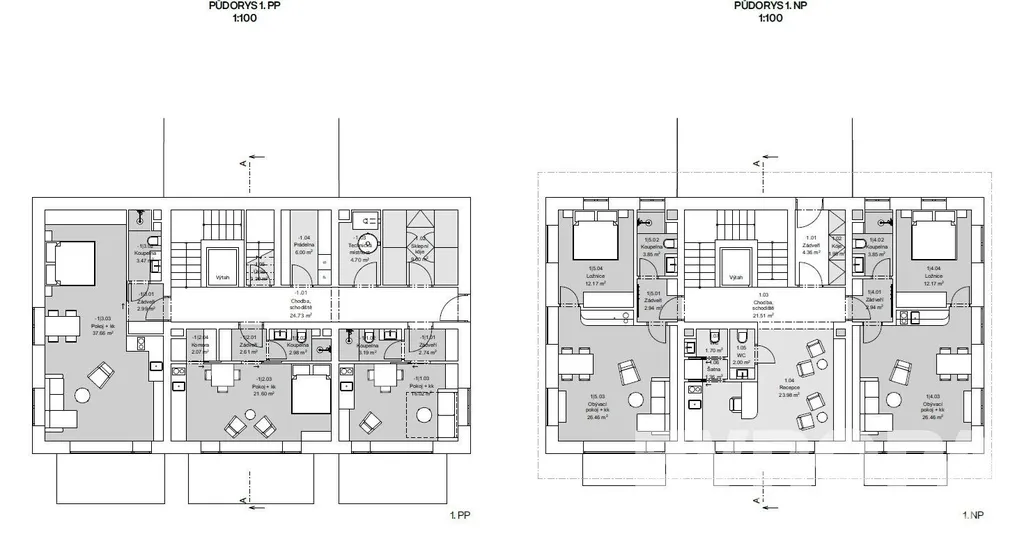
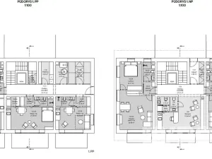
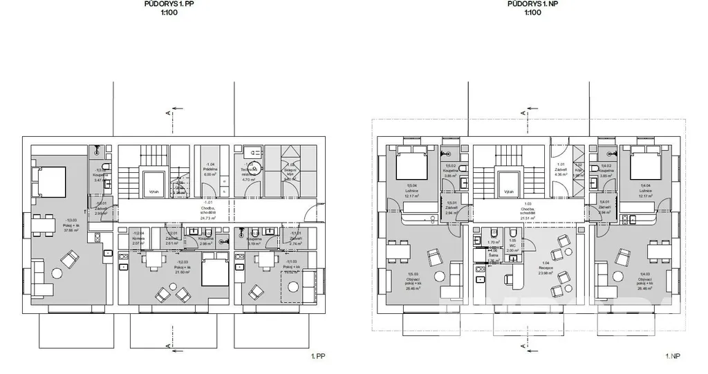
• Rodinný penzion se 7 ubytovacími jednotkami a recepcí
• Podsklepená jednopodlažní budova s obytným podkrovím
• Jednotky mají vlastní sociální zařízení a kuchyňku, některé přímo s přístupem na terasu nebo balkon
• Recepce, společenská místnost a úschovna sportovního vybavení
• Hlavní vstup z ulice, druhý vstup z podzemního podlaží na terasu

Charakteristika lokality:
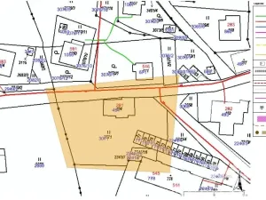
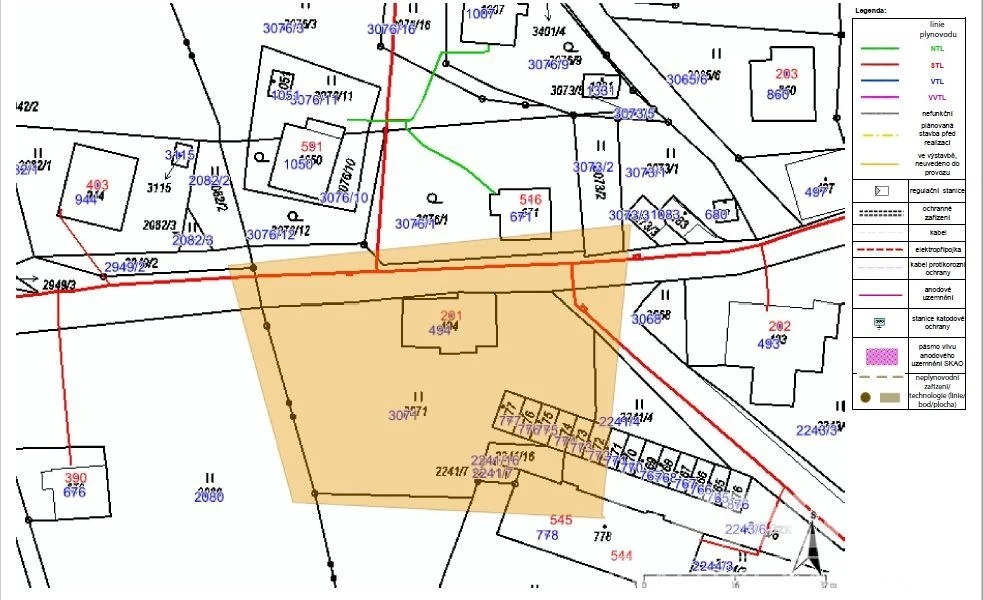
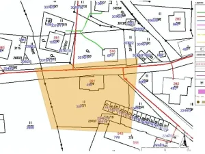
Pozemek se nachází v oblasti s rozvolněnou zástavbou – v okolí jsou rodinné domy, penziony a bytové domy. Nenachází se v záplavovém ani poddolovaném území. Přístup je z místní komunikace. Pozemek je součástí zastavitelného území města.

Stav připravenosti projektu:
• Projekt je ve stavu před vydáním stavebního povolení
• Připravená plánovací smlouva
• Demoliční výměr stávající stavby s nabytím právní moci
• Zajištěna stanoviska dotčených orgánů
• Kompletní projektová dokumentace je k dispozici

Tento projekt představuje unikátní příležitost pro investory:
Stavební pozemek s připraveným projektem penzionu, včetně všech potřebných dokumentů, je ideální pro rychlou realizaci výstavby ubytovacího zařízení v prestižní horské lokalitě s celoroční turistickou atraktivitou.

Parametry nemovitosti

Cena
10 580 000 Kč /za nemovitost Spočítat hypotéku
Aktualizováno
9. 4. 2026
Adresa
Rokytnice nad Jizerou, okres semily
ID
972660
Stavba
Cihlová
Stav objektu
Projekt
Typ objektu
Patrový
Vlastnictví
Osobní
Užitná plocha
421 m2
Plocha pozemku
1782 m2
Třída energetické náročnosti
G - Mimořádně nehospodárná
Elektřina
230V
Plyn
Plynovod
Odpad
Veřejná kanalizace
Topení
Jiné
Doprava
Silnice, MHD, Autobus
Voda
Vodovod
Parkování

Kontaktovat makléře

Realitní kancelář

Logo EVROPA realitní kancelář

EVROPA realitní kancelář

Václavské náměstí 806/62, Praha

Chystáte se prodat nemovitost?
Pomůžeme Vám!

Máte zájem o tuto nemovistost?

Tímto, v souladu s nařízením Evropského parlamentu a Rady (EU) 2016/679, v platném znění, prohlašuji, že mi je alespoň 16 let a uděluji tak svůj souhlas se zpracováním zadaných údajů (jméno, telefon, e-mail, ip adresa) společnosti B3 Technology, s.r.o., IČ: 07330600, se sídlem Novostavby 126/23, 435 11 Lom (správce dat), za účelem předání dotazu z tohoto formuláře Vámi vybranému inzerentovi a zpětného kontaktování mé osoby. Osobní údaje bude správce zpracovávat manuálně i automaticky přímo prostřednictvím svých zaměstnanců. Informace předané tímto formulářem budou uloženy v databázi správce maximálně po dobu 10 let. Odvolání souhlasu s uložením a zpracováním poskytnutých dat lze e-mailem na info@videobydleni.cz. V případě podezření na neoprávněné použití Vámi poskytnutých údajů máte právo předat podnět k šetření Úřadu pro ochranu osobních údajů. Více informací
Chystáte se prodat nemovitost?
Pomůžeme Vám!

Inzerát si prohlédlo 9 lidí

Prodejce

Lubor Karásek

Lubor Karásek

Hlídací pes

Chcete dostávat emailem podobné nabídky prodeje ubytování v Rokytnici nad Jizerou?

Podobné nemovitosti


Nevyhovuje Vám typ nemovitosti? Podívejte se na jiné kategorie komerčních.


Vybrané články z našeho blogu