Soccer reality

Prodej rodinného domu, Kostelec u Křížků, 191 m2 (ID: 4147265)

Kostelec u Křížků

12 900 000 Kč /za nemovitost HYPOTÉKA od 57 655 Kč /za měsíc
Prémioví partneři v Kostelci u Křížků

Informace k domu

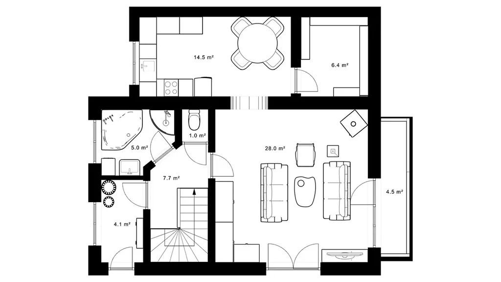
Exkluzivní nabídka prodeje rodinného domu na ojedinělém místě v obci Kostelec u Křížků.
Dům kolaudovaný v roce 2004 se nachází na okraji obce v klidném prostředí poskytujícím příjemné soukromí s krásnými výhledy do okolní přírody.

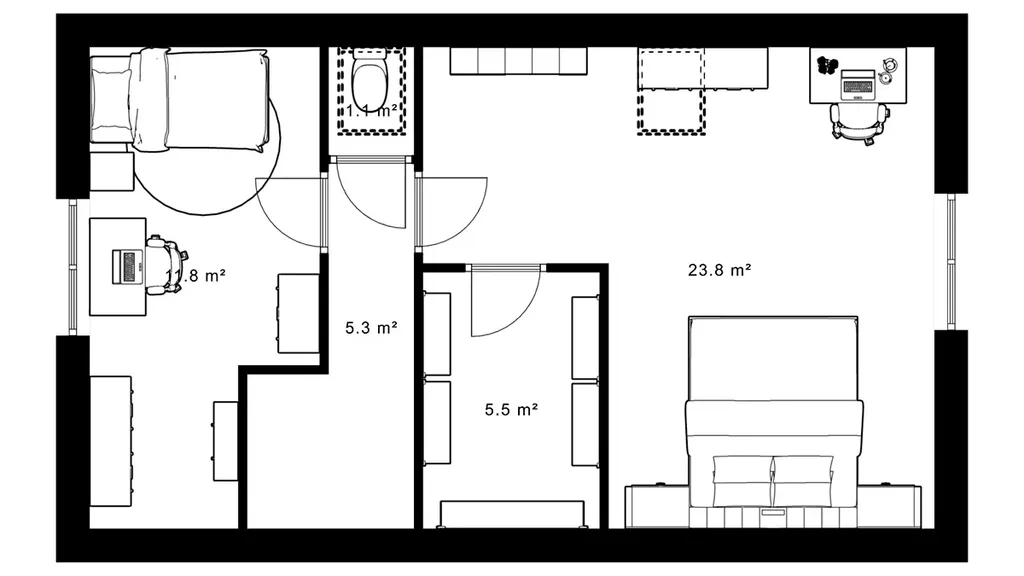
V současnosti je dispozice domu koncipována jako 3 + 1 s možností navýšení počtu obytných místností a změny dispozice prostřednictvím stavební úpravy přízemí domu - podrobné informace v kanceláři.


Zastavěná plocha domu je 80 m2.
Příjemnou atmosféru při výhledech z domu, nebo při posezení na terase dotváří udržovaná zahrada nepravidelného tvaru o výměře 1195m2.
Předmětem prodeje je také velkorysý pozemek s vysokým potenciálem využití bezprostředně navazující na zahradu o výměře 849m2.
Celková výměra pozemků náležících k domu je 2124m2.




V minulosti byl dům připojený k plynové přípojce, připojení lze znovu obnovit.
Voda je zajištěna vrtem.
Odpadní vody jsou svedeny do jímky.
Vytápění tepelným čerpadlem.

Kompletní informace v kanceláři.

Parametry domu

Cena
12 900 000 Kč /za nemovitost Spočítat hypotéku
Aktualizováno
6. 1. 2026
Adresa
Kostelec u Křížků
ID
N00379
Stavba
Cihlová
Stav objektu
Velmi dobrý
Druh objektu
Samostatný
Lokalita objektu
Klidná část obce
Užitná plocha
191 m2
Zastavěná plocha
80 m2
Plocha pozemku
2124 m2
Plocha zahrady
1195 m2
Třída energetické náročnosti
G - Mimořádně nehospodárná
Elektřina
230V, 400V
Odpad
ČOV pro celý objekt
Telekomunikace
Internet
Doprava
Dálnice, Silnice
Voda
Místní zdroj vody
Garáž
Parkování
Bazén

Kontaktovat makléře

Máte zájem o tento dům?

Tímto, v souladu s nařízením Evropského parlamentu a Rady (EU) 2016/679, v platném znění, prohlašuji, že mi je alespoň 16 let a uděluji tak svůj souhlas se zpracováním zadaných údajů (jméno, telefon, e-mail, ip adresa) společnosti B3 Technology, s.r.o., IČ: 07330600, se sídlem Novostavby 126/23, 435 11 Lom (správce dat), za účelem předání dotazu z tohoto formuláře Vámi vybranému inzerentovi a zpětného kontaktování mé osoby. Osobní údaje bude správce zpracovávat manuálně i automaticky přímo prostřednictvím svých zaměstnanců. Informace předané tímto formulářem budou uloženy v databázi správce maximálně po dobu 10 let. Odvolání souhlasu s uložením a zpracováním poskytnutých dat lze e-mailem na info@videobydleni.cz. V případě podezření na neoprávněné použití Vámi poskytnutých údajů máte právo předat podnět k šetření Úřadu pro ochranu osobních údajů. Více informací
Chystáte se prodat nemovitost?
Pomůžeme Vám!

Inzerát si prohlédlo 0 lidí

Prodejce

Jiří Švára

Jiří Švára

Hlídací pes

Chcete dostávat emailem podobné nabídky prodeje rodinných domů v Kostelci u Křížků?

Podobné nemovitosti


Nevyhovuje Vám typ domu? Podívejte se na jiné kategorie domů.


Vybrané články z našeho blogu