Pronájem ordinace, Jihlava, 100 m2

Jihlava

Cena na vyžádání /za metr čtvereční / rok Získejte výhodnou HYPOTÉKU

(cena u makléře)

Prémioví partneři v Jihlavě

Informace k nemovitosti

Objekt se nachází v Jihlavě, v ulici Stavbařů, na pozemku p.č. 5437/11, a jedná se o moderní polyfunkční budovu o pěti nadzemních podlažích. Budova je projektována, kolaudována a provozně uzpůsobena pro využití jako zdravotnické zařízení, a to jak pro ambulantní, tak i lůžkovou péči. Objekt splňuje veškeré požadavky kladené na zdravotnické provozy, včetně bezbariérového přístupu, lůžkového výtahu a elektronické požární signalizace napojené na Hasičský záchranný sbor.

Dokončení objektu je plánováno na podzim roku 2026. Vestavby nájemních jednotek do prostor ve stavu shell & core je možné realizovat již v průběhu výstavby, dle dohody s investorem a v souladu s harmonogramem stavby.

K pronájmu jsou nabízeny prostory v jednotlivých podlažích s rozdílným stupněm dokončení. Prostory v 1. a 2. NP jsou nabízeny ve stavu shell & core, což umožňuje budoucím nájemcům plné přizpůsobení dispozic i technického řešení dle charakteru provozu. Tyto prostory jsou vhodné nejen pro zdravotnická zařízení, ale také pro administrativní či obchodní využití.

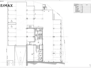
Prostory ve 3. a 4. NP jsou určeny pro ordinace. Každé z těchto podlaží je navrženo pro celkem 12 ordinací, přičemž v současnosti je na obou podlažích obsazena část s 8 ordinacemi (viz půdorys). Zbývající ordinace jsou k dispozici k pronájmu.
Orientační výše nájemného u dokončených prostor ve 3. a 4. NP činí cca 4.000 Kč/m²/rok, což odpovídá přibližně 16.000 Kč měsíčně za jednu ordinaci včetně zázemí, plus cca 4.000 Kč měsíčně za služby. U čtyř ordinací tak celkové měsíční nájemné činí orientačně 64.000 Kč + cca 16.000 Kč za služby. U prostor ve stavu shell & core v 1. a 2. NP je nájemné dohodou.
Uvedené ceny jsou bez DPH a nezahrnují služby.

Pronajímatel preferuje dlouhodobé nájemní vztahy, standardně v délce kolem 15 let. Konkrétní smluvní podmínky lze upravit individuálně dle typu nájemce a rozsahu pronajímaných ploch. Počítá se se složením kauce ve výši minimálně tří měsíčních nájmů a s pravidelnou indexací nájemného dle indexu spotřebitelských cen.

Budova je vybavena centrálním zdrojem vytápění. Chlazení lze řešit centrálně nebo lokálními klimatizačními jednotkami, objekt je technicky připraven na obě varianty. Vzduchotechnika může být řešena centrálně nebo samostatně pro jednotlivé jednotky. Elektrická energie je do objektu přivedena v dostatečném příkonu i pro náročnější zdravotnické technologie. Datové připojení je zajištěno prostřednictvím optické sítě společnosti CETIN.

Součástí objektu je vlastní parkoviště, v bezprostřední blízkosti se nacházejí další dvě veřejná parkoviště. Parkovací místa mohou být vyhrazena konkrétním nájemcům nebo fungovat ve sdíleném režimu dle dohody.

V objektu je možné umístění zdravotnických zařízení (s výjimkou stomatologických a zubně-technických provozů), dále administrativních a souvisejících obchodních činností. Venkovní označení provozoven, polepy výloh, umístění totemu Prodávající si vyhrazuje právo vybrat kupujícího na základě jím zvolených kritérií.

Parametry nemovitosti

Cena
Cena na vyžádání
Poznámka k ceně
cena u makléře
Aktualizováno
12. 3. 2026
Adresa
Jihlava
ID
144-NP02982
Stavba
Cihlová
Stav objektu
Ve výstavbě
Typ objektu
Přízemní
Užitná plocha
100 m2
Třída energetické náročnosti
G - Mimořádně nehospodárná
Elektřina
230V, 400V
Odpad
Veřejná kanalizace
Komunikace
Asfaltová
Doprava
Vlak, Dálnice, Silnice, MHD, Autobus
Voda
Vodovod
Převod do OV

Kontaktovat makléře

Realitní kancelář

Logo RE/MAX Stars

RE/MAX Stars

Karlovo nám. 15/9, Třebíč, Vnitřní Město

Chystáte se prodat nemovitost?
Pomůžeme Vám!

Máte zájem o tuto nemovistost?

Tímto, v souladu s nařízením Evropského parlamentu a Rady (EU) 2016/679, v platném znění, prohlašuji, že mi je alespoň 16 let a uděluji tak svůj souhlas se zpracováním zadaných údajů (jméno, telefon, e-mail, ip adresa) společnosti B3 Technology, s.r.o., IČ: 07330600, se sídlem Novostavby 126/23, 435 11 Lom (správce dat), za účelem předání dotazu z tohoto formuláře Vámi vybranému inzerentovi a zpětného kontaktování mé osoby. Osobní údaje bude správce zpracovávat manuálně i automaticky přímo prostřednictvím svých zaměstnanců. Informace předané tímto formulářem budou uloženy v databázi správce maximálně po dobu 10 let. Odvolání souhlasu s uložením a zpracováním poskytnutých dat lze e-mailem na info@videobydleni.cz. V případě podezření na neoprávněné použití Vámi poskytnutých údajů máte právo předat podnět k šetření Úřadu pro ochranu osobních údajů. Více informací
Chystáte se prodat nemovitost?
Pomůžeme Vám!

Inzerát si prohlédlo 11 lidí

Prodejce

Ing. Marek Jindra

Ing. Marek Jindra

Hlídací pes

Chcete dostávat emailem podobné nabídky pronájmu ordinací v Jihlavě?

Podobné nemovitosti


Nevyhovuje Vám typ nemovitosti? Podívejte se na jiné kategorie komerčních.


Vybrané články z našeho blogu