Prodej bytu 3+1, Český Těšín, Ropická, 158 m2 (ID: 4147565)

Ropická, Český Těšín

5 800 000 Kč /za nemovitost HYPOTÉKA od 25 922 Kč /za měsíc
Prémioví partneři v Českém Těšíně

Informace k bytu

Prostorný byt 3+1 s parametry rodinného domu, dva vstupy, dvě terasy, garáž a parkování – Český Těšín, Dolní Žukov.

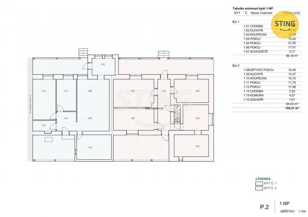
Nabízíme k prodeji nadstandardně prostorný byt o dispozici 3+1 a užitné ploše 98 m² + obytná půda 60 m², umístěný v rodinném domě, ve kterém se nacházejí pouze dvě bytové jednotky. Nemovitost je situována v klidné a vyhledávané části Dolní Žukov.

Byt disponuje dvěma samostatnými vchody, což zajišťuje maximální pohodlí a flexibilitu využití. K jednotce náleží dvě terasy, ideální pro relax i posezení s rodinou, dále garáž a parkovací stání, které výrazně zvyšují komfort každodenního bydlení. Součástí nabídky je pozemek o výměře 416 m² určený k užívání k tomuto bytu a zároveň společný podíl na pozemku o celkové výměře 866 m².

Dispozice 3+1 je řešena velmi prakticky a nabízí prostornou vstupní chodbu, tři samostatné neprůchozí pokoje, samostatnou kuchyni a velmi prostornou koupelnu, která poskytuje nadstandardní pohodlí.

Rodinný dům i bytová jednotka prošly kompletní rekonstrukcí, díky které je nemovitost připravena k okamžitému užívání bez nutnosti dalších investic. Byt má samostatné měření energií.

Tato nemovitost je ideální volbou pro ty, kteří hledají byt s parametry rodinného domu, dostatek prostoru, vlastní venkovní zázemí, soukromí a parkování, a zároveň chtějí zůstat v dosahu města a veškeré občanské vybavenosti.

Pro více informací nebo domluvení prohlídky mě neváhejte kontaktovat. Do konce února 2026 nabízíme prostřednictvím našeho partnera úrokové sazby od 4,29 % p.a. Více informací Vám sdělí náš specialista na prohlídce.

Parametry bytu

Cena
5 800 000 Kč /za nemovitost Spočítat hypotéku
Aktualizováno
17. 2. 2026
Adresa
Ropická, Český Těšín
ID
134276
Stavba
Cihlová
Stav objektu
Po rekonstrukci
Patro
1. z 2
Lokalita objektu
Klidná část obce
Vlastnictví
Osobní
Užitná plocha
158 m2
Podlahová plocha
158 m2
Třída energetické náročnosti
G - Mimořádně nehospodárná
Garáž
Sklep
Terasa
Bezbarierový přístup
Parkování

Kontaktovat makléře

Máte zájem o tento byt?

Tímto, v souladu s nařízením Evropského parlamentu a Rady (EU) 2016/679, v platném znění, prohlašuji, že mi je alespoň 16 let a uděluji tak svůj souhlas se zpracováním zadaných údajů (jméno, telefon, e-mail, ip adresa) společnosti B3 Technology, s.r.o., IČ: 07330600, se sídlem Novostavby 126/23, 435 11 Lom (správce dat), za účelem předání dotazu z tohoto formuláře Vámi vybranému inzerentovi a zpětného kontaktování mé osoby. Osobní údaje bude správce zpracovávat manuálně i automaticky přímo prostřednictvím svých zaměstnanců. Informace předané tímto formulářem budou uloženy v databázi správce maximálně po dobu 10 let. Odvolání souhlasu s uložením a zpracováním poskytnutých dat lze e-mailem na info@videobydleni.cz. V případě podezření na neoprávněné použití Vámi poskytnutých údajů máte právo předat podnět k šetření Úřadu pro ochranu osobních údajů. Více informací
Chystáte se prodat nemovitost?
Pomůžeme Vám!

Inzerát si prohlédlo 61 lidí

Prodejce

Monika Gorná

Monika Gorná

Hlídací pes

Chcete dostávat emailem podobné nabídky prodeje bytů 3+1 v Českém Těšíně?

Podobné nemovitosti


Nevyhovuje Vám typ bytu? Podívejte se na jiné kategorie bytů.


Vybrané články z našeho blogu