Prodej bytu 3+1, Příchovice, 107 m2 (ID: 4147676)

Příchovice

4 990 000 Kč /za nemovitost HYPOTÉKA od 22 302 Kč /za měsíc

(včetně provize, kupních smluv vypracovaných advokátní kanceláří, advokátní úschovy)

Prémioví partneři v Příchovicích

Podlahy

Stěhovací služby

Informace k bytu

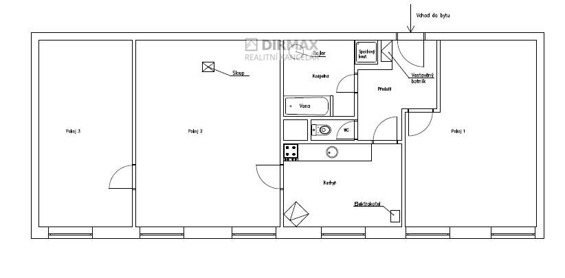
Hledáte pro svojí rodinu klidné bydlení na hezkém místě? Ve výhradním zastoupení nabízíme k prodeji bezbariérový a velmi prostorný byt 3+1 (největší v celém bytovém domě) o rozloze cca 105 m² se sklepní kojí 3m² v Příchovicích u Přeštic.
Celý byt prošel kompletní a nákladnou rekonstrukcí. Nové podlahy, nové rozvody elektřiny a vody, omítky a drobné stavební úpravy.
Po vstupu do bytu se ocitnete v prostorné předsíni, ze které máte přístup do samostatného pokoje o rozloze cca 25m², prostorné koupelny s vanou a sprchovým koutem, samostatného WC a do kuchyně. Z kuchyně se dostanete do velmi prostorného obývacího pokoje o rozloze cca 32m² a do další místnosti o rozloze cca 21m². Celý byt je velmi slunný, okna na východ.
Vytápění je řešeno elektrickým kotlem, ohřev vody pomocí bojleru.
Byt se nachází v přízemí zděného, kompletně rekonstruovaného a zatepleného domu v klidné části obce. Dům je připojený na kanalizaci, plyn a městský vodovod. U domu je velké množství parkovacích stání přímo pod okny bytu. U domu se nachází dětské hřiště. K bytu rovněž náleží prostorná společná sušárna a kolárna s kočárkárnou.
Naleznete zde dostatek soukromí při vašem odpočinku. Koupi této nemovitosti zcela doporučuji. Nemovitost je možné financovat hypotečním úvěrem nebo úvěrem ze stavebního spoření, které pro vás rádi zdarma vyřídíme. Nemovitost není zatížená. PENB energetické třídy D. Více informací vám poskytne realitní makléř. Cena je včetně provize, kupních smluv vypracovaných advokátní kanceláří a advokátní úschovy. Těšíme se na vás při prohlídce, po domluvě i o víkendu.

Parametry bytu

Cena
4 990 000 Kč /za nemovitost Spočítat hypotéku
Poznámka k ceně
včetně provize, kupních smluv vypracovaných advokátní kanceláří, advokátní úschovy
Aktualizováno
7. 1. 2026
Adresa
Příchovice
ID
2850
Stavba
Cihlová
Stav objektu
Po rekonstrukci
Patro
1. z 2
Vybaveno
Ne
Lokalita objektu
Klidná část obce
Vlastnictví
Osobní
Užitná plocha
107 m2
Zastavěná plocha
837 m2
Třída energetické náročnosti
D - Méně úsporná
Elektřina
230V
Plyn
Plynovod
Odpad
Veřejná kanalizace
Komunikace
Asfaltová
Telekomunikace
Internet
Doprava
Silnice, Autobus
Voda
Vodovod
Sklep
Bezbarierový přístup

Kontaktovat makléře

Máte zájem o tento byt?

Tímto, v souladu s nařízením Evropského parlamentu a Rady (EU) 2016/679, v platném znění, prohlašuji, že mi je alespoň 16 let a uděluji tak svůj souhlas se zpracováním zadaných údajů (jméno, telefon, e-mail, ip adresa) společnosti B3 Technology, s.r.o., IČ: 07330600, se sídlem Novostavby 126/23, 435 11 Lom (správce dat), za účelem předání dotazu z tohoto formuláře Vámi vybranému inzerentovi a zpětného kontaktování mé osoby. Osobní údaje bude správce zpracovávat manuálně i automaticky přímo prostřednictvím svých zaměstnanců. Informace předané tímto formulářem budou uloženy v databázi správce maximálně po dobu 10 let. Odvolání souhlasu s uložením a zpracováním poskytnutých dat lze e-mailem na info@videobydleni.cz. V případě podezření na neoprávněné použití Vámi poskytnutých údajů máte právo předat podnět k šetření Úřadu pro ochranu osobních údajů. Více informací
Chystáte se prodat nemovitost?
Pomůžeme Vám!

Inzerát si prohlédlo 33 lidí

Prodejce

Eliška Vostracká

Eliška Vostracká

Hlídací pes

Chcete dostávat emailem podobné nabídky prodeje bytů 3+1 v Příchovicích?

Podobné nemovitosti


Nevyhovuje Vám typ bytu? Podívejte se na jiné kategorie bytů.


Vybrané články z našeho blogu