Prodej rodinného domu, Husinec, Jeronýmova, 400 m2 (ID: 4147976)

Jeronýmova, Husinec

7 600 000 Kč /za nemovitost HYPOTÉKA od 33 967 Kč /za měsíc
Prémioví partneři v Husinci

Výkup a prodej starého nábytku

Informace k domu

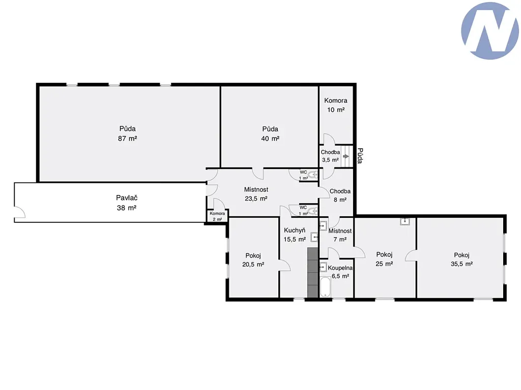
Nabízím k prodeji krásnou zemědělskou usedlost v historickém centru města Husinec. Jedná se o dvoupatrový objekt s rozsáhlými půdními prostory, uzavřeným dvorem a ovocným sadem. Obytnou část tvoří 3 bytové jednotky (3+1, 2+1, 1+1) a množství nebytových prostor vhodných k vytvoření dalších bytů. V přízemí se nachází 1 nebytový prostor s vchodem z ulice a 2 výlohami (obchod). Dům je z části podsklepen. Na obytnou část stavebně navazují hospodářské budovy a uzavírají dvůr do tvaru písmena U. Zde je množství dalších prostor, v přízemí je maštal, konírna, stodola, technické místnosti a v patře jsou sýpky a půdy. Objekt prošel v roce 2000 rekonstrukcí střechy, fasády. Dům je napojen na obecní vodovod, obecní kanalizaci, plyn a elektrickou síť. Ohřev vody zajišťují bojlery a vytápění je plynovým kotlem a kamny na tuhá paliva. Na zahradě je kopaná studna s rozvodem do domu. Do dvora je vjezd vraty z ulice a průjezd skrze stodolu do zahrady. Do domu je vchod z ulice přes dřevěná vrata, z průjezdu je vchod do jednotlivých bytů 2+1 (cca 80 m2) a 1+1 (50 m2). Ze dvora je vstup přes pavlač do bytu 3+1 o výměře 144 m2. V místě je veškerá občanská vybavenost. Na prodej je celý objekt. Více informací u makléře.

Parametry domu

Cena
7 600 000 Kč /za nemovitost Spočítat hypotéku
Aktualizováno
24. 2. 2026
Adresa
Jeronýmova, Husinec
ID
43820
Stavba
Cihlová
Stav objektu
Dobrý
Vybaveno
Částečně
Druh objektu
Řadový
Lokalita objektu
Centrum obce
Užitná plocha
400 m2
Zastavěná plocha
1479 m2
Plocha pozemku
4324 m2
Plocha zahrady
2845 m2
Elektřina
230V, 400V
Plyn
Plynovod
Odpad
Veřejná kanalizace
Komunikace
Asfaltová
Doprava
Silnice, Autobus
Voda
Vodovod
Topné těleso
Radiátory, Krb, Kamna
Zdroj topení
Plynový kotel, Krb, Kamna
Zdroj teplé vody
Bojler - elektro
Sklep

Kontaktovat makléře

Realitní kancelář

NEMO reality, s.r.o.

Kostelní náměstí 17, Prachatice I

Chystáte se prodat nemovitost?
Pomůžeme Vám!

Máte zájem o tento dům?

Tímto, v souladu s nařízením Evropského parlamentu a Rady (EU) 2016/679, v platném znění, prohlašuji, že mi je alespoň 16 let a uděluji tak svůj souhlas se zpracováním zadaných údajů (jméno, telefon, e-mail, ip adresa) společnosti B3 Technology, s.r.o., IČ: 07330600, se sídlem Novostavby 126/23, 435 11 Lom (správce dat), za účelem předání dotazu z tohoto formuláře Vámi vybranému inzerentovi a zpětného kontaktování mé osoby. Osobní údaje bude správce zpracovávat manuálně i automaticky přímo prostřednictvím svých zaměstnanců. Informace předané tímto formulářem budou uloženy v databázi správce maximálně po dobu 10 let. Odvolání souhlasu s uložením a zpracováním poskytnutých dat lze e-mailem na info@videobydleni.cz. V případě podezření na neoprávněné použití Vámi poskytnutých údajů máte právo předat podnět k šetření Úřadu pro ochranu osobních údajů. Více informací
Chystáte se prodat nemovitost?
Pomůžeme Vám!

Inzerát si prohlédlo 8 lidí

Prodejce

Bc. Monika Kálalová

Bc. Monika Kálalová

Hlídací pes

Chcete dostávat emailem podobné nabídky prodeje rodinných domů v Husinci (okr. Prachatice)?

Podobné nemovitosti


Nevyhovuje Vám typ domu? Podívejte se na jiné kategorie domů.


Vybrané články z našeho blogu