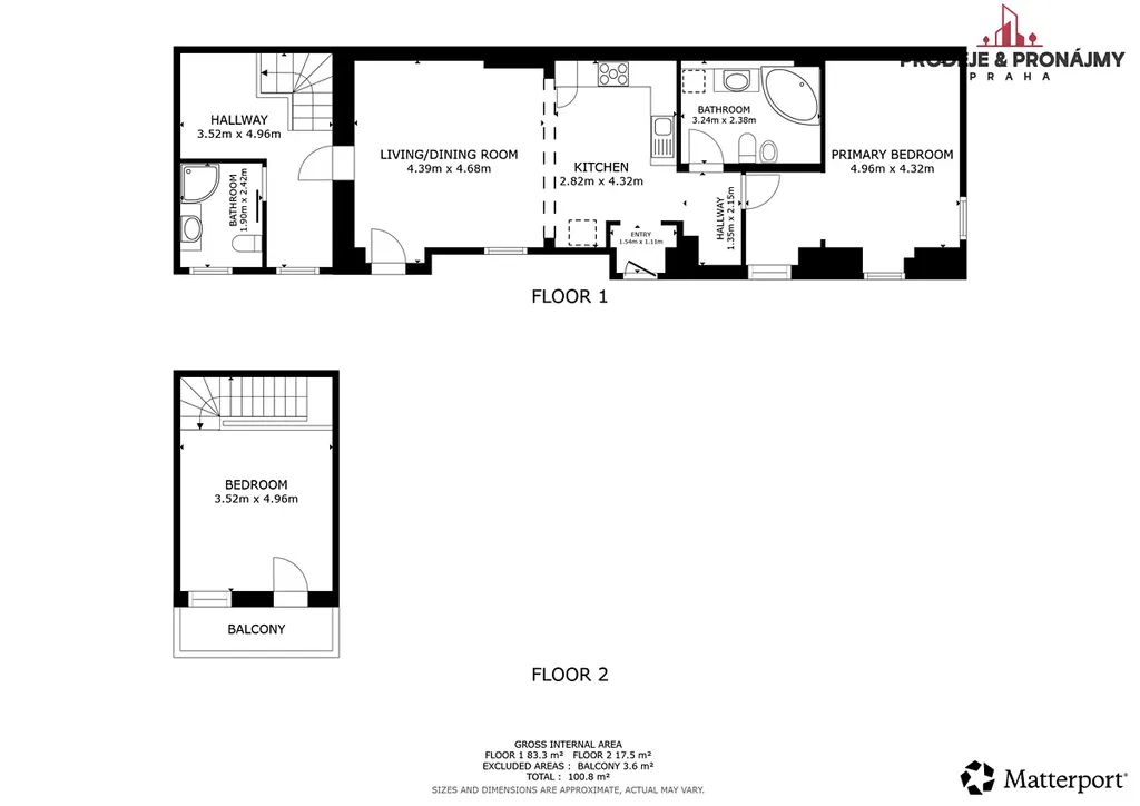
Prodej bytu 4+kk, Praha - Karlín, Sokolovská, 92 m2

Sokolovská, Praha, Karlín

13 999 999 Kč /za nemovitost HYPOTÉKA od 62 572 Kč /za měsíc
Prémioví partneři v Praze 8

Stěhovací služby

Výkup a prodej starého nábytku

Informace k bytu

Nabízíme k prodeji atypickou dvou-podlažní bytovou jednotku v osobním vlastnictví dispozici 4+KK s balkonem o celkové podlahové ploše 92m² orientaci do vnitrobloku.

Byt má dvě koupelny s WC: s vanou a se sprchovým koutem. Každá s vlástním kotlem: plyn a elektro.

Ve 2. NP bytu je ložnice se vstupem do balkonu.

Byt je po celkové rekonstrukci: rozvody elektřiny jsou v mědi, plastové stoupačky, okna plastové dvojsklo. Na podlaze jsou dřevěné masivy a dlažba.

Plynová varní deska

Topení a ohřev vody je zajištěno pomoci kombinaci plynového a elektrického bojlerů přes radiátory a podlahové vytápěni. K dispozici je také funkční krb.

Dům je po celkové rekonstrukci: nova fasáda, střecha, odpad.

Výše nákladu pro 4 osoby činí 7,613 (komplet)

Internet je přes satelit

Lokalita a občanská vybavenost: Karlín je oblíbená a vyhledávaná pražská čtvrť s výbornou dopravní dostupností a širokou občanskou vybaveností. Stanice metra a autobusová zastávka Florenc se nachází pouze 2 minuty chůze od domu. V okolí najdete restaurace, kavárny, fitness centra, lékárnu, poštu, supermarkety a dětské hřiště.

Parametry bytu

Cena
13 999 999 Kč /za nemovitost Spočítat hypotéku
Aktualizováno
9. 1. 2026
Adresa
Sokolovská, Praha, Karlín
Stavba
Cihlová
Stav objektu
Velmi dobrý
Patro
1. z 4
Vybaveno
Částečně
Lokalita objektu
Centrum obce
Vlastnictví
Osobní
Užitná plocha
92 m2
Třída energetické náročnosti
D - Méně úsporná
Elektřina
230V
Plyn
Plynovod
Odpad
Veřejná kanalizace
Komunikace
Dlážděná
Telekomunikace
Satelit
Doprava
Silnice, MHD, Autobus
Voda
Vodovod
Topné těleso
Podlahové vytápění, Radiátory, Krbová kamna, Krb, Kamna
Zdroj topení
Plynový kotel, Elektrokotel, Krb
Zdroj teplé vody
Plynový kotel, Elektrokotel
Balkon
Výtah

Kontaktovat makléře

Máte zájem o tento byt?

Tímto, v souladu s nařízením Evropského parlamentu a Rady (EU) 2016/679, v platném znění, prohlašuji, že mi je alespoň 16 let a uděluji tak svůj souhlas se zpracováním zadaných údajů (jméno, telefon, e-mail, ip adresa) společnosti B3 Technology, s.r.o., IČ: 07330600, se sídlem Novostavby 126/23, 435 11 Lom (správce dat), za účelem předání dotazu z tohoto formuláře Vámi vybranému inzerentovi a zpětného kontaktování mé osoby. Osobní údaje bude správce zpracovávat manuálně i automaticky přímo prostřednictvím svých zaměstnanců. Informace předané tímto formulářem budou uloženy v databázi správce maximálně po dobu 10 let. Odvolání souhlasu s uložením a zpracováním poskytnutých dat lze e-mailem na info@videobydleni.cz. V případě podezření na neoprávněné použití Vámi poskytnutých údajů máte právo předat podnět k šetření Úřadu pro ochranu osobních údajů. Více informací
Chystáte se prodat nemovitost?
Pomůžeme Vám!

Inzerát si prohlédlo 11 lidí

Prodejce

Nikita Ivanov

Nikita Ivanov

Hlídací pes

Chcete dostávat emailem podobné nabídky prodeje bytů 4+kk v Praze 8?

Top nabídky

Podobné nemovitosti


Nevyhovuje Vám typ bytu? Podívejte se na jiné kategorie bytů.


Vybrané články z našeho blogu