Prodej bytu 3+1, Hvozd, 74 m2

Hvozd

3 580 000 Kč /za nemovitost HYPOTÉKA od 16 000 Kč /za měsíc

(včetně DPH, včetně poplatků, včetně provize, včetně právního servisu)

Prémioví partneři v Hvozdu

Podlahy

Stěhovací služby

Informace k bytu

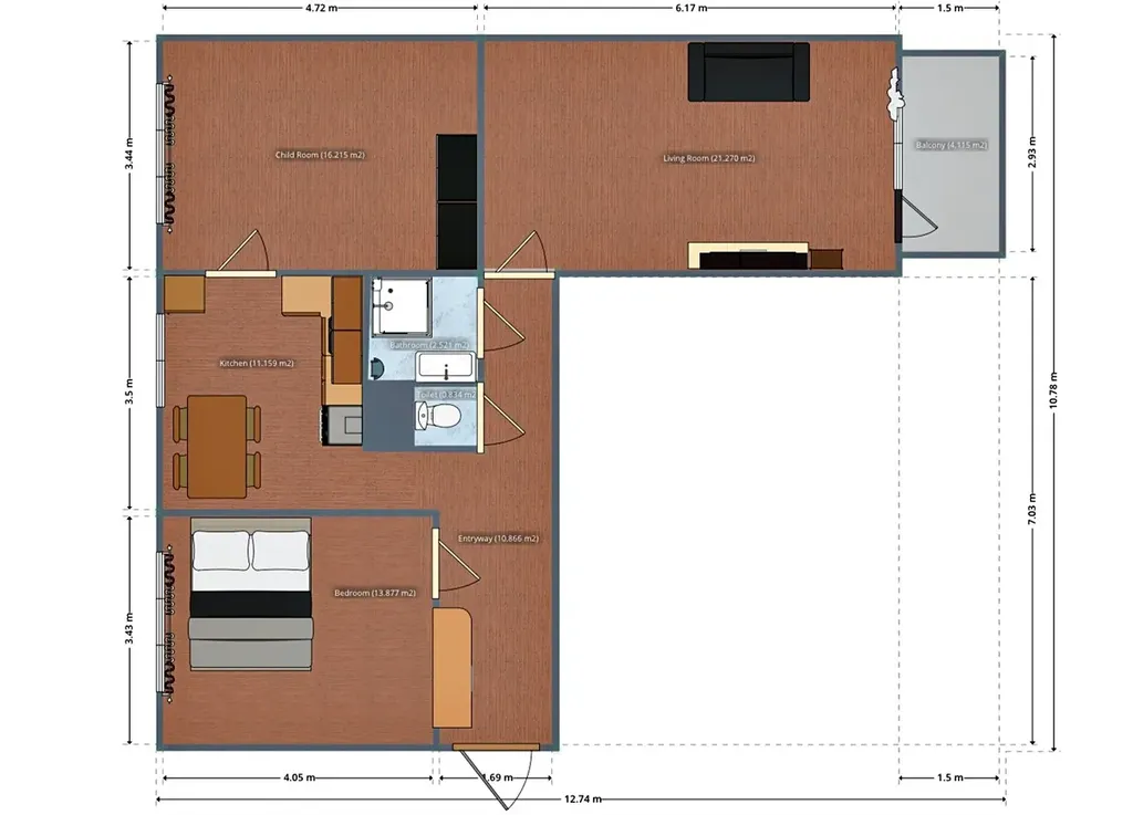
Nabízíme Vám k prodeji byt o dispozici 3+1 užitná plocha 74 m2 + lodžie o vel 4 m2 , sklep o vel 2 m2 ,
+ samostatná GARÁŽ v domě o velikosti 20 m2

- byt je umístěn v 1.NP / přízemí /

- obývací pokoj
- kuchyně s jídelním koutem
- tři samostatné pokoje - u jednoho z pokojů lodžie
- koupelna, samostatná toaleta

- prostorná předsíň i chodba včetně velkých možností úložných prostor a velké vestavěné skříně
- sklep
- vlastní garáž přímo v domě
- v domě místnost pro uložení kol a dalších sportovních potřeb

Velmi nízké provozní náklady :
- fond oprav 1677 Kč
- fond oprav garáže 168 kč
- vodné stočné záloha 300 Kč
- elektřina záloha 800 Kč
- topení záloha 1488 Kč
- ostatní služby bytové jednotky správa domu, pojištění, odpady atd. 398 Kč měsíčně

- pod byty jsou umístěny garáže a sklepy a budova kompletně vytápěna

- 2D i 3D půdorysy v inzerci jsou pouze orientační

- PENB energetický štítek nebude vyhotovován

- v následujícím období bude dům kompletně zateplen z rezerv fondu oprav a stejně tak bude provedena realizace nové kotelny domu a nového zdroje topení - přechod na kompletně nový systém
- dům celkově v perfektním stavu

- velmi klidná část obce v okolí kouzelné přírody, cyklostezek a dalších možností aktivního odpočinku, dětská hřiště, multifunkční hřiště, obchod s potravinami, restaurace a další

- byt vhodný i jako investiční nemovitost
- pracovní příležitosti v místě a v nejbližším okolí

- možnost financování hypotečním úvěrem se zvýhodněnou úrok sazbou
- prodávající si vyhrazuje právo vybrat a určit si kupujícího

Parametry bytu

Cena
3 580 000 Kč /za nemovitost Spočítat hypotéku
Poznámka k ceně
včetně DPH, včetně poplatků, včetně provize, včetně právního servisu
Aktualizováno
24. 2. 2026
Adresa
Hvozd
ID
00109
Stavba
Panelová
Stav objektu
Velmi dobrý
Patro
1. z 4
Vybaveno
Částečně
Lokalita objektu
Klidná část obce
Vlastnictví
Osobní
Užitná plocha
74 m2
Podlahová plocha
80 m2
Třída energetické náročnosti
G - Mimořádně nehospodárná
Elektřina
230V, 400V
Odpad
Veřejná kanalizace
Komunikace
Asfaltová
Telekomunikace
Telefon, Internet, Ostatní
Doprava
Silnice, Autobus
Voda
Vodovod
Topné těleso
Radiátory, Kotel na tuhá paliva, Jiné
Zdroj teplé vody
Kotel na tuhá paliva
Garáž
Sklep
Lodžie
Výtah

Kontaktovat makléře

Realitní kancelář

Hedvika Varcholková

Otýlie Beníškové 1695/16, Plzeň

Chystáte se prodat nemovitost?
Pomůžeme Vám!

Máte zájem o tento byt?

Tímto, v souladu s nařízením Evropského parlamentu a Rady (EU) 2016/679, v platném znění, prohlašuji, že mi je alespoň 16 let a uděluji tak svůj souhlas se zpracováním zadaných údajů (jméno, telefon, e-mail, ip adresa) společnosti B3 Technology, s.r.o., IČ: 07330600, se sídlem Novostavby 126/23, 435 11 Lom (správce dat), za účelem předání dotazu z tohoto formuláře Vámi vybranému inzerentovi a zpětného kontaktování mé osoby. Osobní údaje bude správce zpracovávat manuálně i automaticky přímo prostřednictvím svých zaměstnanců. Informace předané tímto formulářem budou uloženy v databázi správce maximálně po dobu 10 let. Odvolání souhlasu s uložením a zpracováním poskytnutých dat lze e-mailem na info@videobydleni.cz. V případě podezření na neoprávněné použití Vámi poskytnutých údajů máte právo předat podnět k šetření Úřadu pro ochranu osobních údajů. Více informací
Chystáte se prodat nemovitost?
Pomůžeme Vám!

Inzerát si prohlédlo 5 lidí

Prodejce

Hedvika Varcholková

Hedvika Varcholková

Hlídací pes

Chcete dostávat emailem podobné nabídky prodeje bytů 3+1 v Hvozdu (okr. Plzeň-sever)?

Podobné nemovitosti


Nevyhovuje Vám typ bytu? Podívejte se na jiné kategorie bytů.


Vybrané články z našeho blogu