Prodej bytu 3+kk, Praha, Rumunská, 73 m2

Rumunská, Praha 2

11 700 000 Kč /za nemovitost HYPOTÉKA od 52 292 Kč /za měsíc
Prémioví partneři v Praze 2

Stěhovací služby

Výkup a prodej starého nábytku

Informace k bytu

Nabízíme nový designový byt 3+kk po kompletní rekonstrukci v ulici Rumunská, Praha 2 - Nové Město. Byt o ploše 73 m² se právě dokončuje rekonstrukce (dokončeno 02/2026). Fotky v galerii jsou z našich jiných realizací a tento byt bude hotový ve stejném standardu.

Byt se nachází v krásné historické cihlové budově v 4. nadzemním podlaží s výtahem z 5. podlaží. Byt je světlý a vzdušný. Historický dům je ve velmi dobrém stavu: proběhla výměna oken do ulice, stoupačky, nové vchodové dveře na čip, výtah, fasáda, ostatní části ve velmi domu v dobrém stavu. Pěkná dispozice bytu.
K tomu sklepní velká kóje o velikosti 8 m² v suterénu.

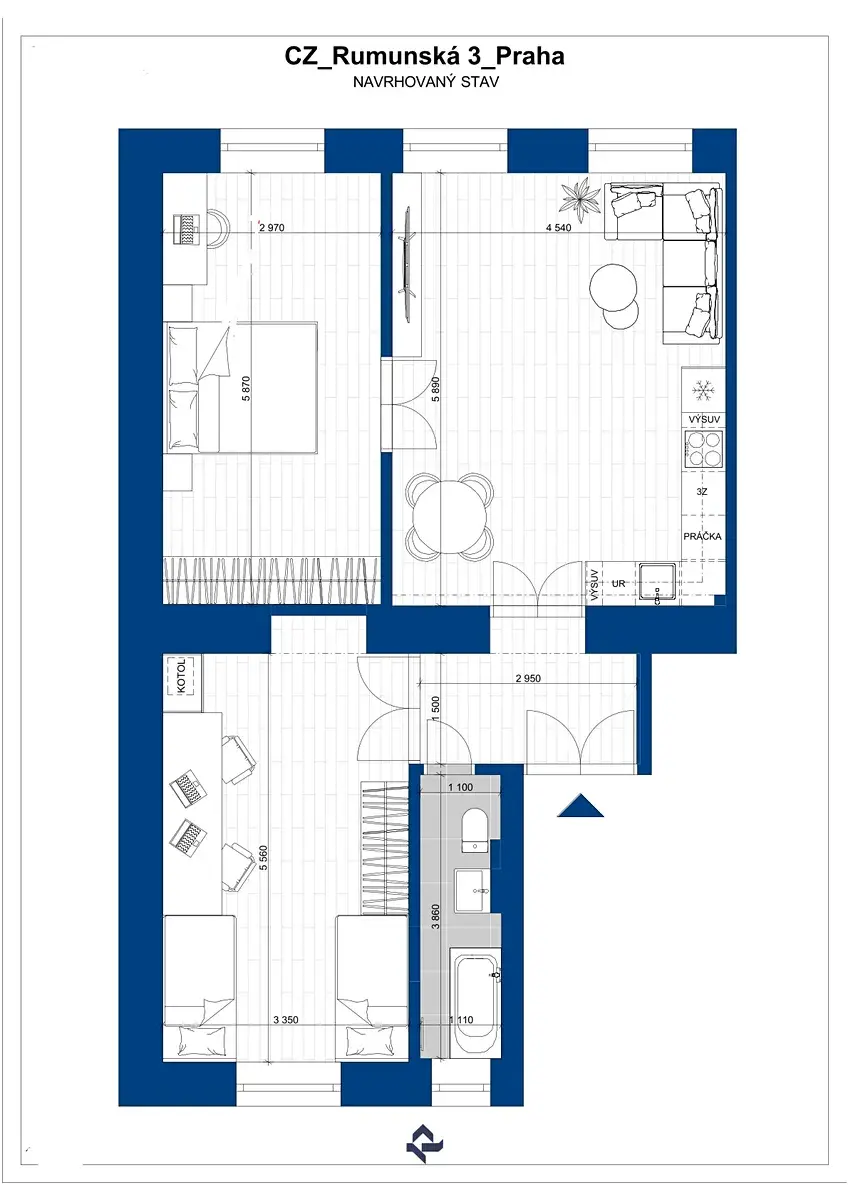
Dispozice bytu:
• obývací pokoj s přípravou pro kuchyňskou linku
• pokoj 2.
• pokoj 3.
• koupelna s vanou, umyvadlem a WC
• chodba
• sklepní kóje

Nízké poplatky týkající se bytu jsou nyní 3.400 Kč / měsíčně (voda, fond oprav, atd.) + měsíční poplatky za plyn a elektřinu.

Rekonstrukce bytu zahrnovala:

• kompletní výměnu elektroinstalačních rozvodů
• kompletní výměnu rozvodů vody a odpadu
• topení ústřední na plynový kotel (před třemi roky)
• kompletní úprava povrchů stěn (stěrkování, malování)
• nové dřevěné parkety na podlahách v pokojích
• podlahové obvodové lišty
• renovované vnitřní dvoukřídlé dveře
• renovovaná okna do vnitrobloku
• kompletní nová koupelna a toaleta
• dlažba BETONICO bílo šedá 60x60 rekt.
• obklad BETONICO bílo šedá 60x60 rekt.
• umyvadlo Laufen pro S 60 cm se skříňkou
• zrcadlo 60 x 80 cm s LED podsvícením
• nové WC
• nová vana, ruční sprcha
• SDK strop s bodovými světly na chodbě a koupelně
• nová světla s dálkovým tlumením v pokojích
• před-příprava vývodů pro kuchyňskou linku
• velmi zachovalé, dvoukřídlé, dřevěné, vchodové dveře

Kuchyňskou linku si můžete objednat i přes naší spolupracující dodavatele - bližší informace u makléře.
Dům stojí ve vynikající lokalitě s výbornou infrastrukturou a dostupností. V okolí naleznete veškerou občanskou vybavenost. Perfektní dopravní dostupnost k dispozici metro autobusy, tramvaje 1. min., stanice metro I.P. Pavlova 1 min chůze od bytu.

Parametry bytu

Cena
11 700 000 Kč /za nemovitost Spočítat hypotéku
Aktualizováno
9. 1. 2026
Adresa
Rumunská, Praha 2
Stavba
Cihlová
Stav objektu
Dobrý
Patro
4. z 5
Lokalita objektu
Klidná část obce
Vlastnictví
Osobní
Užitná plocha
73 m2
Odpad
Veřejná kanalizace
Komunikace
Asfaltová
Doprava
MHD, Autobus
Voda
Vodovod
Sklep
Výtah

Kontaktovat makléře

Realitní kancelář

REINS

Na Příkopě 854/14, Praha

Chystáte se prodat nemovitost?
Pomůžeme Vám!

Máte zájem o tento byt?

Tímto, v souladu s nařízením Evropského parlamentu a Rady (EU) 2016/679, v platném znění, prohlašuji, že mi je alespoň 16 let a uděluji tak svůj souhlas se zpracováním zadaných údajů (jméno, telefon, e-mail, ip adresa) společnosti B3 Technology, s.r.o., IČ: 07330600, se sídlem Novostavby 126/23, 435 11 Lom (správce dat), za účelem předání dotazu z tohoto formuláře Vámi vybranému inzerentovi a zpětného kontaktování mé osoby. Osobní údaje bude správce zpracovávat manuálně i automaticky přímo prostřednictvím svých zaměstnanců. Informace předané tímto formulářem budou uloženy v databázi správce maximálně po dobu 10 let. Odvolání souhlasu s uložením a zpracováním poskytnutých dat lze e-mailem na info@videobydleni.cz. V případě podezření na neoprávněné použití Vámi poskytnutých údajů máte právo předat podnět k šetření Úřadu pro ochranu osobních údajů. Více informací
Chystáte se prodat nemovitost?
Pomůžeme Vám!

Inzerát si prohlédlo 2 lidí

Prodejce

Ing. Linda Mangunda

Ing. Linda Mangunda

Hlídací pes

Chcete dostávat emailem podobné nabídky prodeje bytů 3+kk v Praze 2?

Podobné nemovitosti


Nevyhovuje Vám typ bytu? Podívejte se na jiné kategorie bytů.


Vybrané články z našeho blogu