Pronájem bytu 3+kk, Pardubice - Zelené Předměstí, Nerudova, 88 m2

Nerudova, Pardubice, Zelené Předměstí

18 000 Kč /za měsíc Získejte výhodnou HYPOTÉKU
Prémioví partneři v Pardubicích

Informace k bytu

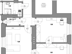
Domybyty.com Vám exkluzivně nabízejí k pronájmu bytovou jednotku o dispozici 3+kk po kompletní rekonstrukci z roku 2020 v přízemí čtyřpodlažního zděného domu v centru Pardubic, ul. Nerudova. Bytová jednotka s výměrou 80m2 má velmi dobře řešenou dispozici: prostorná předsíň, koupelna se sprchovým koutem + wc, samostatné wc s umyvadlem, obývací pokoj s kuchyňským koutem, ložnice, pokoj, sklepní kóje (7m2 nad rámec výměry bytu), k bytové jednotce náleží spoluužívání společného prostoru za domem (možnost posezení, grilu). Vytápění bytu zajišťuje kompletně elektrické podlahové topení + dodatkové topné infrapanely na stěnách – dostatečný tepelný komfort umocňuje zateplení podlahy včetně stropu, ohřev vody bojlerem. Měsíční nájemné činí 18.000,-Kč + náklady na energie cca 5.500. Energetická náročnost budovy G. Pokud hledáte byt pro klidné a pohodlné bydlení, tak jste na správné adrese:
- zdařilá kompletní rekonstrukce v roce 2020 (byt bez investic)
- dobře řešená dispozice
- velkorysá výměra bytové jednotky
- orientace bytu do klidné části vnitrobloku (není slyšet hluk z ulice)
- velký úložný prostor mimo byt
- možnost využití dvorku za domem
- nejedná se o anonymní dům (pouze 13 jednotek)
- byt se pronajímá částečně zařízený (z 80% dle fotek)

Parametry bytu

Cena
18 000 Kč /za měsíc
Aktualizováno
9. 1. 2026
Adresa
Nerudova, Pardubice, Zelené Předměstí
ID
00254
Stavba
Cihlová
Stav objektu
Po rekonstrukci
Patro
1.
Typ objektu
Přízemní
Lokalita objektu
Centrum obce
Vlastnictví
Osobní
Užitná plocha
88 m2
Třída energetické náročnosti
F - Velmi nehospodárná
Výtah
Bezbarierový přístup

Kontaktovat makléře

Realitní kancelář

Logo Vojtěch Vaníček

Vojtěch Vaníček

Štrossova 172, Pardubice, Bílé Předměstí

Chystáte se prodat nemovitost?
Pomůžeme Vám!

Máte zájem o tento byt?

Tímto, v souladu s nařízením Evropského parlamentu a Rady (EU) 2016/679, v platném znění, prohlašuji, že mi je alespoň 16 let a uděluji tak svůj souhlas se zpracováním zadaných údajů (jméno, telefon, e-mail, ip adresa) společnosti B3 Technology, s.r.o., IČ: 07330600, se sídlem Novostavby 126/23, 435 11 Lom (správce dat), za účelem předání dotazu z tohoto formuláře Vámi vybranému inzerentovi a zpětného kontaktování mé osoby. Osobní údaje bude správce zpracovávat manuálně i automaticky přímo prostřednictvím svých zaměstnanců. Informace předané tímto formulářem budou uloženy v databázi správce maximálně po dobu 10 let. Odvolání souhlasu s uložením a zpracováním poskytnutých dat lze e-mailem na info@videobydleni.cz. V případě podezření na neoprávněné použití Vámi poskytnutých údajů máte právo předat podnět k šetření Úřadu pro ochranu osobních údajů. Více informací
Chystáte se prodat nemovitost?
Pomůžeme Vám!

Inzerát si prohlédlo 20 lidí

Prodejce

Vojtěch Vaníček

Vojtěch Vaníček

Hlídací pes

Chcete dostávat emailem podobné nabídky pronájmu bytů 3+kk v Pardubicích?

Podobné nemovitosti


Nevyhovuje Vám typ bytu? Podívejte se na jiné kategorie bytů.


Vybrané články z našeho blogu