Prodej domu na klíč, Chrudim, Na Valech, 116 m2

Na Valech, Chrudim II

Cena na vyžádání /za nemovitost Získejte výhodnou HYPOTÉKU
Prémioví partneři v Chrudimi

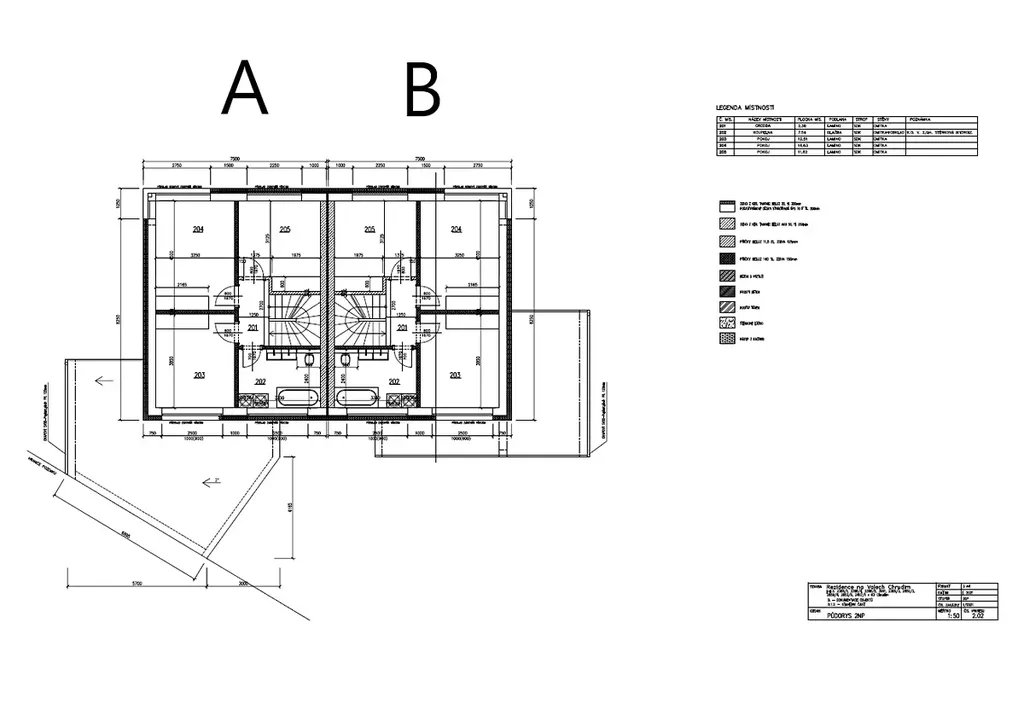
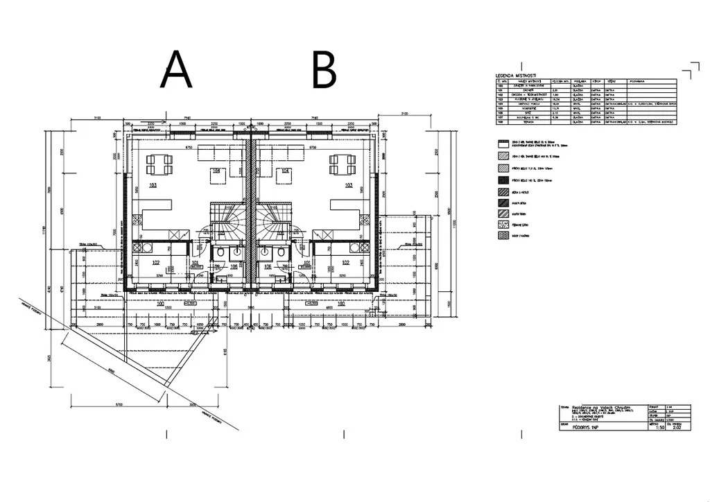
Informace k domu

Výstavba domu na klíč - moderní vily 4+kk se západní terasou. Začněte stavět hned.

Chcete bydlet v novém, ale děsí vás roky vyřizování povolení? Mám pro vás řešení. Nabízím k prodeji připravený projekt výstavby rodinného domu (Dům B) v centru Chrudimi. Stavební povolení máme, stačí začít stavět.

O projektu: Jedná se o pravou polovinu moderního dvojdomu ve slepé ulici Na Valech. Pozemek je vyvýšený nad okolím, což zajišťuje soukromí. Protože dům zatím nestojí, máte jedinečnou možnost ovlivnit design interiéru.

Dispozice a pozemek (Dům B): Navrženo jako efektivní 4+kk

Celková výměra: K domu náleží pozemky o celkové rozloze 500 m² (zahrada 378 m² + podíl na příjezdové cestě 122 m²).

Orientace: Zahrada směřuje na Jih a Západ – slunce až do večera.

Variabilita: Projekt umožňuje vybudování většího carportu (dvojgarážové stání) nebo domácí dílny.

Vysoký standard novostavby: Projekt je koncipován nízkoenergeticky a designově:

Vzhled: Elegantní plechová střecha v odstínu antracit.

Konstrukce: Poctivá cihla HELUZ 30 + 20 cm zateplení.

Komfort: Tepelné čerpadlo, teplovodní podlahové vytápění, příprava na FVE a rekuperaci.

Parkování: V ceně je realizace vlastního carportu a podíl na 3 sdílených stáních pro návštěvy na nové příjezdové cestě.

Bezpečné financování: Kupujete pozemek a smlouvu o dílo na výstavbu domu.

1. Krok: První investice je koupě pozemku. Lze financovat hotově i hypotékou.

2. Krok: Samotnou stavbu platíte postupně. Peníze stavební firmě posíláte, až když vidíte hotovou práci (etapové financování).

Celková cena projektu: na dotaz (vč. pozemku, podílu na cestě a výstavby na klíč s DPH)

Zaujala vás tato nabídka? Přijďte se podívat na místo, kde bude váš nový dům stát. Všechna povolení jsou vyřízena.

Parametry domu

Cena
Cena na vyžádání Spočítat hypotéku
Aktualizováno
26. 2. 2026
Adresa
Na Valech, Chrudim II
ID
15122025
Stavba
Cihlová
Stav objektu
Ve výstavbě
Užitná plocha
116 m2
Plocha pozemku
500 m2
Třída energetické náročnosti
B - Velmi úsporná
Parkování

Kontaktovat makléře

Máte zájem o tento dům?

Tímto, v souladu s nařízením Evropského parlamentu a Rady (EU) 2016/679, v platném znění, prohlašuji, že mi je alespoň 16 let a uděluji tak svůj souhlas se zpracováním zadaných údajů (jméno, telefon, e-mail, ip adresa) společnosti B3 Technology, s.r.o., IČ: 07330600, se sídlem Novostavby 126/23, 435 11 Lom (správce dat), za účelem předání dotazu z tohoto formuláře Vámi vybranému inzerentovi a zpětného kontaktování mé osoby. Osobní údaje bude správce zpracovávat manuálně i automaticky přímo prostřednictvím svých zaměstnanců. Informace předané tímto formulářem budou uloženy v databázi správce maximálně po dobu 10 let. Odvolání souhlasu s uložením a zpracováním poskytnutých dat lze e-mailem na info@videobydleni.cz. V případě podezření na neoprávněné použití Vámi poskytnutých údajů máte právo předat podnět k šetření Úřadu pro ochranu osobních údajů. Více informací
Chystáte se prodat nemovitost?
Pomůžeme Vám!

Inzerát si prohlédlo 99 lidí

Prodejce

Štěpánka Mimrová, MBA

Štěpánka Mimrová, MBA

Hlídací pes

Chcete dostávat emailem podobné nabídky prodeje domů na klíč v Chrudimi?

Podobné nemovitosti


Nevyhovuje Vám typ domu? Podívejte se na jiné kategorie domů.


Vybrané články z našeho blogu