Prodej bytu 2+kk, Praha - Chodov, Benkova, 39 m2 (ID: 4150476)

Benkova, Praha, Chodov

Prodáno
6 499 000 Kč /za nemovitost HYPOTÉKA od 29 047 Kč /za měsíc

(Včetně provize a pravniho servisu)

Prémioví partneři v Praze 4

Stěhovací služby

Výkup a prodej starého nábytku

Informace k bytu

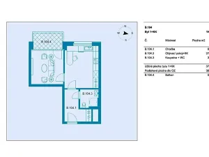
Nabízím k prodeji nový byt 2+kk o velikosti 39 m²+5,3m2, který se nachází ve zvýšeném 1. NP nového Developerského projektu v oblíbené lokalitě, v klidné části Prahy 4 - Chodov, s výbornou dopravní dostupností a kompletní infrastrukturou.


V těsném okolí se nachází hned tři základní a tři mateřské školy, rozsáhlý park s discgolfovým hřištěm, venkovní posilovnou a prolézačkami pro děti. Kulturní vyžití je dostupné hned za rohem v nově zrekonstruovaném zámečku Chodovská tvrz s bohatým programem pro všechny – od nejmenších až po dospělé.

Bydlení s parkem a Chodovskou tvrzí za rohem. Klidný domov ve vilové čtvrti s nebývale dobrou občanskou vybaveností i dopravní infrastrukturou.

Parametry bytu

Stav
Prodáno
Cena
6 499 000 Kč /za nemovitost Spočítat hypotéku
Poznámka k ceně
Včetně provize a pravniho servisu
Aktualizováno
10. 1. 2026
Adresa
Benkova, Praha, Chodov
ID
104
Stavba
Cihlová
Stav objektu
Novostavba
Patro
1. z 5
Lokalita objektu
Klidná část obce
Vlastnictví
Osobní
Užitná plocha
39 m2
Třída energetické náročnosti
B - Velmi úsporná
Terasa
Výtah
Bezbarierový přístup

Kontaktovat makléře

Realitní kancelář

Binio Praha s.r.o.

Václavské náměstí 1306/55, Praha, Nové Město

Chystáte se prodat nemovitost?
Pomůžeme Vám!

Máte zájem o tento byt?

Tímto, v souladu s nařízením Evropského parlamentu a Rady (EU) 2016/679, v platném znění, prohlašuji, že mi je alespoň 16 let a uděluji tak svůj souhlas se zpracováním zadaných údajů (jméno, telefon, e-mail, ip adresa) společnosti B3 Technology, s.r.o., IČ: 07330600, se sídlem Novostavby 126/23, 435 11 Lom (správce dat), za účelem předání dotazu z tohoto formuláře Vámi vybranému inzerentovi a zpětného kontaktování mé osoby. Osobní údaje bude správce zpracovávat manuálně i automaticky přímo prostřednictvím svých zaměstnanců. Informace předané tímto formulářem budou uloženy v databázi správce maximálně po dobu 10 let. Odvolání souhlasu s uložením a zpracováním poskytnutých dat lze e-mailem na info@videobydleni.cz. V případě podezření na neoprávněné použití Vámi poskytnutých údajů máte právo předat podnět k šetření Úřadu pro ochranu osobních údajů. Více informací
Chystáte se prodat nemovitost?
Pomůžeme Vám!

Inzerát si prohlédlo 2 lidí

Prodejce

Yekaterina Rossel

Yekaterina Rossel

Hlídací pes

Chcete dostávat emailem podobné nabídky prodeje bytů 2+kk v Praze 4?

Podobné nemovitosti


Nevyhovuje Vám typ bytu? Podívejte se na jiné kategorie bytů.


Vybrané články z našeho blogu