Prodej atypického bytu, Praha - Hlubočepy, 95 m2

Praha 5

9 990 000 Kč /za nemovitost HYPOTÉKA od 44 649 Kč /za měsíc

(Cena je uvedena včetně provize RK)

Prémioví partneři v Praze 5

Stěhovací služby

Výkup a prodej starého nábytku

Informace k bytu

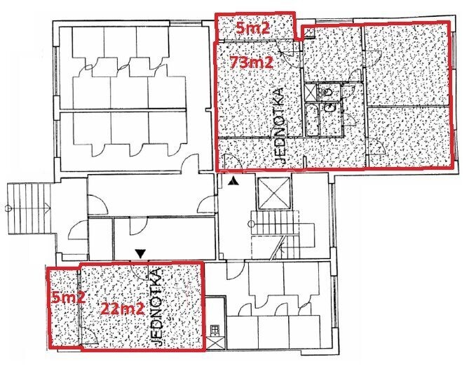
Představuji vám zajímavou nemovitost, kterou lze financovat hypotečním úvěrem. Jedná se o prostor 3+1 73m2 + 5m2 lodžie a dále 1+kk 22m2 + 5m2 lodžie ve zvýšeném přízemí bytového domu. Nyní je zde hypoteční úvěr od KB. Možno ověřit převzetí hypotéky na 3,5mil Kč s úrokem 1,89% a fixací do 19.2.2028. Jedná se o dva fyzicky oddělené samostatné prostory se samostatnými vchody, samostatnými elektroměry, samostatnými vodoměry a optickým kabelem internetu. Každý prostor má navíc svou lodžii, která je u 1+kk nově moderně zasklená. V prostoru jsou nyní nájemníci se dohodami o pokračování, nebo výpovědi. Uvedeno jako jiný nebytový prostor, jako jedna společná jednotka. Velmi dobré parkování v místě oproti jiným sídlištím. 5min pěšky tramvaj směr Smíchovské nádraží a síť obchodů. Nedaleko krásné prokopské údolí. V lokalitě vznikla nová moderní zástavba. V inzerci jsou reálné aktuální fotografie, nikoliv vizualizace.

Parametry bytu

Cena
9 990 000 Kč /za nemovitost Spočítat hypotéku
Poznámka k ceně
Cena je uvedena včetně provize RK
Aktualizováno
11. 1. 2026
Adresa
Praha 5
ID
18422
Stavba
Panelová
Stav objektu
Po rekonstrukci
Patro
1. z 7
Vybaveno
Částečně
Lokalita objektu
Klidná část obce
Vlastnictví
Osobní
Užitná plocha
95 m2
Podlahová plocha
95 m2
Třída energetické náročnosti
C - Úsporná
Elektřina
120V, 230V
Odpad
Veřejná kanalizace
Topení
Ústřední dálkové
Komunikace
Asfaltová
Telekomunikace
Internet, Kabelové rozvody
Doprava
Vlak, Dálnice, Silnice, MHD, Autobus
Voda
Vodovod
Lodžie
Výtah

Kontaktovat makléře

Realitní kancelář

Logo QARA, s.r.o.

QARA, s.r.o.

Šafaříkova 201/17, Praha

Chystáte se prodat nemovitost?
Pomůžeme Vám!

Máte zájem o tento byt?

Tímto, v souladu s nařízením Evropského parlamentu a Rady (EU) 2016/679, v platném znění, prohlašuji, že mi je alespoň 16 let a uděluji tak svůj souhlas se zpracováním zadaných údajů (jméno, telefon, e-mail, ip adresa) společnosti B3 Technology, s.r.o., IČ: 07330600, se sídlem Novostavby 126/23, 435 11 Lom (správce dat), za účelem předání dotazu z tohoto formuláře Vámi vybranému inzerentovi a zpětného kontaktování mé osoby. Osobní údaje bude správce zpracovávat manuálně i automaticky přímo prostřednictvím svých zaměstnanců. Informace předané tímto formulářem budou uloženy v databázi správce maximálně po dobu 10 let. Odvolání souhlasu s uložením a zpracováním poskytnutých dat lze e-mailem na info@videobydleni.cz. V případě podezření na neoprávněné použití Vámi poskytnutých údajů máte právo předat podnět k šetření Úřadu pro ochranu osobních údajů. Více informací
Chystáte se prodat nemovitost?
Pomůžeme Vám!

Inzerát si prohlédlo 1 lidí

Prodejce

Jaroslav Beránek

Jaroslav Beránek

Hlídací pes

Chcete dostávat emailem podobné nabídky prodeje atypických bytů v Praze 5?

Podobné nemovitosti


Nevyhovuje Vám typ bytu? Podívejte se na jiné kategorie bytů.


Vybrané články z našeho blogu