Prodej bytu 2+1, Kolín - Kolín II, Družstevní, 53 m2

Družstevní, Kolín II

4 000 000 Kč /za nemovitost HYPOTÉKA od 17 878 Kč /za měsíc
Prémioví partneři v Kolíně

Informace k bytu

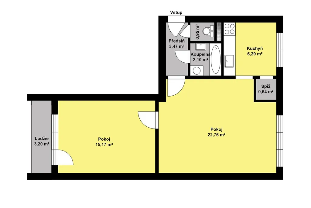
Nabízím k prodeji byt o dispozici 2+1 v panelovém domě ve městě Kolín. Byt se nachází ve 4. nadzemním podlaží domu s výtahem a je vhodný jak k okamžitému bydlení, tak jako ideální příležitost k rekonstrukci dle vlastních představ.

Byt je v původním, udržovaném stavu, dosud byl plně obýván. Užitná plocha činí 53 m2, dále k bytu náleží lodžie o velikosti cca 3 m2 a sklep 1 m2. Příčky v bytě jsou částečně zděné, současné uspořádání bytu umožňuje snadné dispoziční úpravy a byt lze velmi dobře předělat na 3+kk.

Energetická náročnost domu (PENB) je D, dům je zateplen. Dům se nachází na sídlišti s kompletní občanskou vybaveností. V blízkém okolí je mateřská škola, základní škola, obchody, restaurace, plavecký bazén, nemocnice a další služby. Město nabízí výbornou dopravní dostupnost - vlakové i autobusové spojení. Zastávka MHD je necelou minutu chůze od vchodu.

Financování koupě je možné hypotečním úvěrem. S vyřízením financování vám ráda pomohu a zajistím hladký průběh celého obchodu.

Byt je vhodný jak pro vlastní bydlení, tak jako investiční příležitost.

Pro více informací nebo domluvení prohlídky mě neváhejte kontaktovat.

Parametry bytu

Cena
4 000 000 Kč /za nemovitost Spočítat hypotéku
Aktualizováno
11. 1. 2026
Adresa
Družstevní, Kolín II
ID
96
Stavba
Panelová
Stav objektu
Dobrý
Patro
4. z 7
Typ objektu
Patrový
Vlastnictví
Osobní
Užitná plocha
53 m2
Podlahová plocha
48 m2
Třída energetické náročnosti
D - Méně úsporná
Ukazatel energetické náročnosti
122 kWh/m2 za rok
Plyn
Plynovod
Odpad
Veřejná kanalizace
Topení
Ústřední dálkové
Komunikace
Asfaltová
Doprava
Vlak, Silnice, Autobus
Voda
Vodovod
Topné těleso
Radiátory
Sklep
Lodžie
Bezbarierový přístup

Kontaktovat makléře

Máte zájem o tento byt?

Tímto, v souladu s nařízením Evropského parlamentu a Rady (EU) 2016/679, v platném znění, prohlašuji, že mi je alespoň 16 let a uděluji tak svůj souhlas se zpracováním zadaných údajů (jméno, telefon, e-mail, ip adresa) společnosti B3 Technology, s.r.o., IČ: 07330600, se sídlem Novostavby 126/23, 435 11 Lom (správce dat), za účelem předání dotazu z tohoto formuláře Vámi vybranému inzerentovi a zpětného kontaktování mé osoby. Osobní údaje bude správce zpracovávat manuálně i automaticky přímo prostřednictvím svých zaměstnanců. Informace předané tímto formulářem budou uloženy v databázi správce maximálně po dobu 10 let. Odvolání souhlasu s uložením a zpracováním poskytnutých dat lze e-mailem na info@videobydleni.cz. V případě podezření na neoprávněné použití Vámi poskytnutých údajů máte právo předat podnět k šetření Úřadu pro ochranu osobních údajů. Více informací
Chystáte se prodat nemovitost?
Pomůžeme Vám!

Inzerát si prohlédlo 0 lidí

Prodejce

Jana Rušidi

Jana Rušidi

Hlídací pes

Chcete dostávat emailem podobné nabídky prodeje bytů 2+1 v Kolíně?

Podobné nemovitosti


Nevyhovuje Vám typ bytu? Podívejte se na jiné kategorie bytů.


Vybrané články z našeho blogu