Prodej výrobních prostor, Neuměř, 405 m2 (ID: 4150881)

Neuměř

11 900 000 Kč /za nemovitost HYPOTÉKA od 53 186 Kč /za měsíc

(včetně všech právních služeb a provize RK)

Prémioví partneři v Neuměři

Stěhovací služby

Informace k nemovitosti

PRODEJ VÝROBNÍ / SKLADOVACÍ HALY S TECHNOLOGIÍ – NEUMĚŘ, HOLÝŠOV

Nabízíme k prodeji výrobní a skladovací halu připravenou k okamžitému provozu, umístěnou v bývalém vojenském areálu v Neuměři, části města Holýšov.
Hala je těsně před kolaudací.
Areál je dlouhodobě funkční, stabilní a nabízí vynikající dostupnost – příjezd MHD, pohodlné parkování i rychlé napojení na dálnici D5.

Součástí prodeje je i vysoce kvalitní laserový systém Trumpf TruLaser 3030 (3,2 kW) – technologie, která zásadně zvyšuje hodnotu celého areálu a umožňuje okamžité zahájení kovovýroby.

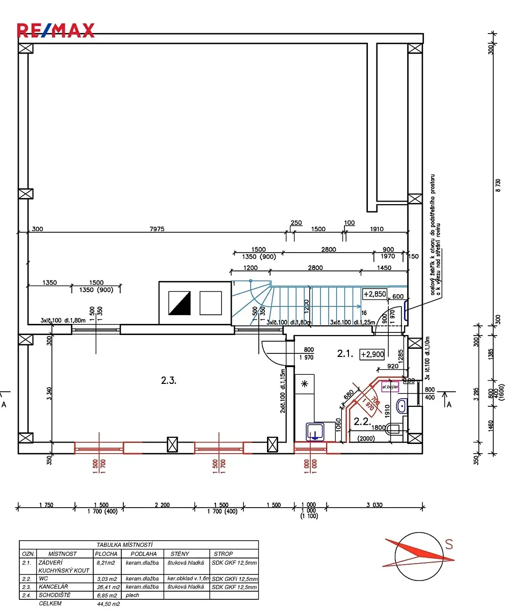
Technické parametry haly
• Zastavěná plocha celkem: 441 m²
• zděná hala: 163 m²
• montovaná hala: 233 m²
• sklady a technické místnosti: 45 m²
• Užitná plocha celkem: 405 m²
• výrobní plocha: 325 m²
• zázemí 1. NP (šatny, sociální zařízení, kuchyňka): 38 m²
• zázemí 2. NP (kancelář, WC, kuchyňka): 38 m²

Rozměry a konstrukce
• světlá výška: 4,2 m
• výška do štítu: 5,5 m
• šířka: 12,4 m
• konstrukce: kombinace zděné a montované části
• 3 velké vjezdy → kamion projede bez omezení

Technické vybavení
• příkon 3×160 A – nadstandardní kapacita pro náročnou výrobu
• nové rozvody vody, kanalizace a topení
• vytápění: sahary

Technologie v ceně – Trumpf TruLaser 3030 (3,2 kW)

Součástí prodeje je profesionální laserový systém určený pro kovovýrobu:
• výkon 3,2 kW
• značka TRUMPF – světová špička v přesném řezání
• ideální pro výrobu výpalků, kusovou i sériovou výrobu
• možnost okamžitého spuštění provozu bez dalších investic

Tato technologie výrazně rozšiřuje potenciál haly – vhodné jak pro rozšíření stávající firmy, tak jako investiční příležitost.

Zázemí pro zaměstnance

Objekt nabízí veškerý komfort potřebný pro denní provoz:
• šatna
• sociální zařízení
• kuchyňka
• kancelář v patře (38 m²) s vlastním WC a kuchyňkou

Pozemek a možnosti využití

Pozemek o celkové výměře 1 358 m² poskytuje:
• dostatek místa pro skladování materiálu
• parkování strojů, osobních i nákladních vozů
• možnost přístavby haly / rozšíření výroby
• rychlou manipulaci díky otevřenému prostoru okolo haly

Dále lze využít zpevněnou plochu přímo naproti objektu pro další parkování.

Lokalita a dostupnost
• do areálu zajíždí MHD
• v okolí působí více zavedených firem → stabilní podnikatelské prostředí
• výborné napojení na dálnici D5 (Plzeň–Rozvadov)
• kolaudace objektu bude dokončena do konce ledna

Ideální využití
• strojírenská a kovovýroba
• výroba výpalků (technologie součástí!)
• lehká a střední výroba
• logistické a skladovací provozy
• autoslužby, dílny
• firemní provozovna
• investice s výborným výnosem (pronájem haly a technologie)


Pro více informací nebo sjednání prohlídky mě prosím kontaktujte.
Ráda vám představím objekt osobně. Prodávající si vyhrazuje právo vybrat kupujícího na základě jím zvolených kritérií.

Parametry nemovitosti

Cena
11 900 000 Kč /za nemovitost Spočítat hypotéku
Poznámka k ceně
včetně všech právních služeb a provize RK
Aktualizováno
2. 5. 2026
Adresa
Neuměř
ID
0071-NP04585
Stavba
Smíšená
Stav objektu
Novostavba
Lokalita objektu
Okraj obce
Užitná plocha
405 m2
Zastavěná plocha
441 m2
Podlahová plocha
1358 m2
Třída energetické náročnosti
G - Mimořádně nehospodárná
Odpad
Veřejná kanalizace
Doprava
Dálnice, Silnice, Autobus
Voda
Vodovod
Zdroj teplé vody
Kotel na tuhá paliva, Bojler - elektro

Kontaktovat makléře

Realitní kancelář

RE/MAX InterCora

Lochotínská 1108/18, Plzeň, Severní Předměstí

Chystáte se prodat nemovitost?
Pomůžeme Vám!

Máte zájem o tuto nemovistost?

Tímto, v souladu s nařízením Evropského parlamentu a Rady (EU) 2016/679, v platném znění, prohlašuji, že mi je alespoň 16 let a uděluji tak svůj souhlas se zpracováním zadaných údajů (jméno, telefon, e-mail, ip adresa) společnosti B3 Technology, s.r.o., IČ: 07330600, se sídlem Novostavby 126/23, 435 11 Lom (správce dat), za účelem předání dotazu z tohoto formuláře Vámi vybranému inzerentovi a zpětného kontaktování mé osoby. Osobní údaje bude správce zpracovávat manuálně i automaticky přímo prostřednictvím svých zaměstnanců. Informace předané tímto formulářem budou uloženy v databázi správce maximálně po dobu 10 let. Odvolání souhlasu s uložením a zpracováním poskytnutých dat lze e-mailem na info@videobydleni.cz. V případě podezření na neoprávněné použití Vámi poskytnutých údajů máte právo předat podnět k šetření Úřadu pro ochranu osobních údajů. Více informací
Chystáte se prodat nemovitost?
Pomůžeme Vám!

Inzerát si prohlédlo 10 lidí

Prodejce

Věra Klimešová

Věra Klimešová

Hlídací pes

Chcete dostávat emailem podobné nabídky prodeje výrobních prostor v Neuměři?

Podobné nemovitosti


Nevyhovuje Vám typ nemovitosti? Podívejte se na jiné kategorie komerčních.


Vybrané články z našeho blogu