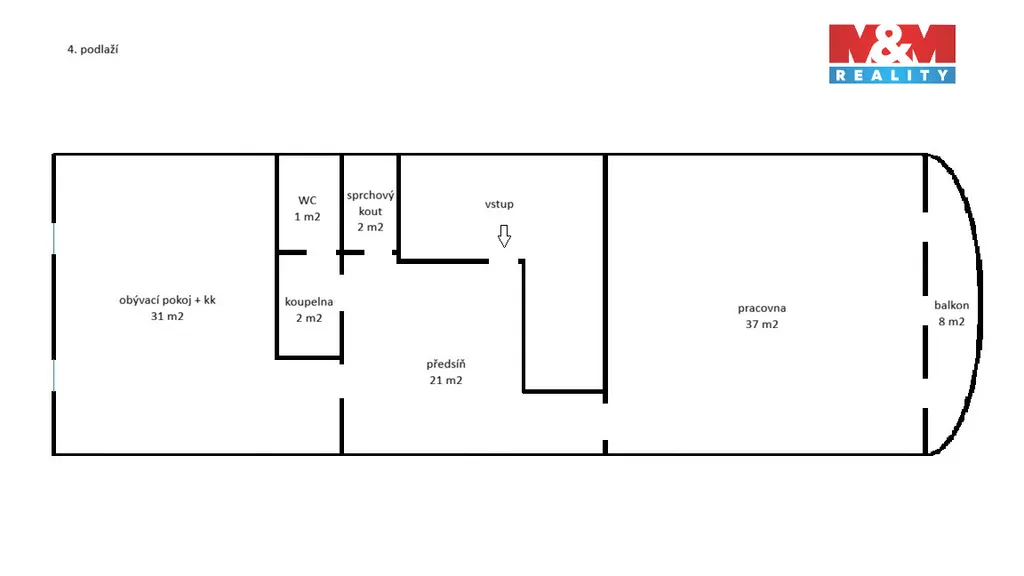
Pronájem bytu 2+kk, Opava - Město, Dolní náměstí, 94 m2

Dolní náměstí, Opava, Město

21 500 Kč /za měsíc Získejte výhodnou HYPOTÉKU
Prémioví partneři v Opavě

Informace k bytu

Pronájem bytu 2+kk, 94 m², Opava, ul. Dolní náměstí

Nabízíme k pronájmu velkorysý byt v historickém srdci Opavy na Dolním náměstí. Jednotka se nachází ve 4. NP udržované kulturní památky. Díky rozloze 94 m² a dvěma prostorným místnostem je byt ideální jako zázemí pro zahraniční zaměstnance nebo management.
Hlavní parametry:
Kapacita: Velké pokoje umožňují komfortní přespávání i pro více osob.
Klidný režim: V domě sídlí kanceláře, proto je vyžadován klid. Ideální pro pracovníky, kteří hledají tiché prostředí pro odpočinek po směnách.
Lokalita: Prestižní adresa v centru s veškerou vybaveností v pěší dostupnosti.
Stav: Nemovitost je ve velmi dobrém stavu, připravena k okamžitému užívání.
Hledáte-li pro své zaměstnance důstojné a klidné bydlení na úrovni, kontaktujte nás pro prohlídku.

Parametry bytu

Cena
21 500 Kč /za měsíc
Aktualizováno
12. 1. 2026
Adresa
Dolní náměstí, Opava, Město
ID
928697
Stavba
Cihlová
Stav objektu
Velmi dobrý
Vybaveno
Ne
Lokalita objektu
Centrum obce
Vlastnictví
Osobní
Užitná plocha
94 m2
Balkon

Kontaktovat makléře

Realitní kancelář

Logo M&M reality

M&M reality

ulice Krakovská 583/9, Praha

Chystáte se prodat nemovitost?
Pomůžeme Vám!

Máte zájem o tento byt?

Tímto, v souladu s nařízením Evropského parlamentu a Rady (EU) 2016/679, v platném znění, prohlašuji, že mi je alespoň 16 let a uděluji tak svůj souhlas se zpracováním zadaných údajů (jméno, telefon, e-mail, ip adresa) společnosti B3 Technology, s.r.o., IČ: 07330600, se sídlem Novostavby 126/23, 435 11 Lom (správce dat), za účelem předání dotazu z tohoto formuláře Vámi vybranému inzerentovi a zpětného kontaktování mé osoby. Osobní údaje bude správce zpracovávat manuálně i automaticky přímo prostřednictvím svých zaměstnanců. Informace předané tímto formulářem budou uloženy v databázi správce maximálně po dobu 10 let. Odvolání souhlasu s uložením a zpracováním poskytnutých dat lze e-mailem na info@videobydleni.cz. V případě podezření na neoprávněné použití Vámi poskytnutých údajů máte právo předat podnět k šetření Úřadu pro ochranu osobních údajů. Více informací
Chystáte se prodat nemovitost?
Pomůžeme Vám!

Inzerát si prohlédlo 0 lidí

Prodejce

Daniel Novák

Daniel Novák

Hlídací pes

Chcete dostávat emailem podobné nabídky pronájmu bytů 2+kk v Opavě?

Podobné nemovitosti


Nevyhovuje Vám typ bytu? Podívejte se na jiné kategorie bytů.


Vybrané články z našeho blogu