Prodej obchodního prostoru, Praha - Libeň, Sokolovská, 144 m2

Sokolovská, Praha 8

Cena na vyžádání /za nemovitost Získejte výhodnou HYPOTÉKU

(info o ceně a prohlídkách u RK)

Prémioví partneři v Praze 8

Stěhovací služby

Výkup a prodej starého nábytku

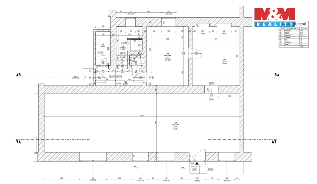
Informace k nemovitosti

Prodej obchod a služby, Praha, ul. Sokolovská

Nabízíme k prodeji soubor nebytových prostor o celkové užitné ploše 144 m², situovaných v 1. nadzemním podlaží cihlové budovy. Prostor se nachází na frekventované křižovatce kousek od metra Palmovka a zastávek tramvají a autobusů, což zajišťuje výbornou dopravní dostupnost pro klienty.
Tento prostor je také ideální pro zřízení lékařské ordinace nebo soukromé kliniky, současně je vydáno stavební povolení pro zřízení neurologické ordinace.
Prostor disponuje dvěma vchody: jeden je z ulice a druhý je ze zadní části s možností vybudování bezbariérového přístupu, což je klíčové zejména pro zdravotnická zařízení.
K nebytovým prostorům náleží dvě parkovací stání ve vnitrobloku, což představuje v této části Prahy výraznou konkurenční výhodu pro personál i klienty.
Nemovitost je určena k rekonstrukci, což umožňuje přizpůsobit interiér podle specifických potřeb a představ nového majitele.
Nepropásněte tuto příležitost, jak získat prostor v srdci Libně pro své podnikání.

Parametry nemovitosti

Cena
Cena na vyžádání Spočítat hypotéku
Poznámka k ceně
info o ceně a prohlídkách u RK
Aktualizováno
12. 2. 2026
Adresa
Sokolovská, Praha 8
ID
928681
Stavba
Cihlová
Stav objektu
Dobrý
Vybaveno
Ne
Lokalita objektu
Rušná část obce
Vlastnictví
Osobní
Užitná plocha
144 m2

Kontaktovat makléře

Máte zájem o tuto nemovistost?

Tímto, v souladu s nařízením Evropského parlamentu a Rady (EU) 2016/679, v platném znění, prohlašuji, že mi je alespoň 16 let a uděluji tak svůj souhlas se zpracováním zadaných údajů (jméno, telefon, e-mail, ip adresa) společnosti B3 Technology, s.r.o., IČ: 07330600, se sídlem Novostavby 126/23, 435 11 Lom (správce dat), za účelem předání dotazu z tohoto formuláře Vámi vybranému inzerentovi a zpětného kontaktování mé osoby. Osobní údaje bude správce zpracovávat manuálně i automaticky přímo prostřednictvím svých zaměstnanců. Informace předané tímto formulářem budou uloženy v databázi správce maximálně po dobu 10 let. Odvolání souhlasu s uložením a zpracováním poskytnutých dat lze e-mailem na info@videobydleni.cz. V případě podezření na neoprávněné použití Vámi poskytnutých údajů máte právo předat podnět k šetření Úřadu pro ochranu osobních údajů. Více informací
Chystáte se prodat nemovitost?
Pomůžeme Vám!

Inzerát si prohlédlo 6 lidí

Prodejce

Ing. Katariina Kofanova

Ing. Katariina Kofanova

Hlídací pes

Chcete dostávat emailem podobné nabídky prodeje obchodních prostor v Praze 8?

Podobné nemovitosti


Nevyhovuje Vám typ nemovitosti? Podívejte se na jiné kategorie komerčních.


Vybrané články z našeho blogu